사건번호 2025 타경 50593
본건은 강원특별자치도 춘천시 효자동 114-124
소재하는 근린주택경매 물건의 포스팅입니다.
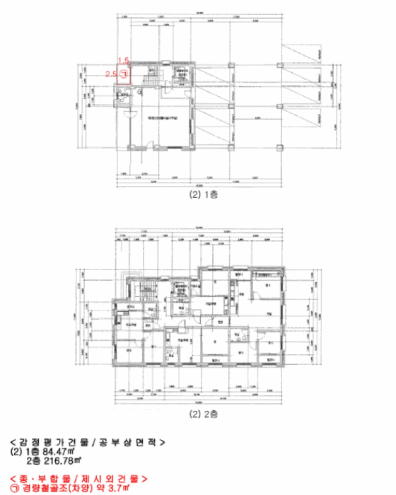
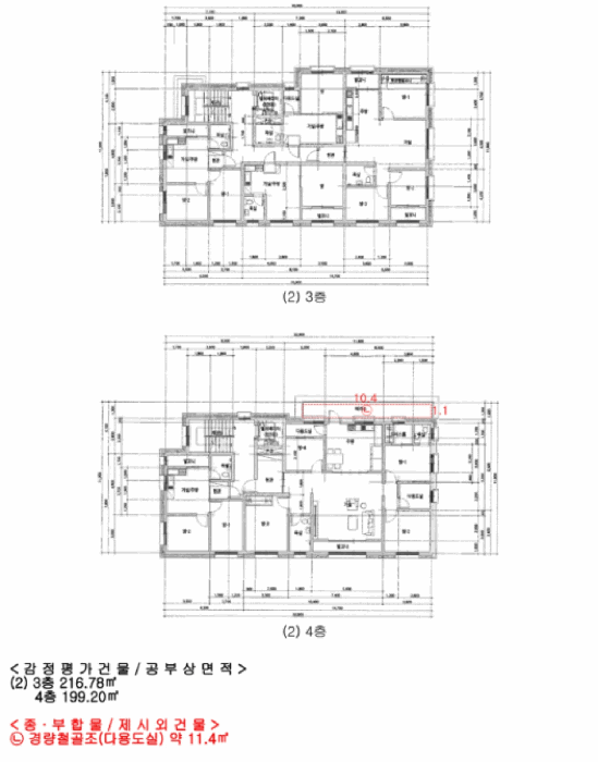
건물면적 [ 802.85㎡ (242.86평) ]
토지면적 [ 430㎡ (130.07평) ]
시세를 반영한 감정가 1,755,476,160에서
1회 유찰되어 감정가 대비 70%
최저가 1,228,833,000부터
입찰에 참여할 수 있습니다.
입찰보증금은 최저가 10%
122,883,300이며,
춘천지방법원 경매3계에서
2025-10-13(10:00)
진행 예정입니다.
| 소재지 | [지번] 강원특별자치도 춘천시 효자동 114-124 [도로명 주소] 강원도 춘천시 효평길 22 |
||||
|---|---|---|---|---|---|
| 용도 | 근린주택 | 채권자 | 춘** | 감정가 | 1,755,476,160 |
| 건물면적 | 802.85㎡ (242.86평) | 채무자 | 강** | 최저가 | (70%) 1,228,833,000 |
| 토지면적 | 430㎡ (130.07평) | 소유자 | 강** | 보증금 | (10%) 122,883,300 |
| 매각대상 | 경매종류 | 임의경매 | 사건접수일 | 2025-03-25 | |
| 최초경매일 | 2025-10-13 | 배당종기일 | 2025-06-30 | 경매개시일 | 2025-03-26 |
| 주의사항 | ☞ 여기 눌러 무료상담 받아보기 | ||||
기일내역
| 회차 | 매각기일 | 최저매각금액 | 결과 |
|---|---|---|---|
| 신건 | 2025-09-01 | 1,755,476,160 | 유찰 |
| 2차 | 2025-10-13 | 1,228,833,000 |
임차인현황
| 임차인 | 점유현황 | 전입/확정/배당 |
|---|---|---|
| i** | 주거임차인 주거용 203호2019.12.20.~2025.12.19. |
전입 : 2019-12-18 / 확정 : 2019-12-18 / 배당 : 2025-05-15 |
| i** | 주거임차인 주거용 302호2021.12.21.~현재 |
전입 : 2021-01-13 / 확정 : 2021-12-21 / 배당 : 2025-05-29 |
| i** | 주거임차인 주거용 303호2021.12.10.~현재 |
전입 : 2022-01-04 / 확정 : 2021-11-23 / 배당 : 2025-05-14 |
| i** | 주거임차인 주거용 304호2022.01.10.~ |
전입 : 2022-01-18 / 확정 : 2021-11-25 / 배당 : 2025-06-17 |
| i** | 주거임차인 주거용 202호2022.06.10.~현재 |
전입 : 2022-06-14 / 확정 : 2025-05-18 / 배당 : 2025-05-02 |
| i** | 주거임차인 주거용 204호2022.08.16.~현재 |
전입 : 2022-08-16 / 확정 : 2022-07-19 / 배당 : 2025-06-26 |
| i** | 주거임차인 주거용 201호2023.12.06.~ |
전입 : 2023-12-18 / 확정 : 2023-11-13 / 배당 : 2025-05-29 |
![[사진 3]](https://filelab.co.kr/auctionimg/2025/20250815/B000260202501300505931.jpg)
![[사진 1]](https://filelab.co.kr/auctionimg/2025/20250815/B000260202501300505932.jpg)
![[사진 2]](https://filelab.co.kr/auctionimg/2025/20250815/B000260202501300505933.jpg)
![[사진 4]](https://filelab.co.kr/auctionimg/2025/20250815/B000260202501300505934.jpg)
![[사진 5]](https://filelab.co.kr/auctionimg/2025/20250815/B000260202501300505935.jpg)
![[사진 6]](https://filelab.co.kr/auctionimg/2025/20250815/B000260202501300505936.jpg)
![[사진 7]](https://filelab.co.kr/auctionimg/2025/20250815/B000260202501300505937.jpg)
![[사진 8]](https://filelab.co.kr/auctionimg/2025/20250815/B000260202501300505938.jpg)
![[사진 9]](https://filelab.co.kr/auctionimg/2025/20250815/B000260202501300505939.jpg)
![[사진 10]](https://filelab.co.kr/auctionimg/2025/20250815/B0002602025013005059310.jpg)
![[사진 11]](https://filelab.co.kr/auctionimg/2025/20250815/B0002602025013005059311.jpg)
![[사진 12]](https://filelab.co.kr/auctionimg/2025/20250815/B0002602025013005059312.jpg)
![[사진 13]](https://filelab.co.kr/auctionimg/2025/20250815/B0002602025013005059313.jpg)
![[사진 14]](https://filelab.co.kr/auctionimg/2025/20250815/B0002602025013005059314.jpg)
![[사진 15]](https://filelab.co.kr/auctionimg/2025/20250815/B0002602025013005059315.jpg)
![[사진 16]](https://filelab.co.kr/auctionimg/2025/20250815/B0002602025013005059316.jpg)












