시흥주택경매 시흥시 산현동 508-2 №2024 타경 61793

차별화된 5단계 맞춤형 경매 서비스 - 더블옥션

법원경매전문 (주)더블옥션은 보증보험 가입 및 법원 매수대리 등록업체로 안전하고 책임있는 컨설팅을 진행합니다. 등록번호(02-17-3)

사건번호 2024 타경 61793

본건은 경기도 시흥시 산현동 508-2
소재하는 근린주택경매 물건의 포스팅입니다.

건물면적 [ 744.44㎡ (225.19평) ]
토지면적 [ 295.2㎡ (89.3평) ]

시세를 반영한 감정가 2,400,360,400에서
2회 유찰되어 감정가 대비 49%
최저가 1,176,176,000부터
입찰에 참여할 수 있습니다.

입찰보증금은 최저가 10%
117,617,600이며,
안산지원 경매10계에서
2025-08-19(10:30)
진행 예정입니다.

소재지 [지번] 경기도 시흥시 산현동 508-2
[도로명 주소] 경기도 시흥시 산현마을길 25-5
용도 근린주택 채권자 한**외1명 감정가 2,400,360,400
건물면적 744.44㎡ (225.19평) 채무자 양** 최저가 (49%) 1,176,176,000
토지면적 295.2㎡ (89.3평) 소유자 양** 보증금 (10%) 117,617,600
매각대상 대항력있는임차인 경매종류 강제경매 사건접수일 2024-06-28
최초경매일 2025-08-19 배당종기일 2024-09-24 경매개시일 2024-07-05
주의사항 ☞ 여기 눌러 무료상담 받아보기

기일내역

회차 매각기일 최저매각금액 결과
신건 2025-05-27 2,400,360,400 유찰
2차 2025-07-01 1,680,252,000 유찰
3차 2025-08-19 1,176,176,000
정확한 권리 분석, 꼼꼼한 현장 조사, 예상 낙찰가 제안, 대출 연계, 점유자 이전 - 더블옥션

임차인현황

임차인 점유현황 전입/확정/배당
i** 주거임차인
주거용 201호전부2021.2.26.~
전입 : 2021-02-26 / 확정 : 2021-02-03 / 배당 : 2024-06-28
i** 주거임차인
주거용 302호(59㎡)2022.3.12.~미상
전입 : 2022-03-11 / 확정 : 2022-03-11 / 배당 : 2024-05-22
i** 주거임차인
주거용 101호미상
전입 : 2022-06-22 / 확정 : X / 배당 : X
i** 주거임차인
주거용 301호전부2022.09.30.부터현재까지
전입 : 2022-09-29 / 확정 : 2022-09-29 / 배당 : 2024-08-20
i** 상가임차인
점포 1층 중일부(101호,65㎡)2023.07.17.부터현재까지
전입 : / 확정 : 2023-07-18 / 배당 : 2024-08-30
더블옥션은 법원 등록 및 보증 보험 가입 업체로 안전하고 성공적인 당신의 비즈니스를 지원합니다. - 더블옥션

건물 전경 및 1층 상가
세대 공동 출입문
대상물건 전경
대상물건 1층 공용부분 전경
인접도로 및 주위환경
대상물건 전경
대상물건 2층 공용부분 전경
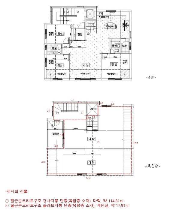
제시외 건물 ㉠, ㉡ 전경
대상물건 내부(1층)
대상물건 3층 공용부분 전경
대상물건 내부(1층)
대상물건 4층 공용부분 전경
건 물 개 황 도
건 물 개 황 도
위 치 도
광 역 위 치 도
지 적 도
부동산 경매 전문기업 - 더블옥션

Related Posts