사건번호 2024 타경 6815
본건은 경기도 수원시 영통구 매탄동 483-3
소재하는 다가구(원룸등)경매 물건의 포스팅입니다.
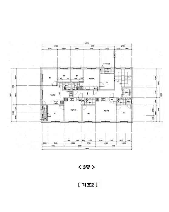
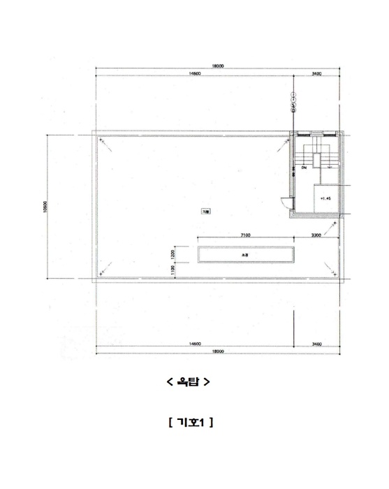
건물면적 [ 746.37㎡ (225.78평) ]
토지면적 [ 331㎡ (100.13평) ]
시세를 반영한 감정가 2,601,785,700에서
2회 유찰되어 감정가 대비 49%
최저가 1,274,874,000부터
입찰에 참여할 수 있습니다.
입찰보증금은 최저가 10%
127,487,400이며,
수원지방법원 경매2계에서
2025-08-18(10:00)
진행 예정입니다.
| 소재지 | [지번] 경기도 수원시 영통구 매탄동 483-3 [도로명 주소] 경기도 수원시 영통구 신원로 209-14 |
||||
|---|---|---|---|---|---|
| 용도 | 다가구(원룸등) | 채권자 | 북** | 감정가 | 2,601,785,700 |
| 건물면적 | 746.37㎡ (225.78평) | 채무자 | 전** | 최저가 | (49%) 1,274,874,000 |
| 토지면적 | 331㎡ (100.13평) | 소유자 | 이** | 보증금 | (10%) 127,487,400 |
| 매각대상 | 위반건축물 | 경매종류 | 임의경매 | 사건접수일 | 2024-06-19 |
| 최초경매일 | 2025-08-18 | 배당종기일 | 2024-09-02 | 경매개시일 | 2024-06-20 |
| 주의사항 | ☞ 여기 눌러 무료상담 받아보기 | ||||
기일내역
| 회차 | 매각기일 | 최저매각금액 | 결과 |
|---|---|---|---|
| 신건 | 2025-05-26 | 2,601,785,700 | 유찰 |
| 2차 | 2025-06-27 | 1,821,249,000 | 유찰 |
| 3차 | 2025-08-18 | 1,274,874,000 |
임차인현황
| 임차인 | 점유현황 | 전입/확정/배당 |
|---|---|---|
| i** | 주거임차인 주거용 301호2019.5.31.~2021.5.30.2023.5.31.~2024.7.31. |
전입 : 2019-08-09 / 확정 : 2019-08-07 / 배당 : 2024-07-19 |
| i** | 주거임차인 주거용 402호2019.08.05.~2025.08.04. |
전입 : 2019-08-12 / 확정 : 2019-08-12 / 배당 : 2024-07-09 |
| i** | 주거임차인 주거용 302호2019.8.16.~2025.2.15. |
전입 : 2019-08-16 / 확정 : 2019-08-16 / 배당 : 2024-08-02 |
| i** | 주거임차인 주거용 |
전입 : 2019-10-07 / 확정 : X / 배당 : X |
| i** | 주거임차인 주거용 502호2020.1.13.~2024.9.30. |
전입 : 2020-01-14 / 확정 : 2022-06-14 / 배당 : 2024-07-19 |
| i** | 주거임차인 주거용 303호2020.02.12.~2024.09.30. |
전입 : 2020-01-20 / 확정 : 2020-01-23 / 배당 : 2024-06-28 |
| i** | 주거임차인 주거용 404호2020.2.3.~2024.2.2. |
전입 : 2020-02-03 / 확정 : 2020-01-20 / 배당 : 2024-08-05 |
| i** | 주거임차인 주거용 304호1차:2020.2.21.~2022.2.20.2차:2022.2.21.~2024.2.20. |
전입 : 2020-02-07 / 확정 : 2020-02-07 / 배당 : 2024-08-12 |
| i** | 주거임차인 주거용 401호2021.3.22. ~2024.3.21. |
전입 : 2021-03-15 / 확정 : 2021-03-15 / 배당 : 2021-07-22 |
| i** | 주거임차인 주거용 501호2021.8.22.~2023.8.21. |
전입 : 2021-08-23 / 확정 : 2021-08-26 / 배당 : 2024-09-03 |
| i** | 주거임차인 주거용 403호 |
전입 : 2022-03-11 / 확정 : 2022-02-10 / 배당 : 2024-03-15 |
| i** | 주거임차인 주거용 |
전입 : 2022-07-01 / 확정 : X / 배당 : X |
| i** | 주거임차인 주거용 202호 |
전입 : 2022-07-01 / 확정 : X / 배당 : X |
| i** | 주거임차인 주거용 202호1차:2022.7.1.~2023.6.30.2차:2023.7.1.~2025.6.30. |
전입 : 2022-07-01 / 확정 : 2024-07-09 / 배당 : 2024-08-21 |
| i** | 주거임차인 주거용 203호 |
전입 : 2023-06-01 / 확정 : X / 배당 : X |
| i** | 주거임차인 주거용 403호 |
전입 : 2023-08-08 / 확정 : X / 배당 : X |
| i** | 주거임차인 주거용 204호35㎡2024.01.20.~2025.01.19. |
전입 : 2024-01-26 / 확정 : 2024-07-01 / 배당 : 2024-07-01 |
| i** | 주거임차인 주거용2024.2.20.~2026.2.20. |
전입 : 2024-02-20 / 확정 : 2024-01-22 / 배당 : 2024-08-26 |




























































