사건번호 2024 타경 105264
본건은 서울특별시 동작구 사당동 1047-48
소재하는 다가구(원룸등)경매 물건의 포스팅입니다.
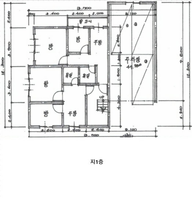
건물면적 [ 499.49㎡ (151.1평) ]
토지면적 [ 214㎡ (64.73평) ]
시세를 반영한 감정가 3,158,996,028에서
1회 유찰되어 감정가 대비 80%
최저가 2,527,196,000부터
입찰에 참여할 수 있습니다.
입찰보증금은 최저가 10%
252,719,600이며,
서울중앙지방법원 경매8계에서
2025-08-06(10:00)
진행 예정입니다.
| 소재지 | [지번] 서울특별시 동작구 사당동 1047-48 [도로명 주소] 서울특별시 동작구 남부순환로267길 3-6 |
||||
|---|---|---|---|---|---|
| 용도 | 다가구(원룸등) | 채권자 | 관** | 감정가 | 3,158,996,028 |
| 건물면적 | 499.49㎡ (151.1평) | 채무자 | ㈜** | 최저가 | (80%) 2,527,196,000 |
| 토지면적 | 214㎡ (64.73평) | 소유자 | ㈜** | 보증금 | (10%) 252,719,600 |
| 매각대상 | 대항력있는임차인 | 경매종류 | 임의경매 | 사건접수일 | 2024-03-11 |
| 최초경매일 | 2025-08-06 | 배당종기일 | 2024-06-03 | 경매개시일 | 2024-03-18 |
| 주의사항 | ☞ 여기 눌러 무료상담 받아보기 | ||||
기일내역
| 회차 | 매각기일 | 최저매각금액 | 결과 |
|---|---|---|---|
| 신건 | 2025-07-02 | 3,158,996,028 | 유찰 |
| 2차 | 2025-08-06 | 2,527,196,000 |
임차인현황
| 임차인 | 점유현황 | 전입/확정/배당 |
|---|---|---|
| i** | 주거임차인 주거용 102호2014.1.28~ |
전입 : 2001-01-22 / 확정 : X / 배당 : 2024-05-31 |
| i** | 주거임차인 주거용 202호2006.3.15~2008.3.14(1차)/2012.3.18~2014.3.17,2022.4.18~(2차) |
전입 : 2003-09-08 / 확정 : 2006-03-16 / 배당 : 2024-04-23 |
| i** | 주거임차인 주거용 3층 전체2021.5.25~ |
전입 : 2021-05-31 / 확정 : X / 배당 : 2024-05-31 |
| i** | 주거임차인 주거용 |
전입 : 2023-07-28 / 확정 : X / 배당 : X |





























