사건번호 2024 타경 1362
본건은 서울특별시 동작구 대방동 101-5 행복채
소재하는 다가구(원룸등)경매 물건의 포스팅입니다.
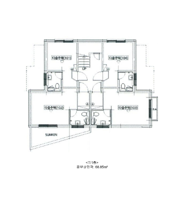
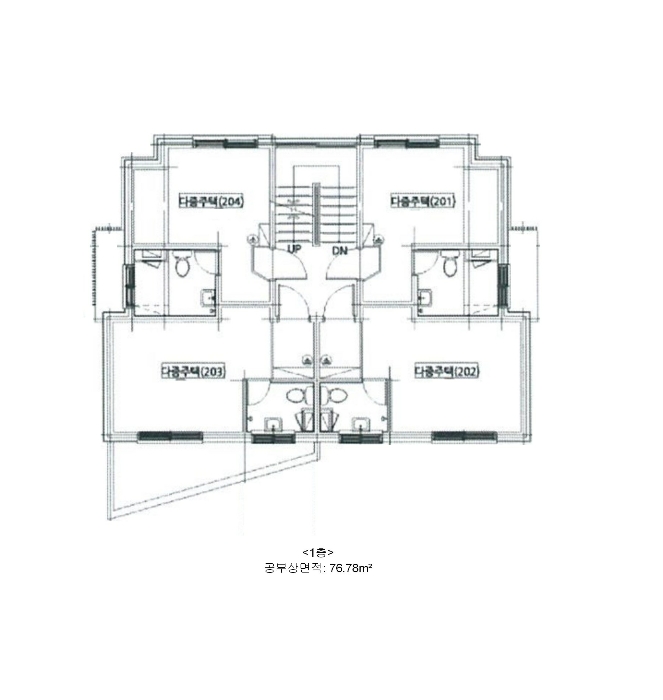
건물면적 [ 340.08㎡ (102.87평) ]
토지면적 [ 142㎡ (42.95평) ]
시세를 반영한 감정가 1,863,695,140에서
1회 유찰되어 감정가 대비 80%
최저가 1,490,956,000부터
입찰에 참여할 수 있습니다.
입찰보증금은 최저가 10%
149,095,600이며,
서울중앙지방법원 경매8계에서
2025-08-06(10:00)
진행 예정입니다.
| 소재지 | [지번] 서울특별시 동작구 대방동 101-5 행복채 [도로명 주소] 서울특별시 동작구 여의대방로62길 14 행복채 |
||||
|---|---|---|---|---|---|
| 용도 | 다가구(원룸등) | 채권자 | ㈜** | 감정가 | 1,863,695,140 |
| 건물면적 | 340.08㎡ (102.87평) | 채무자 | 조** | 최저가 | (80%) 1,490,956,000 |
| 토지면적 | 142㎡ (42.95평) | 소유자 | 강**외1명 | 보증금 | (10%) 149,095,600 |
| 매각대상 | 경매종류 | 임의경매 | 사건접수일 | 2024-03-07 | |
| 최초경매일 | 2025-08-06 | 배당종기일 | 2024-05-23 | 경매개시일 | 2024-03-08 |
| 주의사항 | ☞ 여기 눌러 무료상담 받아보기 | ||||
기일내역
| 회차 | 매각기일 | 최저매각금액 | 결과 |
|---|---|---|---|
| 신건 | 2025-03-19 | 1,863,695,140 | 유찰 |
| 2025-04-23 | 1,490,956,000 | 변경 | |
| 2차 | 2025-08-06 | 1,490,956,000 |
임차인현황
| 임차인 | 점유현황 | 전입/확정/배당 |
|---|---|---|
| i** | 주거임차인 204호 |
전입 : 2019-05-22 / 확정 : 2019-05-07 / 배당 : 2024-05-01 |
| i** | 주거임차인 203호 |
전입 : 2020-02-24 / 확정 : 2020-02-06 / 배당 : 2024-05-09 |
| i** | 주거임차인 304호 |
전입 : 2020-03-05 / 확정 : 2020-03-11 / 배당 : 2024-04-02 |
| i** | 주거임차인 201호 |
전입 : 2020-08-10 / 확정 : 2020-07-21 / 배당 : 2024-04-17 |
| i** | 주거임차인 105호 |
전입 : 2020-08-18 / 확정 : 2020-08-18 / 배당 : 2024-05-10 |
| i** | 주거임차인 105호 |
전입 : 2020-08-18 / 확정 : 2020-08-18 / 배당 : 2024-05-10 |
| i** | 주거임차인 301호 |
전입 : 2020-12-01 / 확정 : 2020-11-02 / 배당 : 2024-04-25 |
| i** | 주거임차인 401호 |
전입 : 2021-06-21 / 확정 : 2021-06-07 / 배당 : 2024-04-29 |
| i** | 주거임차인 402호 |
전입 : 2021-09-24 / 확정 : 2021-09-03 / 배당 : 2024-03-28 |
| i** | 주거임차인 | 전입 : 2021-10-25 / 확정 : X / 배당 : X |
| i** | 주거임차인 303호 |
전입 : 2022-01-28 / 확정 : 2021-11-18 / 배당 : 2024-04-01 |
| i** | 주거임차인 101호 |
전입 : 2022-02-04 / 확정 : 2022-01-17 / 배당 : 2024-03-27 |
| i** | 주거임차인 302호 |
전입 : 2022-05-10 / 확정 : 2022-03-21 / 배당 : 2024-04-11 |
| i** | 주거임차인 | 전입 : 2022-05-10 / 확정 : X / 배당 : X |
| i** | 주거임차인 202호 |
전입 : 2022-05-30 / 확정 : 2022-05-11 / 배당 : 2024-04-15 |
| i** | 주거임차인 | 전입 : 2024-02-01 / 확정 : X / 배당 : X |





































