남양주아파트경매 남양주시 화도읍 창현리 777 이안남양주 제104동 제5층 제502호 №2024 타경 74809

차별화된 5단계 맞춤형 경매 서비스 - 더블옥션

법원경매전문 (주)더블옥션은 보증보험 가입 및 법원 매수대리 등록업체로 안전하고 책임있는 컨설팅을 진행합니다. 등록번호(02-17-3)

사건번호 2024 타경 74809

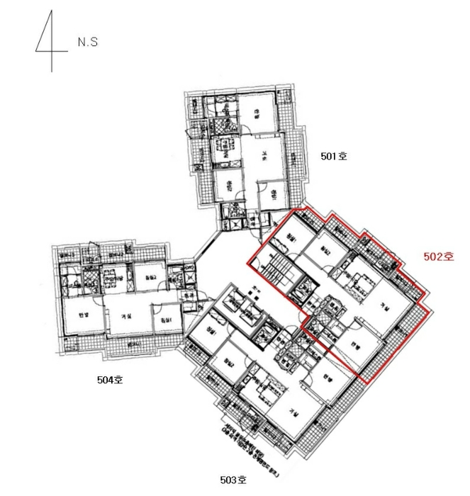
본건은 경기도 남양주시 화도읍 창현리 777 이안남양주 제104동 제5층 제502호
소재하는 아파트경매 물건의 포스팅입니다.

건물면적 [ 101.2㎡ (30.61평) ]
대지권 [ 65.6㎡ (19.84평) ]

시세를 반영한 감정가 448,000,000에서
1회 유찰되어 감정가 대비 70%
최저가 313,600,000부터
입찰에 참여할 수 있습니다.

입찰보증금은 최저가 10%
31,360,000이며,
남양주지원 경매6계에서
2025-05-21(10:30)
진행 예정입니다.

소재지 [지번] 경기도 남양주시 화도읍 창현리 777 이안남양주 제104동 제5층 제502호
[도로명 주소] 경기도 남양주시 화도읍 수레로 1178 이안남양주 제104동 제5층 제502호
용도 아파트 채권자 ㈜**외1명.. 감정가 448,000,000
건물면적 101.2㎡ (30.61평) 채무자 양** 최저가 (70%) 313,600,000
대지권 65.6㎡ (19.84평) 소유자 박**외1명 보증금 (10%) 31,360,000
매각대상 경매종류 임의경매 사건접수일 2024-04-04
최초경매일 2025-05-21 배당종기일 2024-07-01 경매개시일 2024-04-05
주의사항 ☞ 여기 눌러 무료상담 받아보기

기일내역

회차 매각기일 최저매각금액 결과
신건 2025-04-16 448,000,000 유찰
2차 2025-05-21 313,600,000
정확한 권리 분석, 꼼꼼한 현장 조사, 예상 낙찰가 제안, 대출 연계, 점유자 이전 - 더블옥션

임차인현황

임차인 점유현황 전입/확정/배당
i** 주거임차인
전부
전입 : 2023-05-31 / 확정 : 2023-04-23 / 배당 : 2024-05-09
더블옥션은 법원 등록 및 보증 보험 가입 업체로 안전하고 성공적인 당신의 비즈니스를 지원합니다. - 더블옥션

이 사건 이안남
104동 공동출
104동502호 현관
본건 소재 건물
주위환경
주위환경
본건 소재 건물
본건 소재 건물
주위환경
주위환경
본건 현관
호 별 배 치 도
상 세 위 치 도
광 역 위 치 도
내 부 구 조 도
부동산 경매 전문기업 - 더블옥션

Related Posts