사건번호 2025 타경 71297
본건은 경기도 가평군 북면 화악리 604-4외 3필지
소재하는 주택경매 물건의 포스팅입니다.
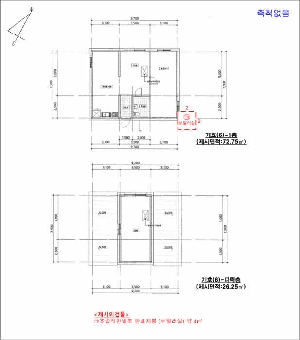
건물면적 [ 295㎡ (89.24평) ]
토지면적 [ 4707㎡ (1423.86평) ]
시세를 반영한 감정가 631,744,000에서
2회 유찰되어 감정가 대비 49%
최저가 309,555,000부터
입찰에 참여할 수 있습니다.
입찰보증금은 최저가 10%
30,955,500이며,
남양주지원 경매3계에서
2026-05-12(10:30)
진행 예정입니다.
| 소재지 | [지번] 경기도 가평군 북면 화악리 604-4외 3필지 [도로명 주소] 경기도 가평군 북면 화악지암길 67-58외 3필지 |
||||
|---|---|---|---|---|---|
| 용도 | 주택 | 채권자 | 농** | 감정가 | 631,744,000 |
| 건물면적 | 295㎡ (89.24평) | 채무자 | 김** | 최저가 | (49%) 309,555,000 |
| 토지면적 | 4707㎡ (1423.86평) | 소유자 | 김** | 보증금 | (10%) 30,955,500 |
| 매각대상 | 공시가격1억이하 | 경매종류 | 임의경매 | 사건접수일 | 2025-02-24 |
| 최초경매일 | 2026-05-12 | 배당종기일 | 2025-05-12 | 경매개시일 | 2025-02-24 |
| 주의사항 | ☞ 여기 눌러 무료상담 받아보기 | ||||
기일내역
| 회차 | 매각기일 | 최저매각금액 | 결과 |
|---|---|---|---|
| 신건 | 2026-03-03 | 631,744,000 | 유찰 |
| 2차 | 2026-04-07 | 442,221,000 | 유찰 |
| 3차 | 2026-05-12 | 309,555,000 |
임차인현황
| 임차인 | 점유현황 | 전입/확정/배당 |
|---|---|---|
| 조사된 임차인 내역 없음 | ||































