홍천숙박시설경매 홍천군 서면 모곡리 306-14외 13필지 №2022 타경 53739(1)

차별화된 5단계 맞춤형 경매 서비스 - 더블옥션
법원경매전문 (주)더블옥션은 보증보험 가입 및 법원 매수대리 등록업체로 안전하고 책임있는 컨설팅을 진행합니다. 등록번호(02-17-3)
사건번호 2022 타경 53739(1)

본건은 강원도 홍천군 서면 모곡리 306-14외 13필지
소재하는 숙박시설경매 물건의 포스팅입니다.

건물면적 [ 200.56㎡ (60.67평) ]
토지면적 [ 전체:15765㎡ (4768.89평)
매각지분:14792㎡ (4474.56평) ]

시세를 반영한 감정가 1,535,310,200에서
4회 유찰되어 감정가 대비 24%
최저가 368,628,000부터
입찰에 참여할 수 있습니다.

입찰보증금은 최저가 10%
36,862,800이며,
춘천지방법원 경매1계에서
2025-12-01(10:00)
진행 예정입니다.

소재지 [지번] 강원도 홍천군 서면 모곡리 306-14외 13필지
[도로명 주소] 강원도 홍천군 서면 설밀길 190-23외 13필지
용도 숙박시설 채권자 이** 감정가 1,535,310,200
건물면적 200.56㎡ (60.67평) 채무자 ㈜** 최저가 (24%) 368,628,000
토지면적 전체:15765㎡ (4768.89평)
매각지분:14792㎡ (4474.56평)
소유자 ㈜** 보증금 (10%) 36,862,800
매각대상 건물전부, 토지지분 경매종류 강제경매 사건접수일 2022-09-20
최초경매일 2025-12-01 배당종기일 2022-12-26 경매개시일 2022-09-21
주의사항 ☞ 여기 눌러 무료상담 받아보기

기일내역

회차 매각기일 최저매각금액 결과
신건 2025-07-14 1,535,310,200 유찰
2차 2025-08-18 1,074,717,000 유찰
3차 2025-09-22 752,302,000 유찰
4차 2025-10-27 526,611,000 유찰
5차 2025-12-01 368,628,000
정확한 권리 분석, 꼼꼼한 현장 조사, 예상 낙찰가 제안, 대출 연계, 점유자 이전 - 더블옥션

임차인현황

임차인 점유현황 전입/확정/배당
조사된 임차인 내역 없음
더블옥션은 법원 등록 및 보증 보험 가입 업체로 안전하고 성공적인 당신의 비즈니스를 지원합니다. - 더블옥션
제시부동산 목록9번
제시부동산 목록13번
제시부동산 목록11번
제시부동산 목록3번 전경
제시부동산 목록3번 일부(잡종지부분)
제시부동산 목록6,14번
제시부동산 목록6번 알림고시
제시부동산 목록12번
제시부동산 목록4,15번
제시부동산 목록4번 알림고시
제시부동산 목록4번 알림고시
제시부동산 목록7번
제시부동산 목록1번 전경
사진1-1
제시부동산 목록5번 전경1
제시부동산 목록5번 전경2
제시부동산 목록10번
제시부동산 목록8번
제시부동산 목록2번(사진2-1)
기호1
기호3
기호4
기호6,14
기호7
기호9
기호11
기호12 지상 관정
기호2
기호4,15
기호5
기호6
기호8
기호10
기호12
기호13
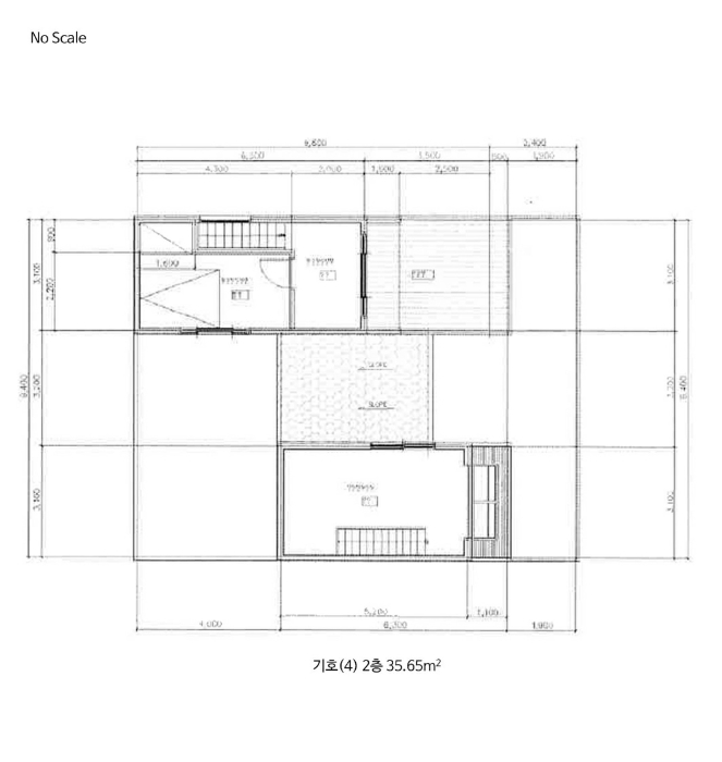
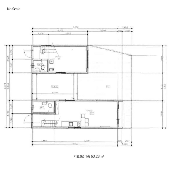
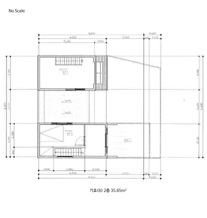
건 물 개 황 도
건 물 개 황 도
건 물 개 황 도
건 물 개 황 도
위 치 도
광 역 위 치 도
지 적 도
부동산 경매 전문기업 - 더블옥션

Related Posts