사건번호 2025 타경 7634
본건은 대구광역시 수성구 중동 75-5
소재하는 근린주택경매 물건의 포스팅입니다.
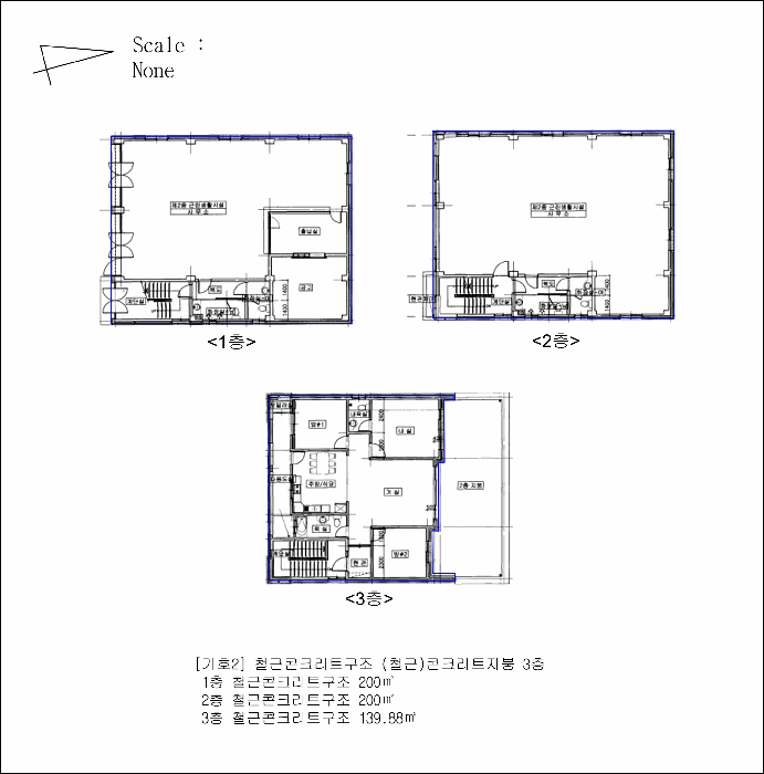
건물면적 [ 539.88㎡ (163.31평) ]
토지면적 [ 472.4㎡ (142.9평) ]
시세를 반영한 감정가 3,284,526,800에서
2회 유찰되어 감정가 대비 49%
최저가 1,609,419,000부터
입찰에 참여할 수 있습니다.
입찰보증금은 최저가 10%
160,941,900이며,
대구지방법원 경매2계에서
2026-05-06(10:00)
진행 예정입니다.
| 소재지 | [지번] 대구광역시 수성구 중동 75-5 [도로명 주소] 대구광역시 수성구 희망로 160 |
||||
|---|---|---|---|---|---|
| 용도 | 근린주택 | 채권자 | 농** | 감정가 | 3,284,526,800 |
| 건물면적 | 539.88㎡ (163.31평) | 채무자 | 이** | 최저가 | (49%) 1,609,419,000 |
| 토지면적 | 472.4㎡ (142.9평) | 소유자 | 이** | 보증금 | (10%) 160,941,900 |
| 매각대상 | 대항력있는임차인, 선순위전세권 | 경매종류 | 임의경매 | 사건접수일 | 2025-03-18 |
| 최초경매일 | 2026-05-06 | 배당종기일 | 2025-05-29 | 경매개시일 | 2025-03-19 |
| 주의사항 | ☞ 여기 눌러 무료상담 받아보기 | ||||
기일내역
| 회차 | 매각기일 | 최저매각금액 | 결과 |
|---|---|---|---|
| 신건 | 2026-03-06 | 3,284,526,800 | 유찰 |
| 2차 | 2026-04-07 | 2,299,169,000 | 유찰 |
| 3차 | 2026-05-06 | 1,609,419,000 |
임차인현황
| 임차인 | 점유현황 | 전입/확정/배당 |
|---|---|---|
| i** | 상가임차인 주식회사금보이엔씨 |
확정 : X / 배당 : X |
| i** | 상가임차인 주식회사쇼룸에이치컴퍼니 |
확정 : X / 배당 : X |
| i** | 상가임차인 정재석 |
확정 : 2022-05-09 / 배당 : 2025-05-27 |
| i** | 상가임차인 최민성 |
확정 : X / 배당 : 2025-05-27 |
| i** | 상가임차인 일성신약주식회사 |
확정 : X / 배당 : X |


















