사건번호 2025 타경 30273
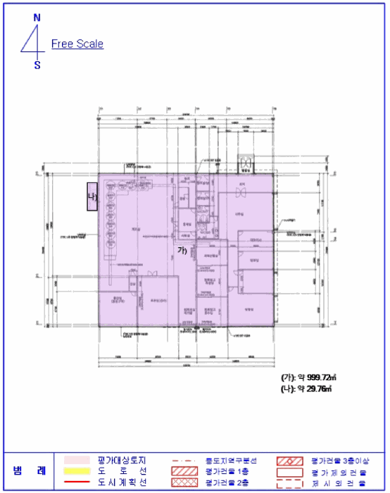
본건은 전북특별자치도 고창군 부안면 용산리 823 주1동
소재하는 공장경매 물건의 포스팅입니다.
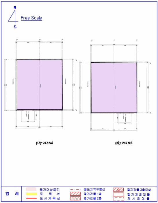
건물면적 [ 2661.32㎡ (805.05평) ]
토지면적 [ 5846.4㎡ (1768.53평) ]
시세를 반영한 감정가 3,217,228,860에서
신건으로 감정가 대비 100%
최저가 3,217,228,860부터
입찰에 참여할 수 있습니다.
입찰보증금은 최저가 10%
321,722,886이며,
정읍지원 경매3계에서
2026-05-11(10:00)
진행 예정입니다.
| 소재지 | [지번] 전북특별자치도 고창군 부안면 용산리 823 주1동 [도로명 주소] 전라북도 고창군 부안면 복분자로 434-36 주1동 |
||||
|---|---|---|---|---|---|
| 용도 | 공장 | 채권자 | 케** | 감정가 | 3,217,228,860 |
| 건물면적 | 2661.32㎡ (805.05평) | 채무자 | ㈜** | 최저가 | (100%) 3,217,228,860 |
| 토지면적 | 5846.4㎡ (1768.53평) | 소유자 | ㈜** | 보증금 | (10%) 321,722,886 |
| 매각대상 | 경매종류 | 임의경매 | 사건접수일 | 2025-05-21 | |
| 최초경매일 | 2026-05-11 | 배당종기일 | 2025-08-25 | 경매개시일 | 2025-05-26 |
| 주의사항 | ☞ 여기 눌러 무료상담 받아보기 | ||||
기일내역
| 회차 | 매각기일 | 최저매각금액 | 결과 |
|---|---|---|---|
| 2026-02-23 | 3,217,228,860 | 변경 | |
| 신건 | 2026-05-11 | 3,217,228,860 |
임차인현황
| 임차인 | 점유현황 | 전입/확정/배당 |
|---|---|---|
| 조사된 임차인 내역 없음 | ||



















































































