사건번호 2025 타경 1682
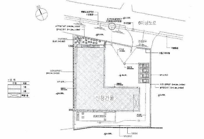
본건은 경기도 포천시 소흘읍 무봉리 444-9
소재하는 공장경매 물건의 포스팅입니다.
건물면적 [ 1441.28㎡ (435.99평) ]
토지면적 [ 1322㎡ (399.9평) ]
시세를 반영한 감정가 2,300,077,000에서
신건으로 감정가 대비 100%
최저가 2,300,077,000부터
입찰에 참여할 수 있습니다.
입찰보증금은 최저가 10%
230,007,700이며,
의정부지방법원 경매5계에서
2026-04-30(10:30)
진행 예정입니다.
| 소재지 | [지번] 경기도 포천시 소흘읍 무봉리 444-9 [도로명 주소] 경기도 포천시 소흘읍 거친봉이길 80 |
||||
|---|---|---|---|---|---|
| 용도 | 공장 | 채권자 | ㈜** | 감정가 | 2,300,077,000 |
| 건물면적 | 1441.28㎡ (435.99평) | 채무자 | ㈜** | 최저가 | (100%) 2,300,077,000 |
| 토지면적 | 1322㎡ (399.9평) | 소유자 | ㈜** | 보증금 | (10%) 230,007,700 |
| 매각대상 | 경매종류 | 임의경매 | 사건접수일 | 2025-04-22 | |
| 최초경매일 | 2026-04-30 | 배당종기일 | 2025-08-22 | 경매개시일 | 2025-05-29 |
| 주의사항 | ☞ 여기 눌러 무료상담 받아보기 | ||||
기일내역
| 회차 | 매각기일 | 최저매각금액 | 결과 |
|---|---|---|---|
| 신건 | 2026-04-30 | 2,300,077,000 |
임차인현황
| 임차인 | 점유현황 | 전입/확정/배당 |
|---|---|---|
| i** | 공장임차인 한창우 |
확정 : 2024-11-19 / 배당 : X |









































































































