사건번호 2023 타경 57289
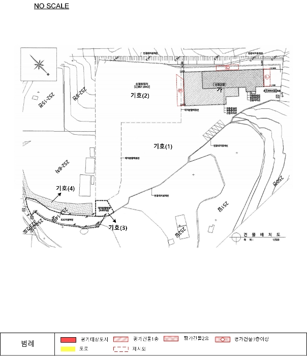
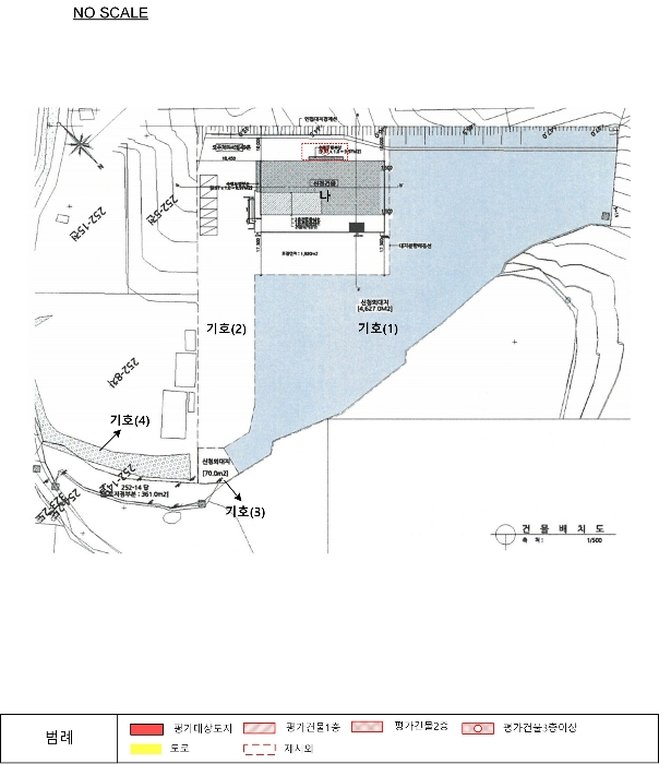
본건은 전라남도 여수시 화장동 252-1외 3필지
소재하는 공장경매 물건의 포스팅입니다.
건물면적 [ 2572.78㎡ (778.26평) ]
토지면적 [ 7964㎡ (2409.1평) ]
시세를 반영한 감정가 5,654,337,100에서
신건으로 감정가 대비 100%
최저가 5,654,337,100부터
입찰에 참여할 수 있습니다.
입찰보증금은 최저가 10%
565,433,710이며,
순천지원 경매8계에서
2026-05-04(10:00)
진행 예정입니다.
| 소재지 | [지번] 전라남도 여수시 화장동 252-1외 3필지 [도로명 주소] 전라남도 여수시 조은길 16외 3필지 |
||||
|---|---|---|---|---|---|
| 용도 | 공장 | 채권자 | ㈜**외1명 | 감정가 | 5,654,337,100 |
| 건물면적 | 2572.78㎡ (778.26평) | 채무자 | 농** | 최저가 | (100%) 5,654,337,100 |
| 토지면적 | 7964㎡ (2409.1평) | 소유자 | 농** | 보증금 | (10%) 565,433,710 |
| 매각대상 | 경매종류 | 강제경매 | 사건접수일 | 2023-08-25 | |
| 최초경매일 | 2026-05-04 | 배당종기일 | 2023-11-22 | 경매개시일 | 2023-08-28 |
| 주의사항 | ☞ 여기 눌러 무료상담 받아보기 | ||||
기일내역
| 회차 | 매각기일 | 최저매각금액 | 결과 |
|---|---|---|---|
| 신건 | 2026-05-04 | 5,654,337,100 |
임차인현황
| 임차인 | 점유현황 | 전입/확정/배당 |
|---|---|---|
| i** | 상가임차인 점포 85.12㎡2021.01.04.~2022.12.31 |
확정 : X / 배당 : X |
| i** | 상가임차인 점포 1층(85.12㎡)2022.5.15. ~2023.5.13 |
확정 : X / 배당 : X |
| i** | 주거임차인 주거용 |
전입 : 2022-09-23 / 확정 : X / 배당 : X |
| i** | 상가임차인 점포 507.33㎡2023.8.1. ~2025.7.31 |
확정 : X / 배당 : X |






























































































