사건번호 2024 타경 124418
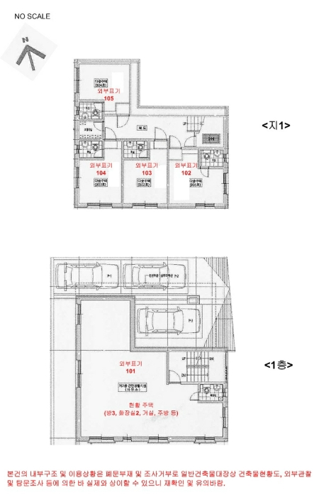
본건은 서울특별시 관악구 봉천동 662-119 전은빌
소재하는 다가구(원룸등)경매 물건의 포스팅입니다.
건물면적 [ 417.81㎡ (126.39평) ]
토지면적 [ 195㎡ (58.99평) ]
시세를 반영한 감정가 2,565,337,200에서
1회 유찰되어 감정가 대비 80%
최저가 2,052,269,760부터
입찰에 참여할 수 있습니다.
입찰보증금은 최저가 10%
205,226,976이며,
서울중앙지방법원 경매1계에서
2026-05-26(10:00)
진행 예정입니다.
| 소재지 | [지번] 서울특별시 관악구 봉천동 662-119 전은빌 [도로명 주소] 서울특별시 관악구 봉천로19길 27 전은빌 |
||||
|---|---|---|---|---|---|
| 용도 | 다가구(원룸등) | 채권자 | 부** | 감정가 | 2,565,337,200 |
| 건물면적 | 417.81㎡ (126.39평) | 채무자 | 한** | 최저가 | (80%) 2,052,269,760 |
| 토지면적 | 195㎡ (58.99평) | 소유자 | 한** | 보증금 | (10%) 205,226,976 |
| 매각대상 | 경매종류 | 임의경매 | 사건접수일 | 2024-12-02 | |
| 최초경매일 | 2026-05-26 | 배당종기일 | 2025-03-10 | 경매개시일 | 2024-12-03 |
| 주의사항 | ☞ 여기 눌러 무료상담 받아보기 | ||||
기일내역
| 회차 | 매각기일 | 최저매각금액 | 결과 |
|---|---|---|---|
| 2025-07-29 | 2,565,337,200 | 변경 | |
| 신건 | 2026-04-14 | 2,565,337,200 | 유찰 |
| 2차 | 2026-05-26 | 2,052,269,760 |
임차인현황
| 임차인 | 점유현황 | 전입/확정/배당 |
|---|---|---|
| i** | 주거임차인 403호 |
전입 : 2023-10-23 / 확정 : 2023-09-26 / 배당 : 2025-03-05 |
| i** | 주거임차인 102호 |
전입 : 2023-10-23 / 확정 : 2023-09-18 / 배당 : 2025-03-07 |
| i** | 주거임차인 202호 |
전입 : 2023-10-23 / 확정 : 2023-09-18 / 배당 : 2025-01-15 |
| i** | 주거임차인 202호 |
전입 : 2023-10-23 / 확정 : 2023-09-18 / 배당 : 2025-01-15 |
| i** | 주거임차인 103호 |
전입 : 2023-10-30 / 확정 : 2023-10-30 / 배당 : 2025-03-06 |
| i** | 주거임차인 104호,105호 |
전입 : 2023-11-10 / 확정 : 2023-11-10 / 배당 : 2025-02-18 |
| i** | 주거임차인 | 전입 : 2023-11-20 / 확정 : 2023-11-02 / 배당 : 2025-01-13 |
| i** | 주거임차인 | 전입 : 2023-11-20 / 확정 : 2023-11-02 / 배당 : 2025-01-13 |
| i** | 주거임차인 | 전입 : 2024-01-05 / 확정 : 2023-12-15 / 배당 : 2025-01-09 |
| i** | 주거임차인 | 전입 : 2024-03-12 / 확정 : 2024-03-12 / 배당 : 2025-01-07 |
| i** | 주거임차인 305호 |
전입 : 2024-03-26 / 확정 : 2024-02-28 / 배당 : 2024-12-31 |
| i** | 주거임차인 | 전입 : 2024-04-19 / 확정 : 2024-04-09 / 배당 : 2025-02-11 |
| i** | 주거임차인 204호 |
전입 : 2024-07-01 / 확정 : 2024-05-29 / 배당 : 2025-01-15 |
| i** | 주거임차인 QUANXIONG |
전입 : 2024-07-08 / 확정 : X / 배당 : X |
| i** | 주거임차인 205호 |
전입 : 2024-07-15 / 확정 : 2024-06-20 / 배당 : 2025-01-09 |
| i** | 주거임차인 | 전입 : 2024-07-29 / 확정 : 2024-06-11 / 배당 : 2024-12-31 |
| i** | 주거임차인 401호 |
전입 : 2024-12-17 / 확정 : 2023-12-26 / 배당 : 2025-01-17 |















































