유성주택경매 유성구 덕명서로12번길 15 №2024 타경 1484

차별화된 5단계 맞춤형 경매 서비스 - 더블옥션
법원경매전문 (주)더블옥션은 보증보험 가입 및 법원 매수대리 등록업체로 안전하고 책임있는 컨설팅을 진행합니다. 등록번호(02-17-3)
사건번호 2024 타경 1484

본건은 대전광역시 유성구 덕명서로12번길 15
소재하는 근린주택경매 물건의 포스팅입니다.

건물면적 [ 856.11㎡ (258.97평) ]
토지면적 [ 483.5㎡ (146.26평) ]

시세를 반영한 감정가 2,644,770,500에서
1회 유찰되어 감정가 대비 70%
최저가 1,851,339,000부터
입찰에 참여할 수 있습니다.

입찰보증금은 최저가 10%
185,133,900이며,
대전지방법원 경매4계에서
2026-04-22(10:00)
진행 예정입니다.

소재지 [지번] 대전광역시 유성구 덕명서로12번길 15
[도로명 주소] 대전광역시 유성구 덕명서로12번길 15
용도 근린주택 채권자 한** 감정가 2,644,770,500
건물면적 856.11㎡ (258.97평) 채무자 임** 최저가 (70%) 1,851,339,000
토지면적 483.5㎡ (146.26평) 소유자 임** 보증금 (10%) 185,133,900
매각대상 대항력있는임차인 경매종류 임의경매 사건접수일 2024-02-02
최초경매일 2026-04-22 배당종기일 2024-05-07 경매개시일 2024-02-05
주의사항 ☞ 여기 눌러 무료상담 받아보기

기일내역

회차 매각기일 최저매각금액 결과
신건 2024-10-31 2,644,770,500 유찰
2024-12-05 1,851,339,000 변경
2차 2026-04-22 1,851,339,000
정확한 권리 분석, 꼼꼼한 현장 조사, 예상 낙찰가 제안, 대출 연계, 점유자 이전 - 더블옥션

임차인현황

임차인 점유현황 전입/확정/배당
i** 주거임차인
305호
전입 : 2022-02-20 / 확정 : 2022-02-06 / 배당 : 2024-04-29
i** 주거임차인
401호
전입 : 2022-12-08 / 확정 : 2022-12-08 / 배당 : 2024-02-21
i** 상가임차인
1층
확정 : 2023-01-06 / 배당 : 2024-02-21
i** 주거임차인
302호
전입 : 2023-02-15 / 확정 : 2023-01-17 / 배당 : 2024-02-22
i** 주거임차인
305호
전입 : 2023-02-20 / 확정 : X / 배당 : X
i** 주거임차인
201호
전입 : 2023-03-10 / 확정 : 2023-02-01 / 배당 : 2024-04-29
i** 주거임차인
201호
전입 : 2023-03-10 / 확정 : X / 배당 : X
i** 주거임차인
204호
전입 : 2023-05-23 / 확정 : 2023-05-04 / 배당 : 2024-04-29
i** 주거임차인
204호
전입 : 2023-05-23 / 확정 : X / 배당 : X
i** 주거임차인
204호
전입 : 2023-05-23 / 확정 : X / 배당 : X
i** 주거임차인
201호
전입 : 2023-07-06 / 확정 : X / 배당 : X
i** 주거임차인
302호
전입 : 2023-07-21 / 확정 : X / 배당 : X
i** 주거임차인
304호
전입 : 2023-08-22 / 확정 : 2023-08-22 / 배당 : 2024-02-20
i** 주거임차인
403호
전입 : 2023-08-23 / 확정 : 2023-08-23 / 배당 : 2024-02-21
i** 주거임차인
301호
전입 : 2023-08-28 / 확정 : 2023-08-28 / 배당 : 2024-02-21
i** 주거임차인
205호
전입 : 2023-09-01 / 확정 : 2023-09-01 / 배당 : 2024-04-17
i** 주거임차인
402호
전입 : 2023-09-04 / 확정 : 2023-09-04 / 배당 : 2024-02-20
i** 주거임차인
402호
전입 : 2023-09-04 / 확정 : X / 배당 : X
i** 주거임차인
202호
전입 : 2023-09-27 / 확정 : 2023-09-12 / 배당 : 2024-02-26
i** 주거임차인
203호
전입 : 2024-02-02 / 확정 : 2024-02-02 / 배당 : 2024-05-03
더블옥션은 법원 등록 및 보증 보험 가입 업체로 안전하고 성공적인 당신의 비즈니스를 지원합니다. - 더블옥션
전경 (1)
전경 (2)
전경 (3)
1층 상가 외부모습
1층 상가 안내문 부착
건물 옆면
우편함
공동출입구 부분
상가 실내모습
1층 주차장
1층 복도 및 엘리베이터실
2층 계단
2층 복도
201호 안내문 부착
202호 안내문 부착
203호 안내문 부착
204호 안내문 부착
205호 안내문 부착
3층 계단
3층 복도
301호 안내문 부착
302호 안내문 부착
303호 안내문 부착
304호 안내문 부착
305호 안내문 부착
4층 계단
4층 복도
401호 안내문 부착
402호 안내문 부착
403호 안내문 부착
지번약도
본건 남측 전경
1층 복도 및 계단실
3층 3호 - 5호 전경
본건 동측 전경
2층 1호 - 2호 전경
4층 1호 전경
남측 주위 전경
2층 3호 -5호 전경
4층 2호 - 3호 전경
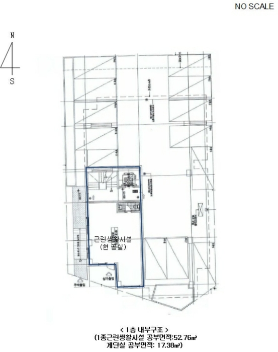
1층 근린생활시설 전경
3층 1호 - 2호 전경
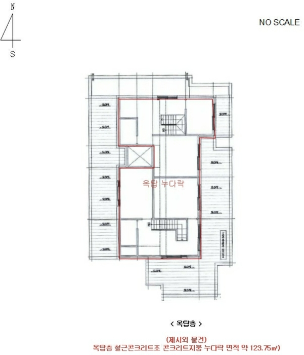
옥탑 누다락 전경
건 물 개 황 도
건 물 개 황 도
건 물 개 황 도
건 물 개 황 도
위 치 도
광 역 위 치 도
지 적 도
부동산 경매 전문기업 - 더블옥션

Related Posts