사건번호 2025 타경 51795
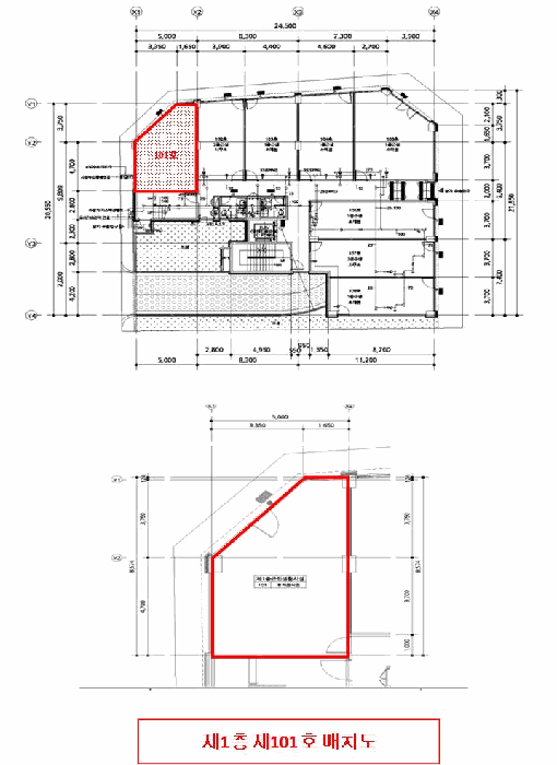
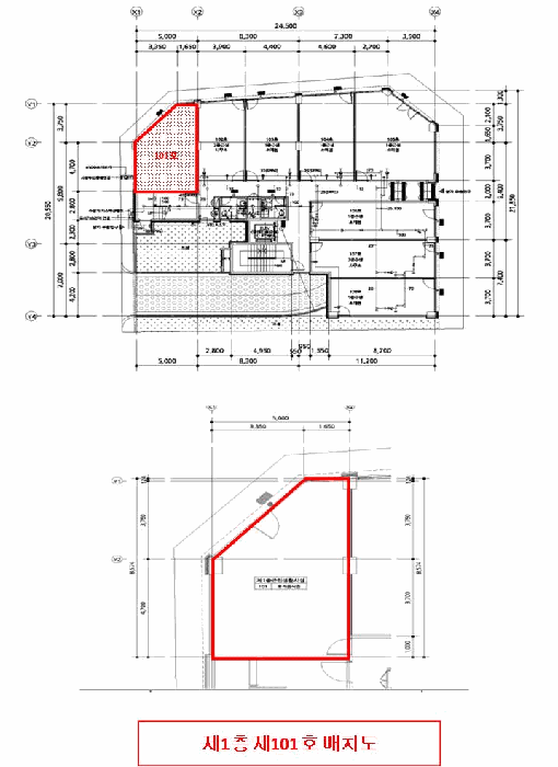
본건은 경기도 성남시 수정구 고등동 616 대왕빌딩주건축물 제1동 제1층 제101호
소재하는 근린상가경매 물건의 포스팅입니다.
건물면적 [ 36.07㎡ (10.91평) ]
대지권 [ 15.44㎡ (4.67평) ]
시세를 반영한 감정가 783,000,000에서
2회 유찰되어 감정가 대비 49%
최저가 383,670,000부터
입찰에 참여할 수 있습니다.
입찰보증금은 최저가 10%
38,367,000이며,
성남지원 경매4계에서
2026-04-20(10:00)
진행 예정입니다.
| 소재지 | [지번] 경기도 성남시 수정구 고등동 616 대왕빌딩주건축물 제1동 제1층 제101호 [도로명 주소] 경기도 성남시 수정구 대왕판교로 945(고등동) 대왕빌딩주건축물 제1동 제1층 제101호 |
||||
|---|---|---|---|---|---|
| 용도 | 근린상가 | 채권자 | 서** | 감정가 | 783,000,000 |
| 건물면적 | 36.07㎡ (10.91평) | 채무자 | ㈜** | 최저가 | (49%) 383,670,000 |
| 대지권 | 15.44㎡ (4.67평) | 소유자 | ㈜** | 보증금 | (10%) 38,367,000 |
| 매각대상 | 대항력있는임차인 | 경매종류 | 임의경매 | 사건접수일 | 2025-03-14 |
| 최초경매일 | 2026-04-20 | 배당종기일 | 2025-05-19 | 경매개시일 | 2025-03-15 |
| 주의사항 | ☞ 여기 눌러 무료상담 받아보기 | ||||
기일내역
| 회차 | 매각기일 | 최저매각금액 | 결과 |
|---|---|---|---|
| 신건 | 2026-02-09 | 783,000,000 | 유찰 |
| 2차 | 2026-03-16 | 548,100,000 | 유찰 |
| 3차 | 2026-04-20 | 383,670,000 |
임차인현황
| 임차인 | 점유현황 | 전입/확정/배당 |
|---|---|---|
| i** | 상가임차인 | 확정 : 2024-11-20 / 배당 : 2025-04-09 |



















