사건번호 2024 타경 1723
본건은 서울특별시 광진구 중곡동 176-45
소재하는 근린주택경매 물건의 포스팅입니다.
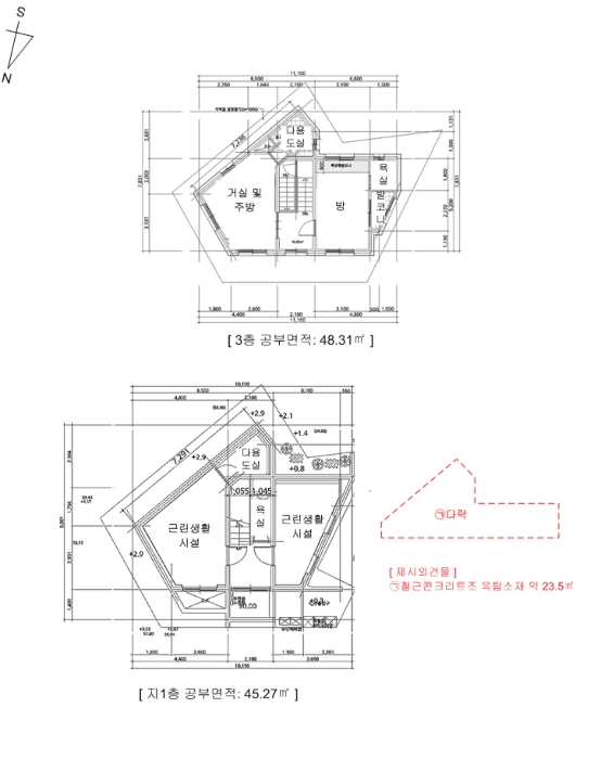
건물면적 [ 220.51㎡ (66.7평) ]
토지면적 [ 106㎡ (32.06평) ]
시세를 반영한 감정가 1,038,112,940에서
3회 유찰되어 감정가 대비 51%
최저가 531,514,000부터
입찰에 참여할 수 있습니다.
입찰보증금은 최저가 10%
53,151,400이며,
서울동부지방법원 경매1계에서
2026-04-20(10:00)
진행 예정입니다.
| 소재지 | [지번] 서울특별시 광진구 중곡동 176-45 [도로명 주소] 서울특별시 광진구 용마산로28나길 12 |
||||
|---|---|---|---|---|---|
| 용도 | 근린주택 | 채권자 | 남** | 감정가 | 1,038,112,940 |
| 건물면적 | 220.51㎡ (66.7평) | 채무자 | 김** | 최저가 | (51%) 531,514,000 |
| 토지면적 | 106㎡ (32.06평) | 소유자 | 김** | 보증금 | (10%) 53,151,400 |
| 매각대상 | 공시가격1~2억, 유치권 | 경매종류 | 임의경매 | 사건접수일 | 2024-06-05 |
| 최초경매일 | 2026-04-20 | 배당종기일 | 2024-08-26 | 경매개시일 | 2024-06-07 |
| 주의사항 | ☞ 여기 눌러 무료상담 받아보기 | ||||
기일내역
| 회차 | 매각기일 | 최저매각금액 | 결과 |
|---|---|---|---|
| 2025-04-07 | 1,038,112,940 | 변경 | |
| 신건 | 2025-08-11 | 1,038,112,940 | 유찰 |
| 2차 | 2025-09-15 | 830,490,000 | 유찰 |
| 3차 | 2025-11-03 | 664,392,000 | 유찰 |
| 2025-12-08 | 531,514,000 | 변경 | |
| 4차 | 2026-04-20 | 531,514,000 |
임차인현황
| 임차인 | 점유현황 | 전입/확정/배당 |
|---|---|---|
| i** | 유치권점유자 김종환 |
전입 : X / 확정 : X / 배당 : X |





















