사건번호 2023 타경 83871
본건은 경기도 포천시 일동면 유동리 400-8 1동외 4필지
소재하는 공장경매 물건의 포스팅입니다.
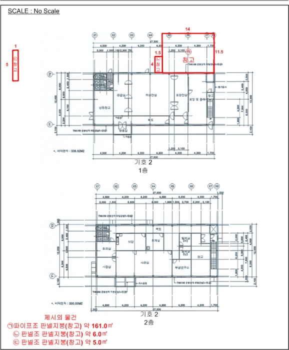
건물면적 [ 840.82㎡ (254.35평) ]
토지면적 [ 전체:4476㎡ (1353.98평)
매각지분:3813㎡ (1153.43평) ]
시세를 반영한 감정가 1,566,984,000에서
1회 유찰되어 감정가 대비 70%
최저가 1,096,889,000부터
입찰에 참여할 수 있습니다.
입찰보증금은 최저가 10%
109,688,900이며,
의정부지방법원 경매9계에서
2026-05-06(10:00)
진행 예정입니다.
| 소재지 | [지번] 경기도 포천시 일동면 유동리 400-8 1동외 4필지 [도로명 주소] 경기도 포천시 일동면 화동로 697-61 1동외 4필지 |
||||
|---|---|---|---|---|---|
| 용도 | 공장 | 채권자 | 중** | 감정가 | 1,566,984,000 |
| 건물면적 | 840.82㎡ (254.35평) | 채무자 | 농** | 최저가 | (70%) 1,096,889,000 |
| 토지면적 | 전체:4476㎡ (1353.98평) 매각지분:3813㎡ (1153.43평) |
소유자 | 농** | 보증금 | (10%) 109,688,900 |
| 매각대상 | 건물전부, 토지지분 | 경매종류 | 임의경매 | 사건접수일 | 2023-11-02 |
| 최초경매일 | 2026-05-06 | 배당종기일 | 2024-01-23 | 경매개시일 | 2023-11-03 |
| 주의사항 | ☞ 여기 눌러 무료상담 받아보기 | ||||
기일내역
| 회차 | 매각기일 | 최저매각금액 | 결과 |
|---|---|---|---|
| 신건 | 2026-04-01 | 1,566,984,000 | 유찰 |
| 2차 | 2026-05-06 | 1,096,889,000 |
임차인현황
| 임차인 | 점유현황 | 전입/확정/배당 |
|---|---|---|
| i** | 공장임차인 유성수 |
확정 : X / 배당 : X |
| i** | 공장임차인 박은선 |
확정 : X / 배당 : X |






































