사건번호 2025 타경 1951
본건은 경기도 파주시 조리읍 장곡리 530-8외 1필지
소재하는 주택경매 물건의 포스팅입니다.
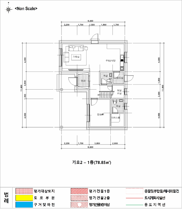
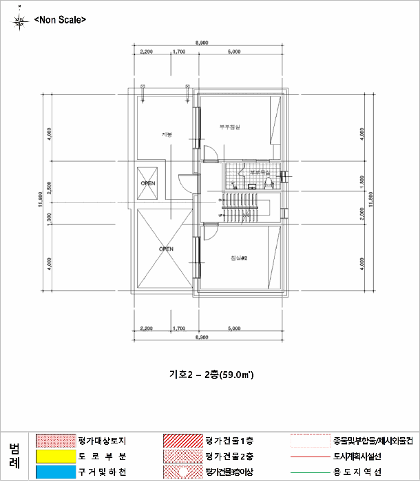
건물면적 [ 284.85㎡ (86.17평) ]
토지면적 [ 전체:1309㎡ (395.97평)
매각지분:470.05㎡ (142.19평) ]
시세를 반영한 감정가 756,764,600에서
2회 유찰되어 감정가 대비 70%
최저가 529,740,000부터
입찰에 참여할 수 있습니다.
입찰보증금은 최저가 10%
52,974,000이며,
고양지원 경매2계에서
2026-04-15(10:00)
진행 예정입니다.
| 소재지 | [지번] 경기도 파주시 조리읍 장곡리 530-8외 1필지 [도로명 주소] 경기도 파주시 조리읍 명봉산로 32-17외 1필지 |
||||
|---|---|---|---|---|---|
| 용도 | 주택 | 채권자 | ㈜** | 감정가 | 756,764,600 |
| 건물면적 | 284.85㎡ (86.17평) | 채무자 | ㈜** | 최저가 | (70%) 529,740,000 |
| 토지면적 | 전체:1309㎡ (395.97평) 매각지분:470.05㎡ (142.19평) |
소유자 | 민** | 보증금 | (10%) 52,974,000 |
| 매각대상 | 건물전부, 토지지분, 공시가격2~3억 | 경매종류 | 임의경매 | 사건접수일 | 2025-04-14 |
| 최초경매일 | 2026-04-15 | 배당종기일 | 2025-07-07 | 경매개시일 | 2025-04-15 |
| 주의사항 | ☞ 여기 눌러 무료상담 받아보기 | ||||
기일내역
| 회차 | 매각기일 | 최저매각금액 | 결과 |
|---|---|---|---|
| 신건 | 2025-12-17 | 744,764,600 | 유찰 |
| 2026-01-28 | 521,335,000 | 변경 | |
| 신건 | 2026-03-11 | 756,764,600 | 유찰 |
| 2차 | 2026-04-15 | 529,740,000 |
임차인현황
| 임차인 | 점유현황 | 전입/확정/배당 |
|---|---|---|
| 조사된 임차인 내역 없음 | ||

































