서산주택경매 서산시 해미면 반양리 242-19외 6필지 №2024 타경 51064(1)

차별화된 5단계 맞춤형 경매 서비스 - 더블옥션
법원경매전문 (주)더블옥션은 보증보험 가입 및 법원 매수대리 등록업체로 안전하고 책임있는 컨설팅을 진행합니다. 등록번호(02-17-3)
사건번호 2024 타경 51064(1)

본건은 충청남도 서산시 해미면 반양리 242-19외 6필지
소재하는 주택경매 물건의 포스팅입니다.

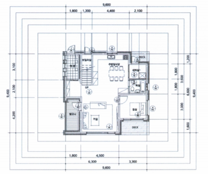
건물면적 [ 127.14㎡ (38.46평) ]
토지면적 [ 1729㎡ (523.02평) ]

시세를 반영한 감정가 390,001,600에서
3회 유찰되어 감정가 대비 34%
최저가 133,770,000부터
입찰에 참여할 수 있습니다.

입찰보증금은 최저가 10%
13,377,000이며,
서산지원 경매3계에서
2026-04-15(10:00)
진행 예정입니다.

소재지 [지번] 충청남도 서산시 해미면 반양리 242-19외 6필지
[도로명 주소] 충청남도 서산시 해미면 중앙로 985-20외 6필지
용도 주택 채권자 원** 감정가 390,001,600
건물면적 127.14㎡ (38.46평) 채무자 이** 최저가 (34%) 133,770,000
토지면적 1729㎡ (523.02평) 소유자 이** 보증금 (10%) 13,377,000
매각대상 공시가격1~2억 경매종류 임의경매 사건접수일 2024-01-26
최초경매일 2026-04-15 배당종기일 2024-04-26 경매개시일 2024-01-29
주의사항 ☞ 여기 눌러 무료상담 받아보기

기일내역

회차 매각기일 최저매각금액 결과
신건 2025-11-26 390,001,600 유찰
2차 2026-01-07 273,001,000 유찰
3차 2026-03-18 191,100,000 유찰
4차 2026-04-15 133,770,000
정확한 권리 분석, 꼼꼼한 현장 조사, 예상 낙찰가 제안, 대출 연계, 점유자 이전 - 더블옥션

임차인현황

임차인 점유현황 전입/확정/배당
조사된 임차인 내역 없음
더블옥션은 법원 등록 및 보증 보험 가입 업체로 안전하고 성공적인 당신의 비즈니스를 지원합니다. - 더블옥션
목록 1 남쪽에
목록 2 출입구
목록 2 진입로
목록 2  2층
목록 3 남쪽부
목록 6 북쪽부
목록 6 남쪽부
목록 7 남쪽부
목록 7 북쪽부
목록 7 관정부
목록 2 전경
목록 1 내 목
목록 1 남쪽
목록 1 남쪽
목록 1 북쪽부
목록 1 북쪽
목록 3 북서쪽
목록 4 북쪽부
목록 4 남쪽부
목록 5 북쪽부
목록 5 남쪽부
목록 7 관정부
목록 8 전경
기호 1 2
기호 4 5
기호 8
제시외 관정(기
기호 3  7
기호 6
건 물 개 황 도
위 치 도 1
광 역 위 치 도
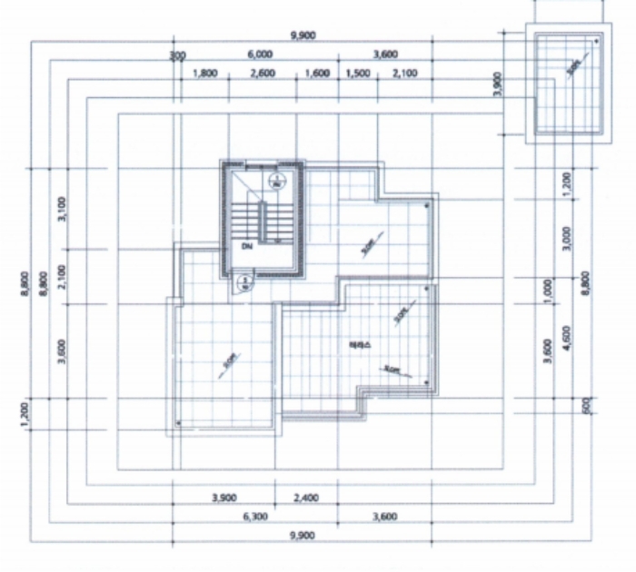
내 부 구 조
내 부 구 조
내 부 구 조
지 적 도 1
지 적 도 2
부동산 경매 전문기업 - 더블옥션

Related Posts