사건번호 2024 타경 2903
본건은 서울특별시 금천구 가산동 147-55 그린엠빌딩
소재하는 다가구(원룸등)경매 물건의 포스팅입니다.
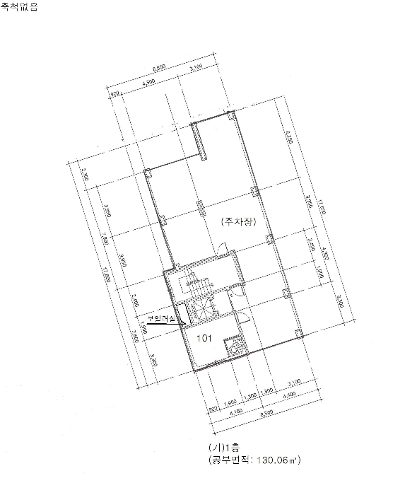
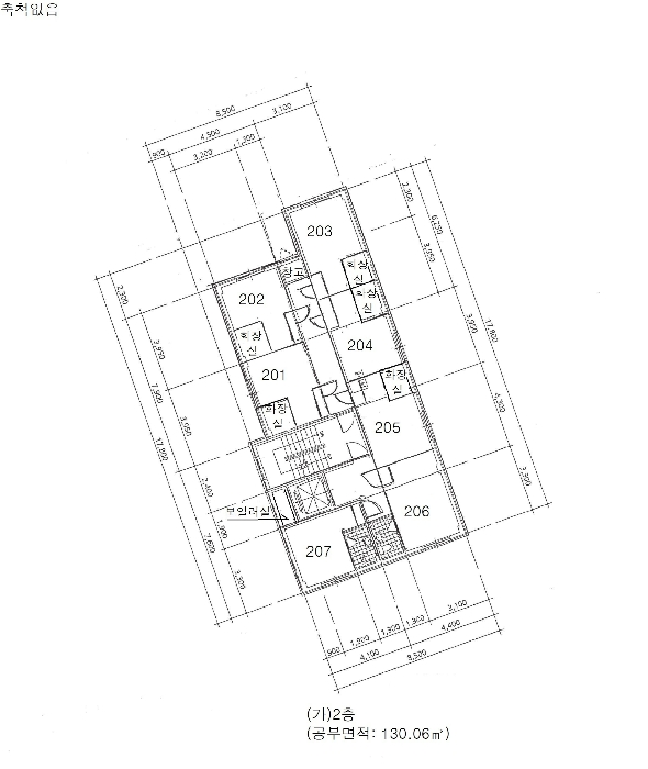
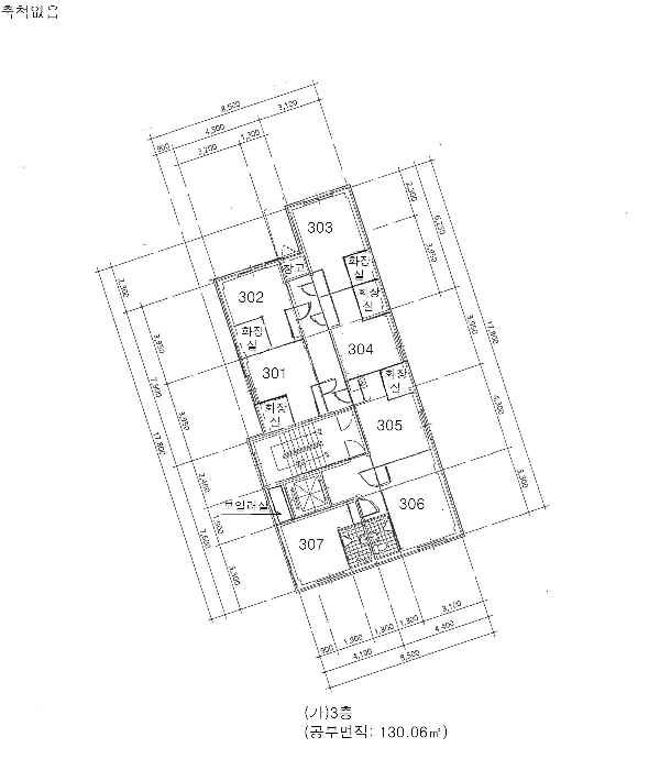
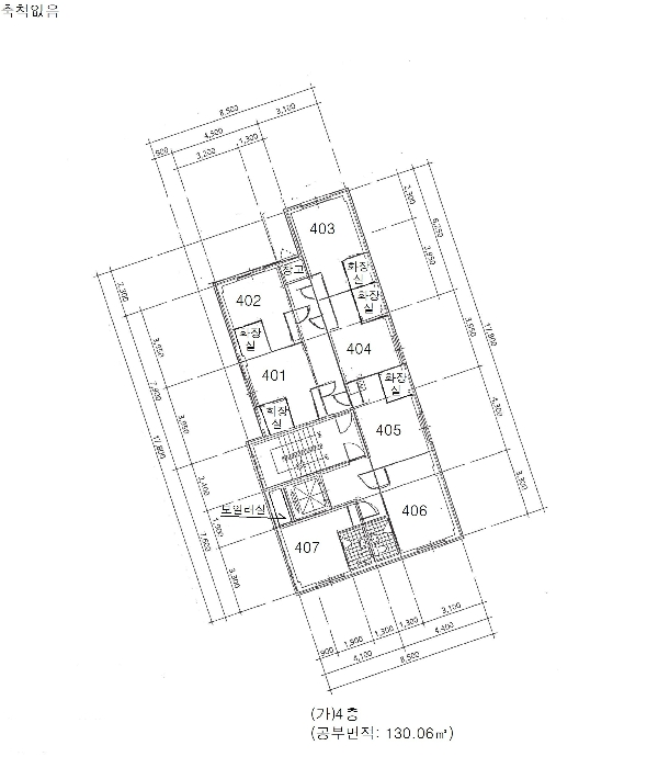
건물면적 [ 901.25㎡ (272.63평) ]
토지면적 [ 216.9㎡ (65.61평) ]
시세를 반영한 감정가 2,997,544,460에서
2회 유찰되어 감정가 대비 64%
최저가 1,918,429,000부터
입찰에 참여할 수 있습니다.
입찰보증금은 최저가 10%
191,842,900이며,
서울남부지방법원 경매9계에서
2026-04-07(10:00)
진행 예정입니다.
| 소재지 | [지번] 서울특별시 금천구 가산동 147-55 그린엠빌딩 [도로명 주소] 서울특별시 금천구 남부순환로112길 25 그린엠빌딩 |
||||
|---|---|---|---|---|---|
| 용도 | 다가구(원룸등) | 채권자 | ㈜** | 감정가 | 2,997,544,460 |
| 건물면적 | 901.25㎡ (272.63평) | 채무자 | 구**외1명 | 최저가 | (64%) 1,918,429,000 |
| 토지면적 | 216.9㎡ (65.61평) | 소유자 | 구**외1명 | 보증금 | (10%) 191,842,900 |
| 매각대상 | 임차권등기 | 경매종류 | 임의경매 | 사건접수일 | 2024-06-03 |
| 최초경매일 | 2026-04-07 | 배당종기일 | 2024-09-25 | 경매개시일 | 2024-06-26 |
| 주의사항 | ☞ 여기 눌러 무료상담 받아보기 | ||||
기일내역
| 회차 | 매각기일 | 최저매각금액 | 결과 |
|---|---|---|---|
| 신건 | 2026-01-08 | 2,997,544,460 | 유찰 |
| 2차 | 2026-02-25 | 2,398,036,000 | 유찰 |
| 3차 | 2026-04-07 | 1,918,429,000 |
임차인현황
| 임차인 | 점유현황 | 전입/확정/배당 |
|---|---|---|
| i** | 주거임차인 주거용2012.05.13. ~ 현재 |
전입 : 2012-05-14 / 확정 : 2012-05-14 / 배당 : 2024-08-22 |
| i** | 주거임차인 주거용 |
전입 : 2014-11-05 / 확정 : X / 배당 : X |
| i** | 주거임차인 주거용2017.02.20 ~ |
전입 : 2017-03-15 / 확정 : 2017-03-15 / 배당 : 2024-09-25 |
| i** | 주거임차인 주거용 3층 306호2017.04.05.~ |
전입 : 2017-04-05 / 확정 : 2017-04-05 / 배당 : 2024-09-03 |
| i** | 주거임차인 주거용 207호2018.07.22.~ |
전입 : 2018-07-24 / 확정 : 2023-12-04 / 배당 : 2024-09-24 |
| i** | 주거임차인 주거용2018.10.27 ~ |
전입 : 2018-11-01 / 확정 : 2023-11-28 / 배당 : 2024-09-12 |
| i** | 주거임차인 주거용 305호2019.11.17 ~ 2021.11.17 |
전입 : 2019-11-18 / 확정 : 2019-11-18 / 배당 : 2024-09-20 |
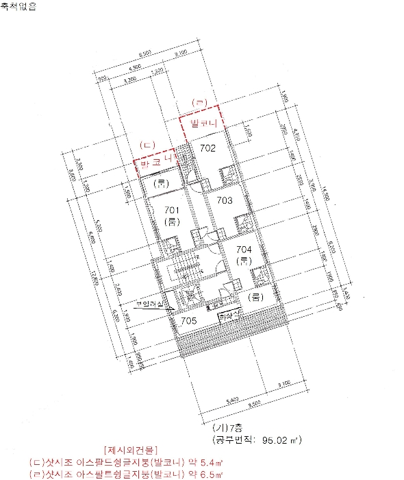
| i** | 주거임차인 주거용 7층 702호2020.01.31.~ |
전입 : 2020-02-03 / 확정 : 2020-01-20 / 배당 : 2024-08-06 |
| i** | 주거임차인 주거용 406호2020.03.31.~ |
전입 : 2020-03-31 / 확정 : X / 배당 : X |
| i** | 주거임차인 주거용 6층 604호2020.04.11.~2024.04.11. |
전입 : 2020-04-09 / 확정 : 2020-03-27 / 배당 : 2024-09-19 |
| i** | 주거임차인 주거용 7층 703호2020.05.16 ~ 2023.05.15 |
전입 : 2020-05-19 / 확정 : 2020-04-20 / 배당 : 2024-07-28 |
| i** | 주거임차인 주거용 6층 607호2020.06.06 ~ 2023.06.05 |
전입 : 2020-06-09 / 확정 : 2020-05-21 / 배당 : 2024-11-20 |
| i** | 주거임차인 주거용 6층 602호2020.06.12. |
전입 : 2020-06-18 / 확정 : 2020-05-20 / 배당 : 2024-05-16 |
| i** | 주거임차인 주거용 |
전입 : 2020-06-26 / 확정 : X / 배당 : X |
| i** | 주거임차인 주거용 6층 603호2020.08.20.~현재 |
전입 : 2020-08-20 / 확정 : 2020-07-22 / 배당 : 2024-08-01 |
| i** | 주거임차인 주거용 2층 206호2021.05.14.~2024.05.13. |
전입 : 2021-04-19 / 확정 : 2021-04-21 / 배당 : 2024-09-19 |
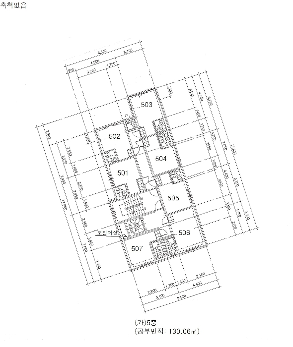
| i** | 주거임차인 주거용 5층 502호2021.09.17 ~ 2023.09.17 |
전입 : 2021-09-17 / 확정 : 2021-08-27 / 배당 : 2024-08-16 |
| i** | 주거임차인 주거용 5층 504호2021.09.17 ~ 2023.09.16 |
전입 : 2021-10-06 / 확정 : 2021-08-23 / 배당 : 2024-07-04 |
| i** | 주거임차인 주거용 5층 503호2021.10.26~ |
전입 : 2021-10-26 / 확정 : 2021-09-23 / 배당 : 2024-09-24 |
| i** | 주거임차인 주거용 5층 505호2021.12.17 ~ 2023.12.16 |
전입 : 2021-12-17 / 확정 : 2021-11-22 / 배당 : 2024-07-19 |
| i** | 주거임차인 주거용 5층 507호2022.01.14 ~ 2024.01.13 |
전입 : 2022-01-14 / 확정 : 2022-01-04 / 배당 : 2024-08-05 |
| i** | 주거임차인 주거용 7층 704호2022.01.28.~2024.01.27 |
전입 : 2022-01-28 / 확정 : 2022-01-28 / 배당 : 2024-08-12 |
| i** | 주거임차인 주거용 6층 605호2022.03.12~2024.03.11 |
전입 : 2022-03-14 / 확정 : 2022-02-28 / 배당 : 2024-07-04 |
| i** | 주거임차인 주거용 |
전입 : 2022-04-12 / 확정 : X / 배당 : X |
| i** | 주거임차인 주거용 7층 701호2022.05.11 ~ 2024.05.10 |
전입 : 2022-05-12 / 확정 : 2022-04-25 / 배당 : 2024-07-12 |
| i** | 주거임차인 주거용 4층 401호2022.05.15.~2024.05.14 |
전입 : 2022-05-20 / 확정 : 2022-05-20 / 배당 : 2024-08-08 |
| i** | 주거임차인 주거용 6층 606호2022.05.28.~2024.05.27. |
전입 : 2022-06-07 / 확정 : 2022-05-09 / 배당 : 2024-08-29 |
| i** | 주거임차인 주거용 6층 601호2022.06.28~2024.06.27 |
전입 : 2022-06-29 / 확정 : 2022-06-13 / 배당 : 2024-07-30 |
| i** | 주거임차인 주거용 5층 501호2022.09.05 ~ 2023.09.04 |
전입 : 2022-09-05 / 확정 : 2022-09-05 / 배당 : 2024-08-07 |
| i** | 주거임차인 주거용 |
전입 : 2022-10-17 / 확정 : X / 배당 : X |
| i** | 주거임차인 주거용2022.10.20 ~ 2023.10.19 |
전입 : 2022-10-21 / 확정 : 2022-10-21 / 배당 : 2024-08-06 |
| i** | 주거임차인 주거용 |
전입 : 2023-01-26 / 확정 : X / 배당 : X |
| i** | 주거임차인 주거용 4층 404호2023.03.10.~2025.03.09. |
전입 : 2023-03-10 / 확정 : 2023-02-15 / 배당 : 2024-07-11 |
| i** | 주거임차인 주거용 |
전입 : 2023-07-11 / 확정 : X / 배당 : X |
| i** | 주거임차인 주거용 5층 506호2023.08.09.~2025.08.08. |
전입 : 2023-08-10 / 확정 : 2023-07-26 / 배당 : 2024-07-16 |
| i** | 주거임차인 주거용 |
전입 : 2023-09-04 / 확정 : X / 배당 : X |
| i** | 주거임차인 주거용 ;2층 201호2023.04.07. |
전입 : 2023-10-24 / 확정 : 2023-10-24 / 배당 : 2023-12-07 |
| i** | 주거임차인 주거용 |
전입 : 2024-02-06 / 확정 : X / 배당 : X |






































































































