사건번호 2025 타경 51660
본건은 경기도 하남시 감이동 475-9 에스디주건축물제1동
소재하는 근린시설경매 물건의 포스팅입니다.
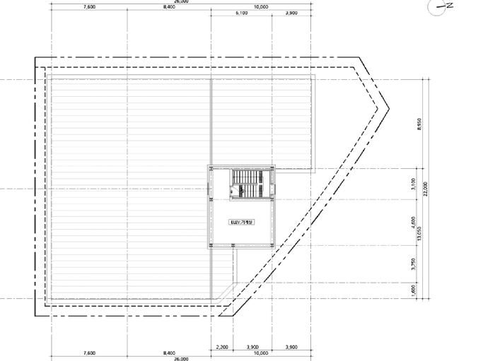
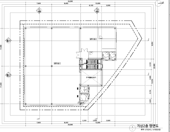
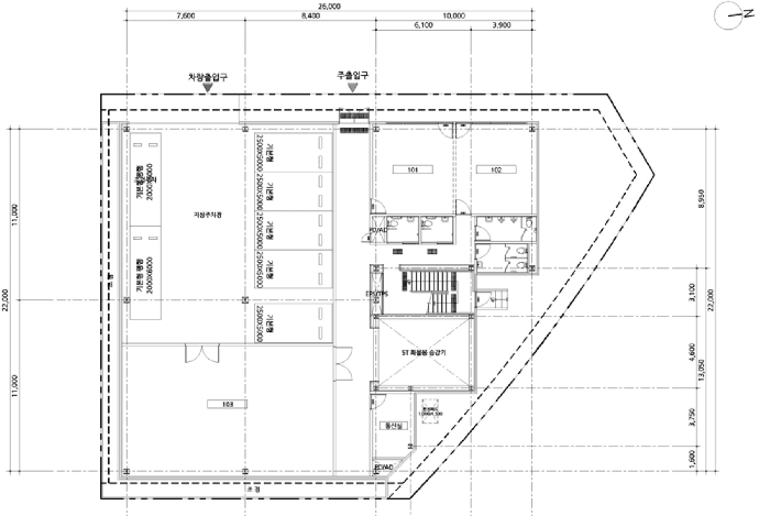
건물면적 [ 1054.72㎡ (319.05평) ]
토지면적 [ 763.7㎡ (231.02평) ]
시세를 반영한 감정가 6,472,376,800에서
신건으로 감정가 대비 100%
최저가 6,472,376,800부터
입찰에 참여할 수 있습니다.
입찰보증금은 최저가 10%
647,237,680이며,
성남지원 경매6계에서
2026-03-23(10:00)
진행 예정입니다.
| 소재지 | [지번] 경기도 하남시 감이동 475-9 에스디주건축물제1동 [도로명 주소] 경기도 하남시 신우실로 144 에스디주건축물제1동 |
||||
|---|---|---|---|---|---|
| 용도 | 근린시설 | 채권자 | 농** | 감정가 | 6,472,376,800 |
| 건물면적 | 1054.72㎡ (319.05평) | 채무자 | 나** | 최저가 | (100%) 6,472,376,800 |
| 토지면적 | 763.7㎡ (231.02평) | 소유자 | 나** | 보증금 | (10%) 647,237,680 |
| 매각대상 | 경매종류 | 임의경매 | 사건접수일 | 2025-02-20 | |
| 최초경매일 | 2026-03-23 | 배당종기일 | 2025-05-21 | 경매개시일 | 2025-02-21 |
| 주의사항 | ☞ 여기 눌러 무료상담 받아보기 | ||||
기일내역
| 회차 | 매각기일 | 최저매각금액 | 결과 |
|---|---|---|---|
| 신건 | 2026-03-23 | 6,472,376,800 |
임차인현황
| 임차인 | 점유현황 | 전입/확정/배당 |
|---|---|---|
| i** | 공장임차인 | 확정 : X / 배당 : 2025-05-16 |
















