사건번호 2025 타경 5632
본건은 경기도 고양시 일산동구 식사동 1565 위시티블루밍5단지 제507동 제19층 제1903호
소재하는 아파트경매 물건의 포스팅입니다.
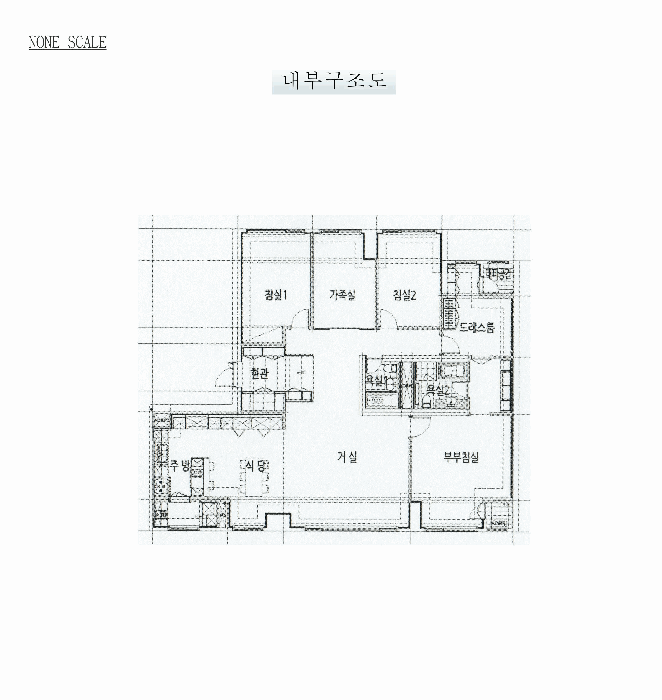
건물면적 [ 154.74㎡ (46.81평) ]
대지권 [ 87.12㎡ (26.35평) ]
시세를 반영한 감정가 900,000,000에서
1회 유찰되어 감정가 대비 70%
최저가 630,000,000부터
입찰에 참여할 수 있습니다.
입찰보증금은 최저가 10%
63,000,000이며,
고양지원 경매1계에서
2026-04-14(10:00)
진행 예정입니다.
| 소재지 | [지번] 경기도 고양시 일산동구 식사동 1565 위시티블루밍5단지 제507동 제19층 제1903호 [도로명 주소] 경기도 고양시 일산동구 위시티1로 7 위시티블루밍5단지 제507동 제19층 제1903호 |
||||
|---|---|---|---|---|---|
| 용도 | 아파트 | 채권자 | ㈜** | 감정가 | 900,000,000 |
| 건물면적 | 154.74㎡ (46.81평) | 채무자 | 안** | 최저가 | (70%) 630,000,000 |
| 대지권 | 87.12㎡ (26.35평) | 소유자 | 안** | 보증금 | (10%) 63,000,000 |
| 매각대상 | 임차권등기 | 경매종류 | 임의경매 | 사건접수일 | 2025-09-17 |
| 최초경매일 | 2026-04-14 | 배당종기일 | 2025-12-08 | 경매개시일 | 2025-09-18 |
| 주의사항 | ☞ 여기 눌러 무료상담 받아보기 | ||||
기일내역
| 회차 | 매각기일 | 최저매각금액 | 결과 |
|---|---|---|---|
| 신건 | 2026-03-10 | 900,000,000 | 유찰 |
| 2차 | 2026-04-14 | 630,000,000 |
임차인현황
| 임차인 | 점유현황 | 전입/확정/배당 |
|---|---|---|
| i** | 주거임차인 주은형 |
전입 : 2022-10-14 / 확정 : 2022-10-14 / 배당 : 2024-11-29 |







![[507동 전경(1)]](https://filelab.co.kr/auctionimg/2026/20260221/B214807202501300056322.jpg)
![[507동 출입문 전경]](https://filelab.co.kr/auctionimg/2026/20260221/B214807202501300056323.jpg)
![[507동 전경(2)]](https://filelab.co.kr/auctionimg/2026/20260221/B214807202501300056324.jpg)
![[1903호 출입문 전경]](https://filelab.co.kr/auctionimg/2026/20260221/B214807202501300056325.jpg)







