사건번호 2025 타경 13248
본건은 서울특별시 동대문구 전농동 690 래미안 크레시티 제202동 제11층 제1104호
소재하는 아파트경매 물건의 포스팅입니다.
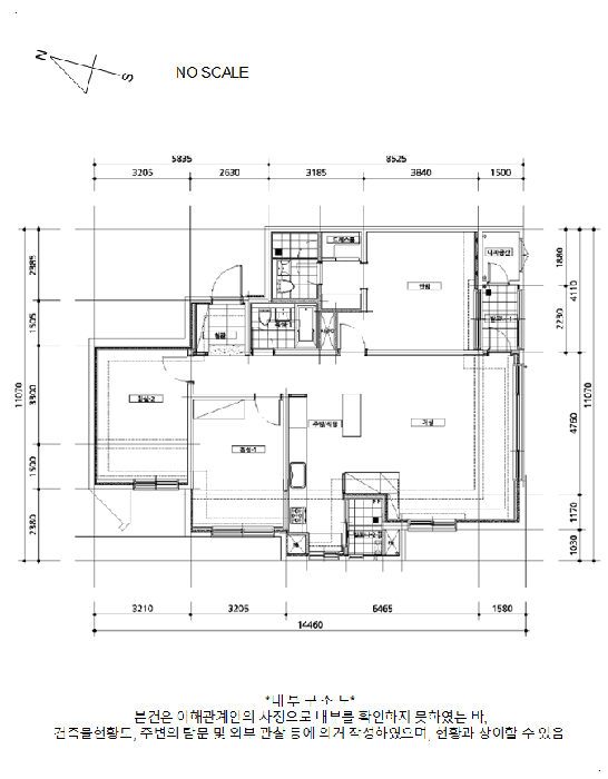
건물면적 [ 84.98㎡ (25.71평) ]
대지권 [ 47.28㎡ (14.3평) ]
시세를 반영한 감정가 1,620,000,000에서
1회 유찰되어 감정가 대비 80%
최저가 1,296,000,000부터
입찰에 참여할 수 있습니다.
입찰보증금은 최저가 10%
129,600,000이며,
서울북부지방법원 경매7계에서
2026-04-07(10:00)
진행 예정입니다.
| 소재지 | [지번] 서울특별시 동대문구 전농동 690 래미안 크레시티 제202동 제11층 제1104호 [도로명 주소] 서울특별시 동대문구 사가정로 65 래미안 크레시티 제202동 제11층 제1104호 |
||||
|---|---|---|---|---|---|
| 용도 | 아파트 | 채권자 | 노** | 감정가 | 1,620,000,000 |
| 건물면적 | 84.98㎡ (25.71평) | 채무자 | 변** | 최저가 | (80%) 1,296,000,000 |
| 대지권 | 47.28㎡ (14.3평) | 소유자 | 변** | 보증금 | (10%) 129,600,000 |
| 매각대상 | 경매종류 | 임의경매 | 사건접수일 | 2025-09-04 | |
| 최초경매일 | 2026-04-07 | 배당종기일 | 2025-12-05 | 경매개시일 | 2025-09-05 |
| 주의사항 | ☞ 여기 눌러 무료상담 받아보기 | ||||
기일내역
| 회차 | 매각기일 | 최저매각금액 | 결과 |
|---|---|---|---|
| 신건 | 2026-03-04 | 1,620,000,000 | 유찰 |
| 2차 | 2026-04-07 | 1,296,000,000 |
임차인현황
| 임차인 | 점유현황 | 전입/확정/배당 |
|---|---|---|
| 조사된 임차인 내역 없음 | ||











![건 물 개 황 도 [11층]](https://filelab.co.kr/auctionimg/2025/20251028/B000213202501300132481.jpg)
![건 물 개 황 도 [1104호]](https://filelab.co.kr/auctionimg/2025/20251028/B000213202501300132482.jpg)







