사건번호 2024 타경 91169
본건은 경기도 양주시 만송동 229-8 외 2필지
소재하는 노유자시설경매 물건의 포스팅입니다.
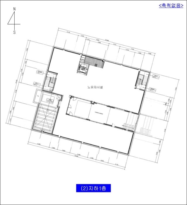
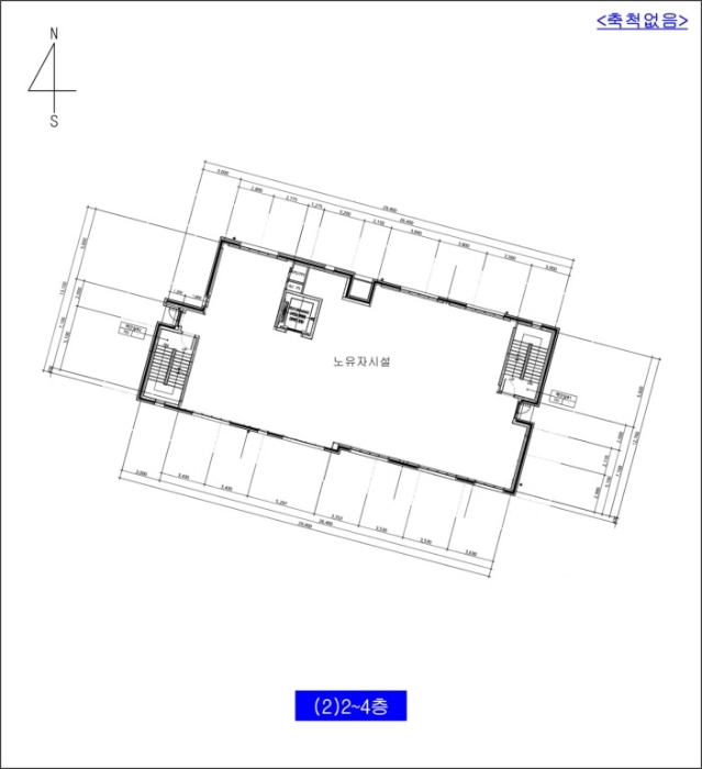
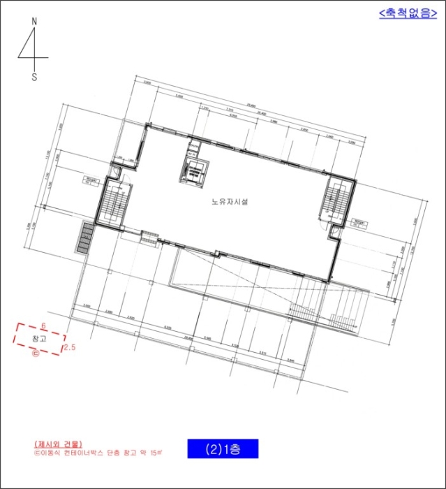
건물면적 [ 2030.14㎡ (614.11평) ]
토지면적 [ 전체:2245㎡ (679.11평)
매각지분:1851.92㎡ (560.2평) ]
시세를 반영한 감정가 5,132,600,880에서
4회 유찰되어 감정가 대비 34%
최저가 1,760,483,000부터
입찰에 참여할 수 있습니다.
입찰보증금은 최저가 10%
176,048,300이며,
의정부지방법원 경매4계에서
2026-03-19(10:30)
진행 예정입니다.
| 소재지 | [지번] 경기도 양주시 만송동 229-8 외 2필지 | ||||
|---|---|---|---|---|---|
| 용도 | 노유자시설 | 채권자 | 신**외1명 | 감정가 | 5,132,600,880 |
| 건물면적 | 2030.14㎡ (614.11평) | 채무자 | 김**외1명 | 최저가 | (34%) 1,760,483,000 |
| 토지면적 | 전체:2245㎡ (679.11평) 매각지분:1851.92㎡ (560.2평) |
소유자 | 김**외1명 | 보증금 | (10%) 176,048,300 |
| 매각대상 | 건물전부, 토지지분, 유치권 | 경매종류 | 강제경매 | 사건접수일 | 2024-11-22 |
| 최초경매일 | 2026-03-19 | 배당종기일 | 2025-03-03 | 경매개시일 | 2024-11-27 |
| 주의사항 | ☞ 여기 눌러 무료상담 받아보기 | ||||
기일내역
| 회차 | 매각기일 | 최저매각금액 | 결과 |
|---|---|---|---|
| 신건 | 2025-10-16 | 5,132,600,880 | 유찰 |
| 2차 | 2025-11-20 | 3,592,821,000 | 유찰 |
| 3차 | 2026-01-08 | 2,514,975,000 | 유찰 |
| 4차 | 2026-02-12 | 1,760,483,000 | 유찰 |
| 4차 | 2026-03-19 | 1,760,483,000 |
임차인현황
| 임차인 | 점유현황 | 전입/확정/배당 |
|---|---|---|
| 조사된 임차인 내역 없음 | ||







































