김포아파트경매 김포시 풍무동 766 풍무자이 제514동 제16층 제1604호 №2024 타경 50238

차별화된 5단계 맞춤형 경매 서비스 - 더블옥션
법원경매전문 (주)더블옥션은 보증보험 가입 및 법원 매수대리 등록업체로 안전하고 책임있는 컨설팅을 진행합니다. 등록번호(02-17-3)
사건번호 2024 타경 50238

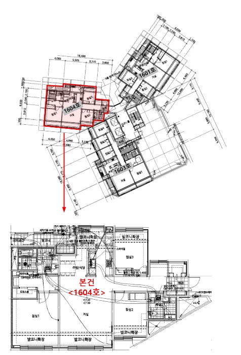
본건은 경기도 김포시 풍무동 766 풍무자이 제514동 제16층 제1604호
소재하는 아파트경매 물건의 포스팅입니다.

건물면적 [ 106.4㎡ (32.19평) ]
대지권 [ 55.47㎡ (16.78평) ]

시세를 반영한 감정가 545,000,000에서
1회 유찰되어 감정가 대비 70%
최저가 381,500,000부터
입찰에 참여할 수 있습니다.

입찰보증금은 최저가 10%
38,150,000이며,
부천지원 경매9계에서
2026-03-10(10:00)
진행 예정입니다.

소재지 [지번] 경기도 김포시 풍무동 766 풍무자이 제514동 제16층 제1604호
[도로명 주소] 경기도 김포시 풍무로96번길 100 풍무자이 제514동 제16층 제1604호
용도 아파트 채권자 이**외1명.. 감정가 545,000,000
건물면적 106.4㎡ (32.19평) 채무자 이** 최저가 (70%) 381,500,000
대지권 55.47㎡ (16.78평) 소유자 이** 보증금 (10%) 38,150,000
매각대상 공시가격3~4억 경매종류 임의경매 사건접수일 2024-09-20
최초경매일 2026-03-10 배당종기일 2024-12-18 경매개시일 2024-09-23
주의사항 ☞ 여기 눌러 무료상담 받아보기

기일내역

회차 매각기일 최저매각금액 결과
신건 2026-01-22 545,000,000 유찰
2차 2026-03-10 381,500,000
정확한 권리 분석, 꼼꼼한 현장 조사, 예상 낙찰가 제안, 대출 연계, 점유자 이전 - 더블옥션

임차인현황

임차인 점유현황 전입/확정/배당
조사된 임차인 내역 없음
더블옥션은 법원 등록 및 보증 보험 가입 업체로 안전하고 성공적인 당신의 비즈니스를 지원합니다. - 더블옥션
전경
도로명 표시
공동현관문
현관문
위 치 도
위 치 도
본건전경
본건전경
본건전경
본건전경
인근전경
부동산 경매 전문기업 - 더블옥션

Related Posts