고성시설경매 고성군 죽왕면 야촌리 1024-44 1동 №2025 타경 10314

차별화된 5단계 맞춤형 경매 서비스 - 더블옥션
법원경매전문 (주)더블옥션은 보증보험 가입 및 법원 매수대리 등록업체로 안전하고 책임있는 컨설팅을 진행합니다. 등록번호(02-17-3)
사건번호 2025 타경 10314

본건은 강원특별자치도 고성군 죽왕면 야촌리 1024-44 1동
소재하는 근린시설경매 물건의 포스팅입니다.

건물면적 [ 1315.51㎡ (397.94평) ]
토지면적 [ 4530㎡ (1370.32평) ]

시세를 반영한 감정가 2,441,530,400에서
1회 유찰되어 감정가 대비 70%
최저가 1,709,071,000부터
입찰에 참여할 수 있습니다.

입찰보증금은 최저가 10%
170,907,100이며,
속초지원 경매2계에서
2026-03-04(10:00)
진행 예정입니다.

소재지 [지번] 강원특별자치도 고성군 죽왕면 야촌리 1024-44 1동
[도로명 주소] 강원도 고성군 죽왕면 곡실평길 340 1동
용도 근린시설 채권자 ㈜** 감정가 2,441,530,400
건물면적 1315.51㎡ (397.94평) 채무자 ㈜** 최저가 (70%) 1,709,071,000
토지면적 4530㎡ (1370.32평) 소유자 ㈜** 보증금 (10%) 170,907,100
매각대상 경매종류 임의경매 사건접수일 2025-07-14
최초경매일 2026-03-04 배당종기일 2025-10-02 경매개시일 2025-07-15
주의사항 ☞ 여기 눌러 무료상담 받아보기

기일내역

회차 매각기일 최저매각금액 결과
신건 2026-02-04 2,441,530,400 유찰
2차 2026-03-04 1,709,071,000
정확한 권리 분석, 꼼꼼한 현장 조사, 예상 낙찰가 제안, 대출 연계, 점유자 이전 - 더블옥션

임차인현황

임차인 점유현황 전입/확정/배당
조사된 임차인 내역 없음
더블옥션은 법원 등록 및 보증 보험 가입 업체로 안전하고 성공적인 당신의 비즈니스를 지원합니다. - 더블옥션

본건 기호1(1동), 2(2동) 전경
본건 기호1 전경(1동 1층 내부)
본건 기호1,2 전경(1,2동 2층)
본건 기호1~4 전경
조경석, 조경수
본건 기호2 전경(2동 1층 내부)
본건 기호3 전경(3동 1층 내부)
조경석, 조경수
조경석, 조경수
본건 기호3 전경(3동), 제시외구조물(ㄱ)
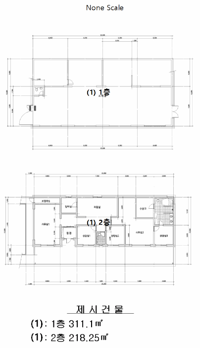
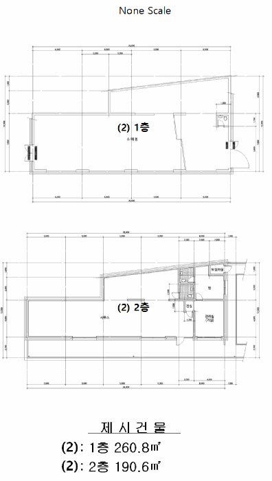
건 물 개 황 도
건 물 개 황 도
건 물 개 황 도
위 치 도
지 적 개 황 도
지 적 개 황 도
부동산 경매 전문기업 - 더블옥션

Related Posts