울주주택경매 울주군 범서읍 구영리 129-3 №2024 타경 7156

차별화된 5단계 맞춤형 경매 서비스 - 더블옥션
법원경매전문 (주)더블옥션은 보증보험 가입 및 법원 매수대리 등록업체로 안전하고 책임있는 컨설팅을 진행합니다. 등록번호(02-17-3)
사건번호 2024 타경 7156

본건은 울산광역시 울주군 범서읍 구영리 129-3
소재하는 근린주택경매 물건의 포스팅입니다.

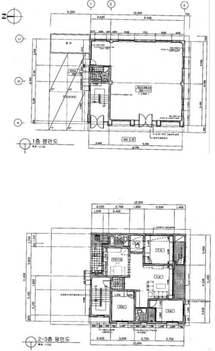
건물면적 [ 358.84㎡ (108.55평) ]
토지면적 [ 225㎡ (68.06평) ]

시세를 반영한 감정가 859,115,680에서
1회 유찰되어 감정가 대비 70%
최저가 601,381,000부터
입찰에 참여할 수 있습니다.

입찰보증금은 최저가 10%
60,138,100이며,
울산지방법원 경매6계에서
2026-03-04(10:00)
진행 예정입니다.

소재지 [지번] 울산광역시 울주군 범서읍 구영리 129-3
[도로명 주소] 울산광역시 울주군 범서읍 모두박길 5-6
용도 근린주택 채권자 울** 감정가 859,115,680
건물면적 358.84㎡ (108.55평) 채무자 김** 최저가 (70%) 601,381,000
토지면적 225㎡ (68.06평) 소유자 김** 보증금 (10%) 60,138,100
매각대상 공시가격2~3억 경매종류 임의경매 사건접수일 2024-08-26
최초경매일 2026-03-04 배당종기일 2024-11-28 경매개시일 2024-08-28
주의사항 ☞ 여기 눌러 무료상담 받아보기

기일내역

회차 매각기일 최저매각금액 결과
신건 2026-01-21 859,115,680 유찰
2차 2026-03-04 601,381,000
정확한 권리 분석, 꼼꼼한 현장 조사, 예상 낙찰가 제안, 대출 연계, 점유자 이전 - 더블옥션

임차인현황

임차인 점유현황 전입/확정/배당
i** 주거임차인 전입 : 2013-10-11 / 확정 : X / 배당 : X
i** 상가임차인
1층전부(129.42㎡)
확정 : X / 배당 : 2024-11-21
i** 주거임차인
건물의3층전부
전입 : 2014-01-22 / 확정 : 2024-11-04 / 배당 : 2024-11-11
i** 주거임차인 전입 : 2022-06-22 / 확정 : X / 배당 : X
더블옥션은 법원 등록 및 보증 보험 가입 업체로 안전하고 성공적인 당신의 비즈니스를 지원합니다. - 더블옥션





내 부 구 조 도
위 치 도
광 역 위 치 도
지 적 도
부동산 경매 전문기업 - 더블옥션

Related Posts