파주상가경매 파주시 목동동 949 엠디프라자 제7층 제701호외 2개호 №2025 타경 2411

차별화된 5단계 맞춤형 경매 서비스 - 더블옥션
법원경매전문 (주)더블옥션은 보증보험 가입 및 법원 매수대리 등록업체로 안전하고 책임있는 컨설팅을 진행합니다. 등록번호(02-17-3)
사건번호 2025 타경 2411

본건은 경기도 파주시 목동동 949 엠디프라자 제7층 제701호외 2개호
소재하는 근린상가경매 물건의 포스팅입니다.

건물면적 [ 1986.57㎡ (600.93평) ]
대지권 [ 402.83㎡ (121.86평) ]

시세를 반영한 감정가 6,093,000,000에서
2회 유찰되어 감정가 대비 49%
최저가 2,985,570,000부터
입찰에 참여할 수 있습니다.

입찰보증금은 최저가 10%
298,557,000이며,
고양지원 경매1계에서
2026-03-10(10:00)
진행 예정입니다.

소재지 [지번] 경기도 파주시 목동동 949 엠디프라자 제7층 제701호외 2개호
[도로명 주소] 경기도 파주시 청암로17번길 67 엠디프라자 제7층 제701호외 2개호
용도 근린상가 채권자 오**외1명 감정가 6,093,000,000
건물면적 1986.57㎡ (600.93평) 채무자 ㈜** 최저가 (49%) 2,985,570,000
대지권 402.83㎡ (121.86평) 소유자 ㈜** 보증금 (10%) 298,557,000
매각대상 경매종류 임의경매 사건접수일 2025-05-15
최초경매일 2026-03-10 배당종기일 2025-10-24 경매개시일 2025-05-16
주의사항 ☞ 여기 눌러 무료상담 받아보기

기일내역

회차 매각기일 최저매각금액 결과
신건 2025-12-16 6,093,000,000 유찰
2차 2026-01-27 4,265,100,000 유찰
3차 2026-03-10 2,985,570,000
정확한 권리 분석, 꼼꼼한 현장 조사, 예상 낙찰가 제안, 대출 연계, 점유자 이전 - 더블옥션

임차인현황

임차인 점유현황 전입/확정/배당
i** 상가임차인
7,8,9층701,801,901호
확정 : X / 배당 : X
더블옥션은 법원 등록 및 보증 보험 가입 업체로 안전하고 성공적인 당신의 비즈니스를 지원합니다. - 더블옥션
목록3.으로 가는 계단
목록3.내부(1)
목록3.내부(2)
목록3.내부(3)
목록3.내부(4)
목록3.내부(5)
목록3.내부(6)
목록3.내부(7)
목록3.내부(8)
목록2. 카운터
도로명주소
1동건물
공동출입문
목록2.입구
목록2. 내부(1)
목록2. 내부(2)
목록2. 내부(3)
목록2. 내부(4)
목록2. 내부(5)
목록2. 내부(6)
목록2. 내부(7)
목록2. 내부(8)
목록2. 내부(9)
목록2. 내부(10)
목록1.로 가는 계단
목록1.내부(1)
목록1.내부(2)
목록1.내부(3)
목록1.내부(4)
목록1.내부(5)
목록1.내부(6)
목록1.내부(7)
목록1.내부(8)
목록1.내부(9)
입구 앞 전경
주위전경
8층 공용부분 전경
7층전경
9층 전경
8층 전경
7층 전경
9층 전경
9층 전경
주위전경
본건전경
8층 전경
9층 공용부분 전경
7층 전경
8층 전경
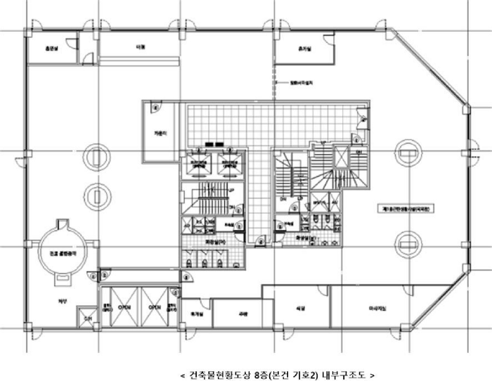
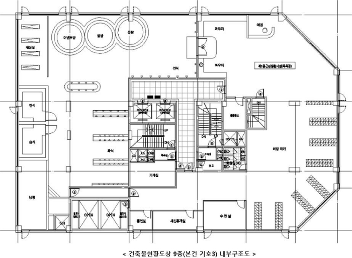
내 부 구 조 도
내 부 구 조 도
내 부 구 조 도
광 역 위 치 도
위 치 도
부동산 경매 전문기업 - 더블옥션

Related Posts