춘천숙박시설경매 춘천시 동면 만천리 326-33 1동 №2024 타경 3059

차별화된 5단계 맞춤형 경매 서비스 - 더블옥션
법원경매전문 (주)더블옥션은 보증보험 가입 및 법원 매수대리 등록업체로 안전하고 책임있는 컨설팅을 진행합니다. 등록번호(02-17-3)
사건번호 2024 타경 3059

본건은 강원특별자치도 춘천시 동면 만천리 326-33 1동
소재하는 숙박시설경매 물건의 포스팅입니다.

건물면적 [ 1964.37㎡ (594.22평) ]
토지면적 [ 3271㎡ (989.47평) ]

시세를 반영한 감정가 6,459,424,720에서
2회 유찰되어 감정가 대비 49%
최저가 3,165,118,000부터
입찰에 참여할 수 있습니다.

입찰보증금은 최저가 10%
316,511,800이며,
춘천지방법원 경매3계에서
2026-03-09(10:00)
진행 예정입니다.

소재지 [지번] 강원특별자치도 춘천시 동면 만천리 326-33 1동
[도로명 주소] 강원도 춘천시 동면 순환대로 1156-20 1동
용도 숙박시설 채권자 춘** 감정가 6,459,424,720
건물면적 1964.37㎡ (594.22평) 채무자 송** 최저가 (49%) 3,165,118,000
토지면적 3271㎡ (989.47평) 소유자 김**외1명 보증금 (10%) 316,511,800
매각대상 대항력있는임차인 경매종류 임의경매 사건접수일 2024-12-03
최초경매일 2026-03-09 배당종기일 2025-07-11 경매개시일 2024-12-03
주의사항 ☞ 여기 눌러 무료상담 받아보기

기일내역

회차 매각기일 최저매각금액 결과
2025-09-01 6,459,424,720 변경
신건 2025-12-22 6,459,424,720 유찰
2차 2026-02-02 4,521,597,000 유찰
3차 2026-03-09 3,165,118,000
정확한 권리 분석, 꼼꼼한 현장 조사, 예상 낙찰가 제안, 대출 연계, 점유자 이전 - 더블옥션

임차인현황

임차인 점유현황 전입/확정/배당
i** 상가임차인
사무실 지1층 우측부분2022.01.12.-2024.01.11.
확정 : X / 배당 : X
i** 상가임차인
점포 점유부분 없음.2023.04.01.-2025.03.31.
확정 : X / 배당 : X
i** 상가임차인
점포 2층2023.11.01.-2025.10.31.
확정 : X / 배당 : X
i** 상가임차인
사무실 지하1층, 3층2023.06.27.-2025.12.19.
확정 : X / 배당 : X
i** 주거임차인
영업소 신청부동산 전부2024.06.27.-2024.12.31.
전입 : 2024-07-02 / 확정 : X / 배당 : X
i** 상가임차인
사무실 지하1층, 1층2025.02.17.-2027.02.16.
확정 : X / 배당 : X
더블옥션은 법원 등록 및 보증 보험 가입 업체로 안전하고 성공적인 당신의 비즈니스를 지원합니다. - 더블옥션
[사진 1]
[사진 2]
[사진 3]
[사진 4]
[사진 5]
[사진 6]
[사진 7]
[사진 8]
[사진 9]
[사진 10]
[사진 11]
[사진 12]
[사진 13]
[사진 14]
[사진 15]
[사진 16]
[사진 17]
[사진 18]
[사진 19]
건 물 배 치 도
본건 기호 1
본건 기호 3
제시외건물 ㄴ)
제시외건물 ㅇ)
본건 기호 2
본건 기호 3
제시외건물 ㄷ)
제시외건물 ㅈ)
본건 기호 2
본건 기호 4
제시외건물 ㄹ)
이동이 용이한 텐트형 차양
본건 기호 2
본건 기호 4
제시외건물 ㅁ)
본건 기호 2 소재 분수대
주위환경
제시외건물 ㅂ)
본건 기호 2 소재 어닝
제시외건물 ㄱ)
제시외건물 ㅅ)
위 치 도
광 역 위 치 도
지 적 도
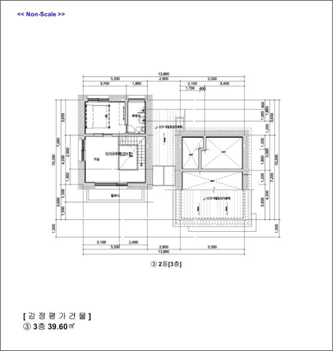
건물개황도 및 내부구조도
건물개황도 및 내부구조도
건물개황도 및 내부구조도
건물개황도 및 내부구조도
건물개황도 및 내부구조도
건물개황도 및 내부구조도
건물개황도 및 내부구조도
건물개황도 및 내부구조도
건물개황도 및 내부구조도
건물개황도 및 내부구조도
건물개황도 및 내부구조도
부동산 경매 전문기업 - 더블옥션

Related Posts