중의료시설경매 중구 대청동2가 7-2외 17필지 №2024 타경 5768

차별화된 5단계 맞춤형 경매 서비스 - 더블옥션
법원경매전문 (주)더블옥션은 보증보험 가입 및 법원 매수대리 등록업체로 안전하고 책임있는 컨설팅을 진행합니다. 등록번호(02-17-3)
사건번호 2024 타경 5768

본건은 부산광역시 중구 대청동2가 7-2외 17필지
소재하는 의료시설경매 물건의 포스팅입니다.

건물면적 [ 7568.33㎡ (2289.41평) ]
토지면적 [ 1483.4㎡ (448.73평) ]

시세를 반영한 감정가 22,358,177,000에서
2회 유찰되어 감정가 대비 49%
최저가 10,955,507,000부터
입찰에 참여할 수 있습니다.

입찰보증금은 최저가 10%
1,095,550,700이며,
부산지방법원 경매7계에서
2026-03-04(10:00)
진행 예정입니다.

소재지 [지번] 부산광역시 중구 대청동2가 7-2외 17필지
[도로명 주소] 부산광역시 중구 대청로 105외 17필지
용도 의료시설 채권자 ㈜** 감정가 22,358,177,000
건물면적 7568.33㎡ (2289.41평) 채무자 강** 최저가 (49%) 10,955,507,000
토지면적 1483.4㎡ (448.73평) 소유자 ㈜** 보증금 (10%) 1,095,550,700
매각대상 임금채권, 대항력있는임차인, 임차권등기 경매종류 임의경매 사건접수일 2024-11-01
최초경매일 2026-03-04 배당종기일 2025-01-24 경매개시일 2024-11-04
주의사항 ☞ 여기 눌러 무료상담 받아보기

기일내역

회차 매각기일 최저매각금액 결과
신건 2025-12-24 22,358,177,000 유찰
2차 2026-01-28 15,650,724,000 유찰
3차 2026-03-04 10,955,507,000
정확한 권리 분석, 꼼꼼한 현장 조사, 예상 낙찰가 제안, 대출 연계, 점유자 이전 - 더블옥션

임차인현황

임차인 점유현황 전입/확정/배당
i** 상가임차인
점포 3층 301호(3층 중 일부 332.0268㎡)신경과 의원2020.01.07.~2025.01.06.
전입 : 2002-10-17 / 확정 : 2024-11-25 / 배당 : 2025-01-16
i** 상가임차인
점포 3층 301호(3층 중 일부 332.0268㎡)신경과 의원2020.01.07.~2025.01.06.
전입 : 2002-10-17 / 확정 : 2024-11-25 / 배당 : 2025-01-16
i** 상가임차인
점포 미상미상
전입 : 2019-12-31 / 확정 : X / 배당 : X
i** 상가임차인
점포 1층 101호(1층 중 일부 75.256㎡)해님약국2020.03.05.~2025.03.04.
확정 : X / 배당 : 2025-01-10
i** 상가임차인
점포 1층 중 일부(65.9859㎡)24시무인편의점2020.02.24.~2025.02.23.
확정 : 2021-02-10 / 배당 : 2024-12-20
i** 상가임차인
점포 1층 102호(1층 중 일부 15.6754㎡)365의료기2020.01.20.~2025.01.20.
확정 : X / 배당 : 2025-01-09
i** 상가임차인
점포 1층 104호(1층 중 일부 68.3705㎡)이디야커피부산만세병원365점2020.02.26.~2025.02.28
확정 : 2020-04-13 / 배당 : 2024-12-27
i** 상가임차인
점포 3층 302호(3층 중 일부 36.72㎡)2021.01.27.~2025.01.19.
확정 : 2024-12-12 / 배당 : 2024-12-13
더블옥션은 법원 등록 및 보증 보험 가입 업체로 안전하고 성공적인 당신의 비즈니스를 지원합니다. - 더블옥션
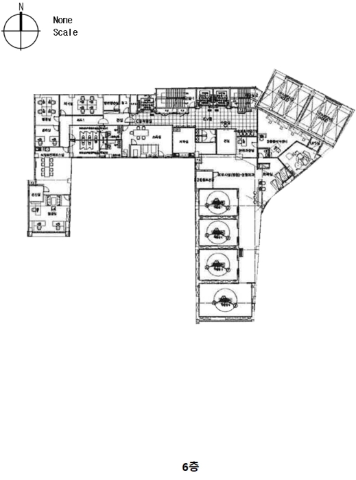
본건 만세365병원 6층 만세의학연구소
본건 만세365병원 7층 병동
본건 만세365병원 8층 병동
본건 만세365병원 9층 통합병동
본건 만세365병원 옥상정원
본건 만세365병원 2층 통합병동
본건 301호 이상익 신경과의원
본건 만세365병원 3층 종합건강증진센터
본건 만세365변원 4층 물리치료센터
본건 만세365변원 5층 접수대
본건 전경
본건 1층 해님약국
본건 1층 365의료기
본건 1층 24시무인편의점
본건 1층 이디야커피
본건 전경
본건 전경
본건 내부
본건 전경
본건 전경
본건 내부
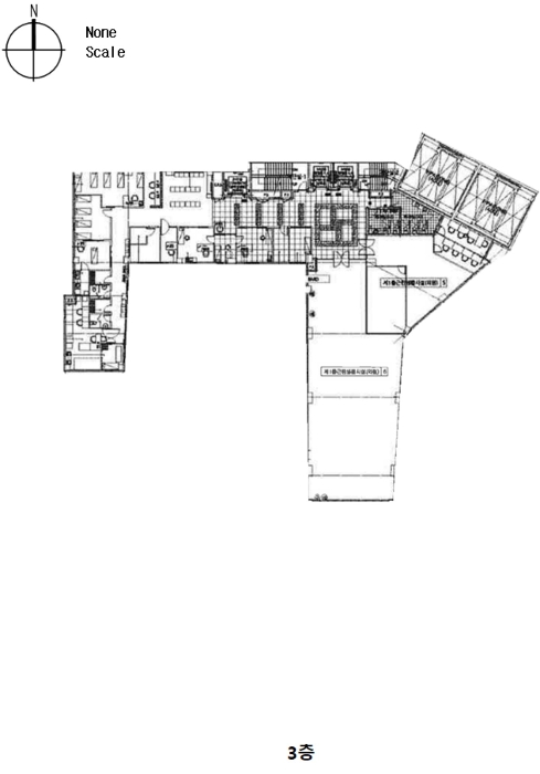
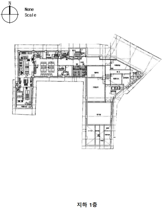
건 물 개 황 도
건 물 개 황 도
건 물 개 황 도
건 물 개 황 도
건 물 개 황 도
건 물 개 황 도
건 물 개 황 도
건 물 개 황 도
건 물 개 황 도
건 물 개 황 도
건 물 개 황 도
위 치 도
부동산 경매 전문기업 - 더블옥션

Related Posts