공주시설경매 공주시 신관동 670-3 1동 №2025 타경 22

차별화된 5단계 맞춤형 경매 서비스 - 더블옥션
법원경매전문 (주)더블옥션은 보증보험 가입 및 법원 매수대리 등록업체로 안전하고 책임있는 컨설팅을 진행합니다. 등록번호(02-17-3)
사건번호 2025 타경 22

본건은 충청남도 공주시 신관동 670-3 1동
소재하는 근린시설경매 물건의 포스팅입니다.

건물면적 [ 247.17㎡ (74.77평) ]
토지면적 [ 540.2㎡ (163.41평) ]

시세를 반영한 감정가 1,622,371,250에서
2회 유찰되어 감정가 대비 49%
최저가 794,962,000부터
입찰에 참여할 수 있습니다.

입찰보증금은 최저가 10%
79,496,200이며,
공주지원 경매1계에서
2026-02-24(10:00)
진행 예정입니다.

소재지 [지번] 충청남도 공주시 신관동 670-3 1동
[도로명 주소] 충청남도 공주시 한적2길 27-10(신관동) 1동
용도 근린시설 채권자 유** 감정가 1,622,371,250
건물면적 247.17㎡ (74.77평) 채무자 이** 최저가 (49%) 794,962,000
토지면적 540.2㎡ (163.41평) 소유자 이** 보증금 (10%) 79,496,200
매각대상 경매종류 임의경매 사건접수일 2025-01-02
최초경매일 2026-02-24 배당종기일 2025-03-25 경매개시일 2025-01-03
주의사항 ☞ 여기 눌러 무료상담 받아보기

기일내역

회차 매각기일 최저매각금액 결과
신건 2025-09-04 1,622,371,250 유찰
2차 2025-10-16 1,135,660,000 유찰
2025-11-27 794,962,000 변경
3차 2026-02-24 794,962,000
정확한 권리 분석, 꼼꼼한 현장 조사, 예상 낙찰가 제안, 대출 연계, 점유자 이전 - 더블옥션

임차인현황

임차인 점유현황 전입/확정/배당
i** 상가임차인
미상
확정 : X / 배당 : X
더블옥션은 법원 등록 및 보증 보험 가입 업체로 안전하고 성공적인 당신의 비즈니스를 지원합니다. - 더블옥션
본건
본건
제시외 ㉠
제시외 ㉡
제시외 ㉢
제시외 ㉢_내부
제시외 ㉣
권리신고안내문
본건 전경
냉동창고
차양막
외부 입간판 및 전경
본건 전경
냉동창고
비닐하우스
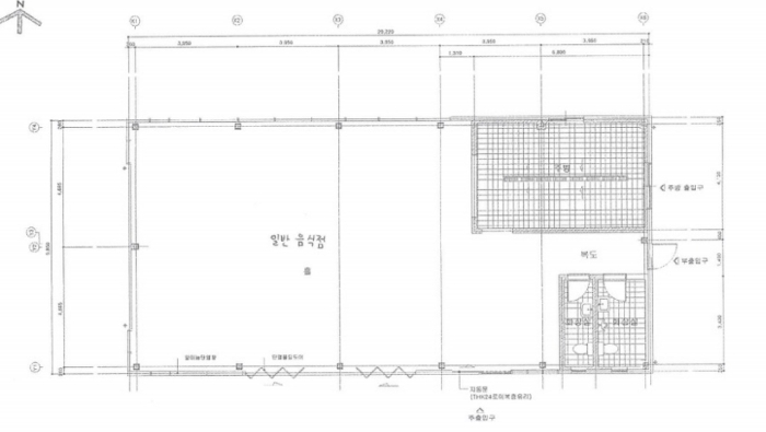
내 부 구 조 도
위 치 도
위 치 도
위 치 도
광 역 위 치 도
지 적 도
부동산 경매 전문기업 - 더블옥션

Related Posts