사건번호 2025 타경 40767
본건은 경기도 평택시 고덕면 동청리 39-1 제1동호
소재하는 근린주택경매 물건의 포스팅입니다.
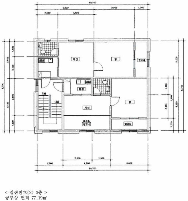
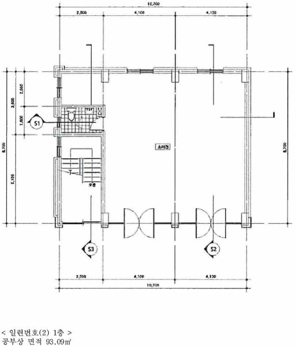
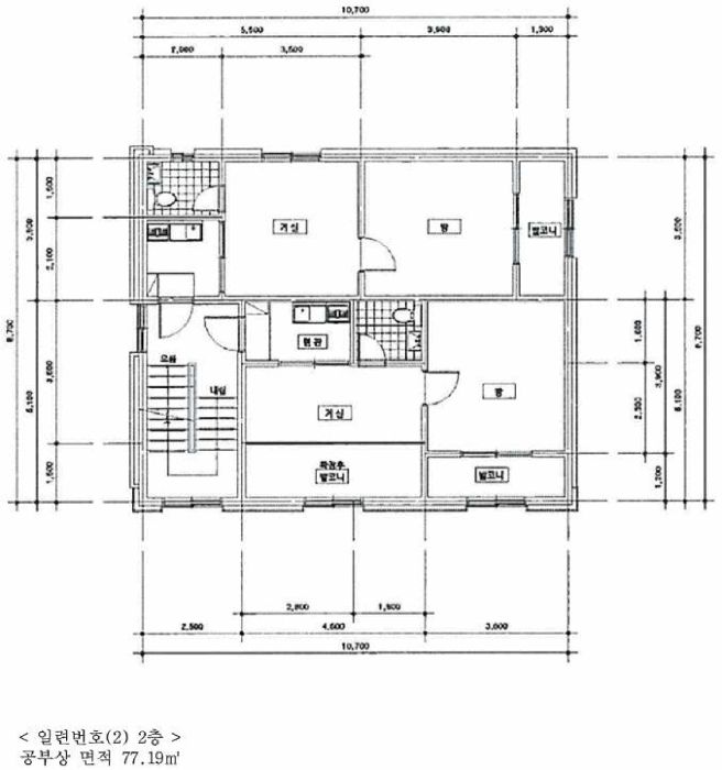
건물면적 [ 258.72㎡ (78.26평) ]
토지면적 [ 248㎡ (75.02평) ]
시세를 반영한 감정가 729,377,200에서
1회 유찰되어 감정가 대비 70%
최저가 510,564,040부터
입찰에 참여할 수 있습니다.
입찰보증금은 최저가 10%
51,056,404이며,
평택지원 경매5계에서
2026-02-24(10:00)
진행 예정입니다.
| 소재지 | [지번] 경기도 평택시 고덕면 동청리 39-1 제1동호 [도로명 주소] 경기도 평택시 고덕면 청원로 691 제1동호 |
||||
|---|---|---|---|---|---|
| 용도 | 근린주택 | 채권자 | 김** | 감정가 | 729,377,200 |
| 건물면적 | 258.72㎡ (78.26평) | 채무자 | 남** | 최저가 | (70%) 510,564,040 |
| 토지면적 | 248㎡ (75.02평) | 소유자 | 남** | 보증금 | (10%) 51,056,404 |
| 매각대상 | 공시가격2~3억, 임차권등기 | 경매종류 | 강제경매 | 사건접수일 | 2025-01-17 |
| 최초경매일 | 2026-02-24 | 배당종기일 | 2025-05-07 | 경매개시일 | 2025-01-20 |
| 주의사항 | ☞ 여기 눌러 무료상담 받아보기 | ||||
기일내역
| 회차 | 매각기일 | 최저매각금액 | 결과 |
|---|---|---|---|
| 신건 | 2026-01-20 | 729,377,200 | 유찰 |
| 2차 | 2026-02-24 | 510,564,040 |
임차인현황
| 임차인 | 점유현황 | 전입/확정/배당 |
|---|---|---|
| i** | 주거임차인 302호 |
전입 : 2016-06-09 / 확정 : X / 배당 : X |
| i** | 주거임차인 미상 |
전입 : 2017-05-25 / 확정 : X / 배당 : X |
| i** | 상가임차인 1층93제곱미터 |
확정 : X / 배당 : X |
| i** | 주거임차인 302호전부(방1칸) |
전입 : 2024-02-05 / 확정 : 2024-02-05 / 배당 : 2025-04-02 |
| i** | 주거임차인 202호전부(방2칸) |
전입 : X / 확정 : X / 배당 : 2025-05-02 |






























