사건번호 2025 타경 55103
본건은 경기도 수원시 권선구 세류동 675-4
소재하는 다가구(원룸등)경매 물건의 포스팅입니다.
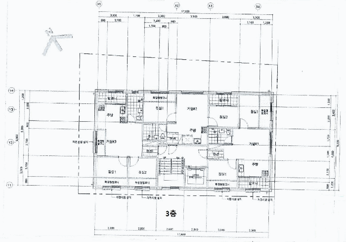
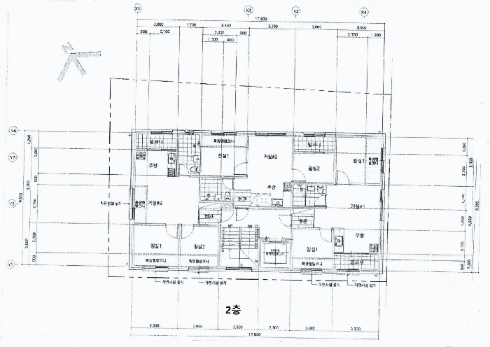
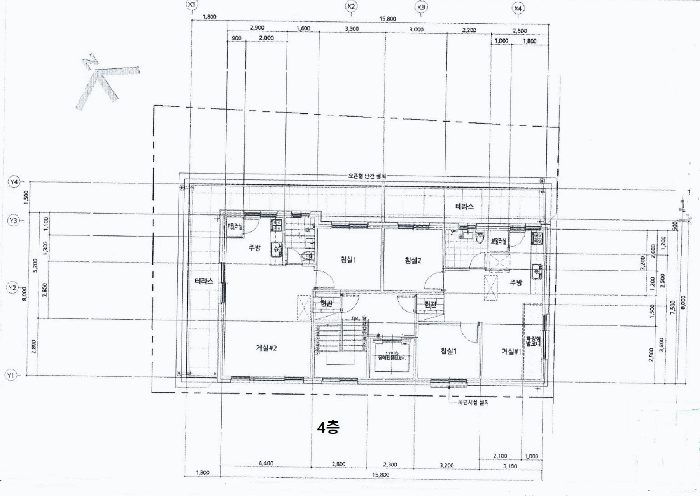
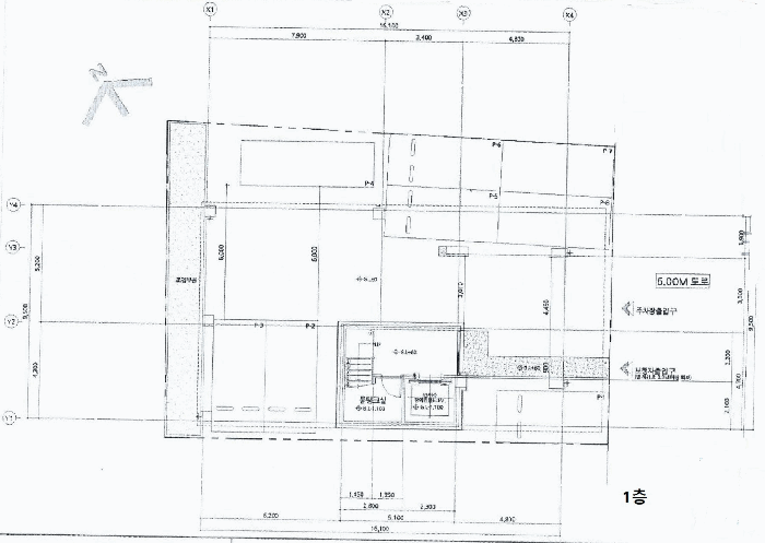
건물면적 [ 396㎡ (119.79평) ]
토지면적 [ 272㎡ (82.28평) ]
시세를 반영한 감정가 1,461,488,000에서
1회 유찰되어 감정가 대비 70%
최저가 1,023,041,600부터
입찰에 참여할 수 있습니다.
입찰보증금은 최저가 10%
102,304,160이며,
수원지방법원 경매8계에서
2026-02-23(10:00)
진행 예정입니다.
| 소재지 | [지번] 경기도 수원시 권선구 세류동 675-4 [도로명 주소] 경기도 수원시 권선구 새터로37번길 7-5 |
||||
|---|---|---|---|---|---|
| 용도 | 다가구(원룸등) | 채권자 | 여** | 감정가 | 1,461,488,000 |
| 건물면적 | 396㎡ (119.79평) | 채무자 | 배** | 최저가 | (70%) 1,023,041,600 |
| 토지면적 | 272㎡ (82.28평) | 소유자 | 배** | 보증금 | (10%) 102,304,160 |
| 매각대상 | 임차권등기 | 경매종류 | 강제경매 | 사건접수일 | 2025-03-14 |
| 최초경매일 | 2026-02-23 | 배당종기일 | 2025-05-29 | 경매개시일 | 2025-03-17 |
| 주의사항 | ☞ 여기 눌러 무료상담 받아보기 | ||||
기일내역
| 회차 | 매각기일 | 최저매각금액 | 결과 |
|---|---|---|---|
| 신건 | 2026-01-14 | 1,461,488,000 | 유찰 |
| 2차 | 2026-02-23 | 1,023,041,600 |
임차인현황
| 임차인 | 점유현황 | 전입/확정/배당 |
|---|---|---|
| i** | 주거임차인 201호 |
전입 : 2018-10-16 / 확정 : 2018-09-28 / 배당 : 2025-04-07 |
| i** | 주거임차인 401호 |
전입 : 2019-02-28 / 확정 : 2019-02-12 / 배당 : 2025-05-27 |
| i** | 주거임차인 202호 |
전입 : 2019-03-28 / 확정 : 2019-03-28 / 배당 : 2023-12-20 |
| i** | 주거임차인 303호 |
전입 : 2020-05-15 / 확정 : 2020-04-27 / 배당 : 2025-05-08 |
| i** | 주거임차인 301호 |
전입 : 2020-05-19 / 확정 : 2020-04-22 / 배당 : 2025-04-02 |
| i** | 주거임차인 | 전입 : 2020-05-19 / 확정 : X / 배당 : X |
| i** | 주거임차인 302호 |
전입 : 2022-07-22 / 확정 : 2022-06-30 / 배당 : 2025-04-15 |
| i** | 주거임차인 203호 |
전입 : 2022-08-26 / 확정 : 2022-07-07 / 배당 : 2025-04-22 |
| i** | 주거임차인 203호 |
전입 : 2023-10-10 / 확정 : 2023-09-06 / 배당 : 2025-05-27 |




























