광주다가구(원룸등)경매 광주시 역동 297-1 다올스토리 №2025 타경 52409

차별화된 5단계 맞춤형 경매 서비스 - 더블옥션
법원경매전문 (주)더블옥션은 보증보험 가입 및 법원 매수대리 등록업체로 안전하고 책임있는 컨설팅을 진행합니다. 등록번호(02-17-3)
사건번호 2025 타경 52409

본건은 경기도 광주시 역동 297-1 다올스토리
소재하는 다가구(원룸등)경매 물건의 포스팅입니다.

건물면적 [ 407.1㎡ (123.15평) ]
토지면적 [ 248.4㎡ (75.14평) ]

시세를 반영한 감정가 1,919,329,440에서
1회 유찰되어 감정가 대비 70%
최저가 1,343,531,000부터
입찰에 참여할 수 있습니다.

입찰보증금은 최저가 10%
134,353,100이며,
성남지원 경매7계에서
2026-02-09(10:00)
진행 예정입니다.

소재지 [지번] 경기도 광주시 역동 297-1 다올스토리
[도로명 주소] 경기도 광주시 광주역나길 20 다올스토리
용도 다가구(원룸등) 채권자 화** 감정가 1,919,329,440
건물면적 407.1㎡ (123.15평) 채무자 이** 최저가 (70%) 1,343,531,000
토지면적 248.4㎡ (75.14평) 소유자 이** 보증금 (10%) 134,353,100
매각대상 임차권등기 경매종류 임의경매 사건접수일 2025-06-17
최초경매일 2026-02-09 배당종기일 2025-08-25 경매개시일 2025-06-18
주의사항 ☞ 여기 눌러 무료상담 받아보기

기일내역

회차 매각기일 최저매각금액 결과
신건 2026-01-05 1,919,329,440 유찰
2차 2026-02-09 1,343,531,000
정확한 권리 분석, 꼼꼼한 현장 조사, 예상 낙찰가 제안, 대출 연계, 점유자 이전 - 더블옥션

임차인현황

임차인 점유현황 전입/확정/배당
i** 주거임차인
401호
전입 : 2023-09-15 / 확정 : 2023-10-16 / 배당 : 2025-07-01
i** 주거임차인
201호
전입 : 2024-07-31 / 확정 : X / 배당 : 2025-08-06
i** 주거임차인
302호
전입 : 2024-08-01 / 확정 : 2024-07-29 / 배당 : 2025-08-14
i** 주거임차인
301호
전입 : 2024-10-07 / 확정 : 2024-09-19 / 배당 : X
i** 주거임차인 전입 : 2024-10-07 / 확정 : X / 배당 : X
i** 주거임차인
202호
전입 : 2024-12-18 / 확정 : 2024-12-26 / 배당 : 2025-07-16
더블옥션은 법원 등록 및 보증 보험 가입 업체로 안전하고 성공적인 당신의 비즈니스를 지원합니다. - 더블옥션
도로명 주소
주택 외부 전경
주택 외부 전경
201호 출입문
202호 출입문
301호 출입문
302호 출입문
401호 출입문

본건 동측에서 본 원경
본건 서측 정면에서 본 전경
본건 북서측에서 본 젼경
표준지(역동 322-2)
본건 1층 현관입구
1층 주차장(1)
1층 주차장(2)
본건 남서측에서 본 전경
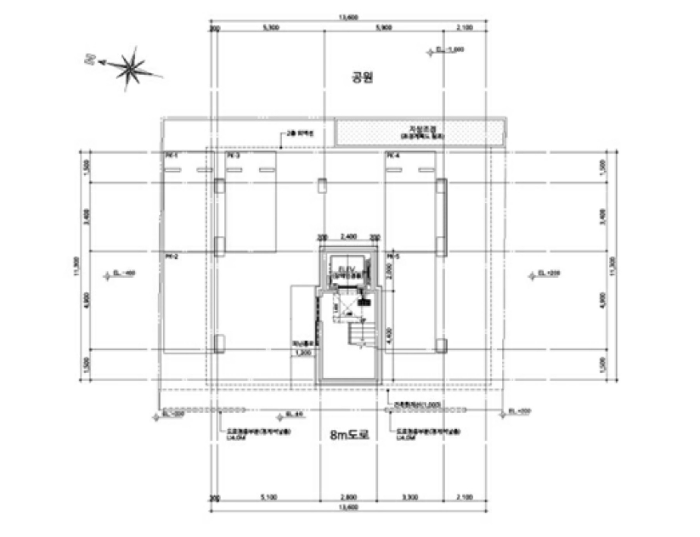
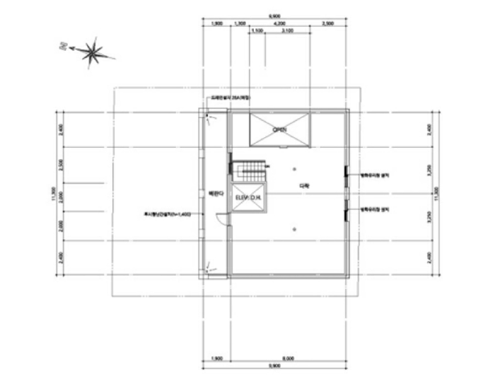
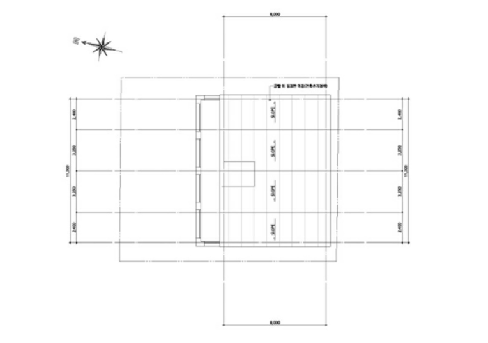
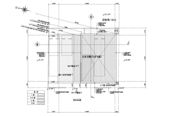
건 물 개 황 도(4층)
건 물 개 황 도(다락)
건 물 개 황 도
건 물 개 황 도(지붕)
건 물 개 황 도(2~3층)
건 물 개 황 도(1층)
광 역 위 치 도
사 례 위 치 도
항 공 위 치 도
지 적 도
부동산 경매 전문기업 - 더블옥션

Related Posts