횡성농가관련시설경매 횡성군 서원면 압곡리 286-1 외 1필지 №2024 타경 406524(2)

차별화된 5단계 맞춤형 경매 서비스 - 더블옥션
법원경매전문 (주)더블옥션은 보증보험 가입 및 법원 매수대리 등록업체로 안전하고 책임있는 컨설팅을 진행합니다. 등록번호(02-17-3)
사건번호 2024 타경 406524(2)

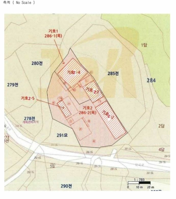
본건은 강원특별자치도 횡성군 서원면 압곡리 286-1 외 1필지
소재하는 농가관련시설경매 물건의 포스팅입니다.

건물면적 [ 1942.14㎡ (587.49평) ]
토지면적 [ 3365㎡ (1017.91평) ]

시세를 반영한 감정가 1,358,048,500에서
3회 유찰되어 감정가 대비 34%
최저가 465,811,000부터
입찰에 참여할 수 있습니다.

입찰보증금은 최저가 10%
46,581,100이며,
원주지원 경매3계에서
2026-02-02(10:00)
진행 예정입니다.

소재지 [지번] 강원특별자치도 횡성군 서원면 압곡리 286-1 외 1필지
[도로명 주소] 강원 횡성군 서원면 압곡로 53외 1필지
용도 농가관련시설 채권자 농** 감정가 1,358,048,500
건물면적 1942.14㎡ (587.49평) 채무자 박** 최저가 (34%) 465,811,000
토지면적 3365㎡ (1017.91평) 소유자 박** 보증금 (10%) 46,581,100
매각대상 경매종류 강제경매 사건접수일 2024-11-22
최초경매일 2026-02-02 배당종기일 2025-03-03 경매개시일 2024-11-29
주의사항 ☞ 여기 눌러 무료상담 받아보기

기일내역

회차 매각기일 최저매각금액 결과
신건 2025-10-27 1,358,048,500 유찰
2차 2025-11-24 950,634,000 유찰
3차 2025-12-22 665,444,000 유찰
4차 2026-02-02 465,811,000
정확한 권리 분석, 꼼꼼한 현장 조사, 예상 낙찰가 제안, 대출 연계, 점유자 이전 - 더블옥션

임차인현황

임차인 점유현황 전입/확정/배당
i** 주거임차인
미상
전입 : X / 확정 : X / 배당 : X
더블옥션은 법원 등록 및 보증 보험 가입 업체로 안전하고 성공적인 당신의 비즈니스를 지원합니다. - 더블옥션
목록2 건물 중
목록2 건물 중
기계기구 1-1
기계기구 1-4
목록2 건물 및
기계기구 1-5
기계기구 1-6 등
기계기구 1-7
목록2 건물 중
목록2 2동 및
목록2 3동 및
제시 외 ㄷ
제시 외 ㄹ
제시 외 ㅁ
기 타(농장안내
본건 전경1
기호2-5  제
제시외 ㅇ
제시외 ㅅ
Cage
장동선별기
본건 전경2
제시외 ㄷ ㅁ
제시외 ㅋ
적치물 등
계분기 및 환풍
Control 시설
기호 2-2
제시외 ㅈ ㅊ
제시외 ㅌ
직립식 6단 4열
사이로
기호2-4  제
제시외 ㅈ 내부
제시외 ㅅ 2층
직립식 6단 4열
급수 및 집란시
건 물 개 황 도
건 물 개 황 도
건 물 개 황 도
위 치 도
위 치 도
지 적 도(횡성
부동산 경매 전문기업 - 더블옥션

Related Posts