사건번호 2025 타경 10129
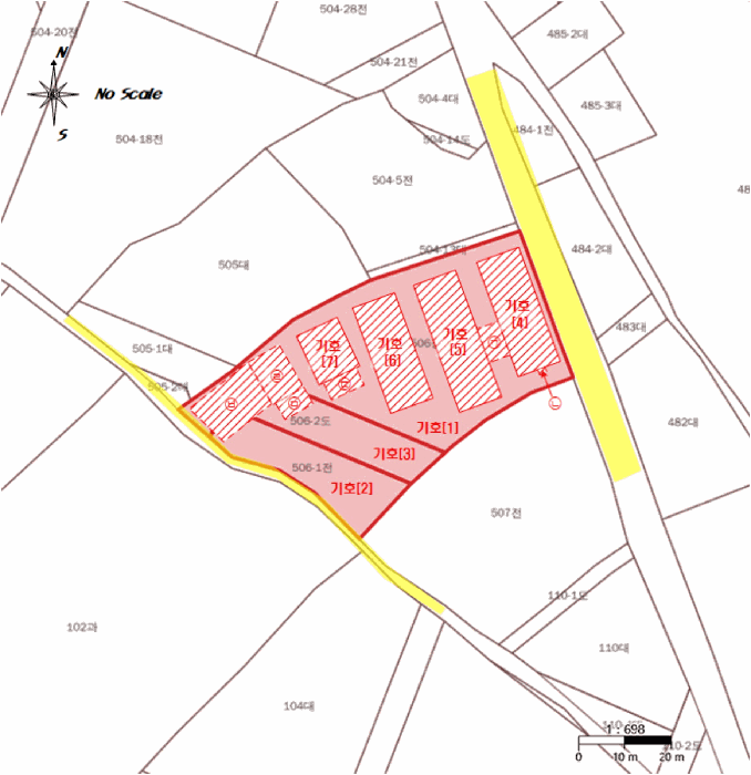
본건은 경상북도 영주시 풍기읍 동부리 506 외 2필지
소재하는 공장경매 물건의 포스팅입니다.
건물면적 [ 1292.44㎡ (390.96평) ]
토지면적 [ 2780㎡ (840.95평) ]
시세를 반영한 감정가 1,464,185,000에서
1회 유찰되어 감정가 대비 70%
최저가 1,024,930,000부터
입찰에 참여할 수 있습니다.
입찰보증금은 최저가 10%
102,493,000이며,
안동지원 경매1계에서
2026-02-23(10:00)
진행 예정입니다.
| 소재지 | [지번] 경상북도 영주시 풍기읍 동부리 506 외 2필지 [도로명 주소] 경북 영주시 풍기읍 기주로41번길 22외 2필지 |
||||
|---|---|---|---|---|---|
| 용도 | 공장 | 채권자 | 영** | 감정가 | 1,464,185,000 |
| 건물면적 | 1292.44㎡ (390.96평) | 채무자 | 신** | 최저가 | (70%) 1,024,930,000 |
| 토지면적 | 2780㎡ (840.95평) | 소유자 | 신** | 보증금 | (10%) 102,493,000 |
| 매각대상 | 경매종류 | 임의경매 | 사건접수일 | 2025-01-17 | |
| 최초경매일 | 2026-02-23 | 배당종기일 | 2025-05-02 | 경매개시일 | 2025-02-10 |
| 주의사항 | ☞ 여기 눌러 무료상담 받아보기 | ||||
기일내역
| 회차 | 매각기일 | 최저매각금액 | 결과 |
|---|---|---|---|
| 신건 | 2025-12-15 | 1,464,185,000 | 유찰 |
| 2026-01-19 | 1,024,930,000 | 변경 | |
| 2차 | 2026-02-23 | 1,024,930,000 |
임차인현황
| 임차인 | 점유현황 | 전입/확정/배당 |
|---|---|---|
| i** | 상가임차인 점포 기호1,4,5,6,72013.07부터 |
확정 : X / 배당 : X |
| i** | 공장임차인 공장 기호6번(주2호)2024.09.01.~2026.08.31 |
확정 : 2025-03-07 / 배당 : 2025-04-14 |
| i** | 상가임차인 점포 기호6번(3호)250.5㎡2024.08.10.~2025.08.09 |
확정 : X / 배당 : 2025-05-01 |











































