용인다가구(원룸등)경매 용인시 수지구 죽전동 879-7 №2024 타경 13691

차별화된 5단계 맞춤형 경매 서비스 - 더블옥션
법원경매전문 (주)더블옥션은 보증보험 가입 및 법원 매수대리 등록업체로 안전하고 책임있는 컨설팅을 진행합니다. 등록번호(02-17-3)
사건번호 2024 타경 13691

본건은 경기도 용인시 수지구 죽전동 879-7
소재하는 다가구(원룸등)경매 물건의 포스팅입니다.

건물면적 [ 386.56㎡ (116.93평) ]
토지면적 [ 361㎡ (109.2평) ]

시세를 반영한 감정가 1,882,897,600에서
2회 유찰되어 감정가 대비 49%
최저가 922,620,000부터
입찰에 참여할 수 있습니다.

입찰보증금은 최저가 10%
92,262,000이며,
수원지방법원 경매13계에서
2026-01-26(10:00)
진행 예정입니다.

소재지 [지번] 경기도 용인시 수지구 죽전동 879-7
[도로명 주소] 경기도 용인시 수지구 용구대로2772번길 3-6
용도 다가구(원룸등) 채권자 수** 감정가 1,882,897,600
건물면적 386.56㎡ (116.93평) 채무자 ㈜** 최저가 (49%) 922,620,000
토지면적 361㎡ (109.2평) 소유자 한** 보증금 (10%) 92,262,000
매각대상 경매종류 임의경매 사건접수일 2024-12-16
최초경매일 2026-01-26 배당종기일 2025-09-26 경매개시일 2024-12-17
주의사항 ☞ 여기 눌러 무료상담 받아보기

기일내역

회차 매각기일 최저매각금액 결과
신건 2025-11-17 1,882,897,600 유찰
2차 2025-12-17 1,318,028,000 유찰
3차 2026-01-26 922,620,000
정확한 권리 분석, 꼼꼼한 현장 조사, 예상 낙찰가 제안, 대출 연계, 점유자 이전 - 더블옥션

임차인현황

임차인 점유현황 전입/확정/배당
i** 주거임차인
102호
전입 : 2019-10-11 / 확정 : X / 배당 : X
i** 주거임차인 전입 : 2021-07-08 / 확정 : X / 배당 : X
i** 주거임차인
201호
전입 : 2023-08-28 / 확정 : X / 배당 : X
i** 주거임차인 전입 : 2023-09-19 / 확정 : X / 배당 : X
i** 주거임차인 전입 : 2024-12-12 / 확정 : X / 배당 : X
더블옥션은 법원 등록 및 보증 보험 가입 업체로 안전하고 성공적인 당신의 비즈니스를 지원합니다. - 더블옥션
도로명 주소
외관
외관
외관
101호 호실 표시
101호 호실 입구
102호 호실 표시
102호 호실 입구
2층으로 출입하는 출입구
본건 전경
주위환경(1)
주위환경(2)
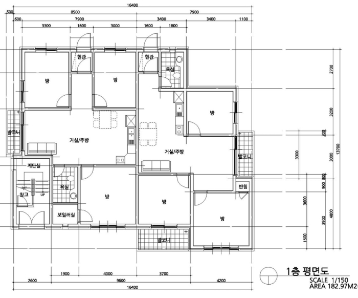
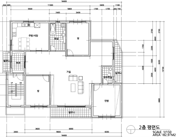
내 부 구 조 도
내 부 구 조 도
내 부 구 조 도
지 적 및 건 물 개 황 도
위 치 도
광 역 위 치 도
부동산 경매 전문기업 - 더블옥션

Related Posts