사건번호 2024 타경 54762
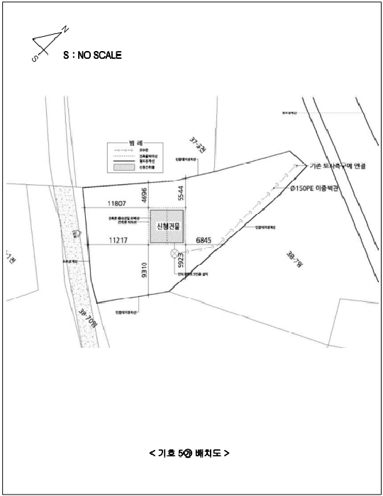
본건은 전라남도 무안군 삼향읍 남악리 38-4외 12필지
소재하는 주택경매 물건의 포스팅입니다.
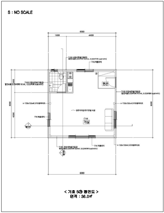
건물면적 [ 36㎡ (10.89평) ]
토지면적 [ 7519.3㎡ (2274.58평) ]
시세를 반영한 감정가 1,214,932,500에서
2회 유찰되어 감정가 대비 56%
최저가 680,362,000부터
입찰에 참여할 수 있습니다.
입찰보증금은 최저가 10%
68,036,200이며,
목포지원 경매2계에서
2026-01-26(10:00)
진행 예정입니다.
| 소재지 | [지번] 전라남도 무안군 삼향읍 남악리 38-4외 12필지 [도로명 주소] 전라남도 무안군 삼향읍 오룡동길 75-14외 12필지 |
||||
|---|---|---|---|---|---|
| 용도 | 주택 | 채권자 | 장**외1명 | 감정가 | 1,214,932,500 |
| 건물면적 | 36㎡ (10.89평) | 채무자 | 권** | 최저가 | (56%) 680,362,000 |
| 토지면적 | 7519.3㎡ (2274.58평) | 소유자 | 권** | 보증금 | (10%) 68,036,200 |
| 매각대상 | 맹지 | 경매종류 | 임의경매 | 사건접수일 | 2024-07-22 |
| 최초경매일 | 2026-01-26 | 배당종기일 | 2025-10-10 | 경매개시일 | 2024-07-23 |
| 주의사항 | ☞ 여기 눌러 무료상담 받아보기 | ||||
기일내역
| 회차 | 매각기일 | 최저매각금액 | 결과 |
|---|---|---|---|
| 신건 | 2025-11-03 | 1,214,932,500 | 유찰 |
| 2차 | 2025-12-15 | 850,453,000 | 유찰 |
| 3차 | 2026-01-26 | 680,362,000 |
임차인현황
| 임차인 | 점유현황 | 전입/확정/배당 |
|---|---|---|
| i** | 주거임차인 목록5.중미상 |
전입 : 2021-02-18 / 확정 : X / 배당 : X |












































