서아파트형공장경매 서구 오류동 1610-1 인천표면처리센터공장동 제4층 제402호 №2024 타경 14628

차별화된 5단계 맞춤형 경매 서비스 - 더블옥션
법원경매전문 (주)더블옥션은 보증보험 가입 및 법원 매수대리 등록업체로 안전하고 책임있는 컨설팅을 진행합니다. 등록번호(02-17-3)
사건번호 2024 타경 14628

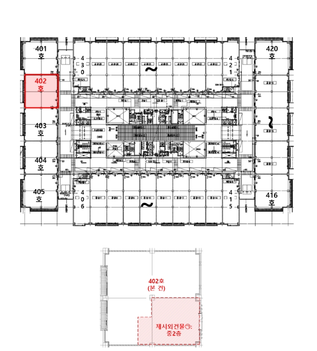
본건은 인천광역시 서구 오류동 1610-1 인천표면처리센터공장동 제4층 제402호
소재하는 아파트형공장경매 물건의 포스팅입니다.

건물면적 [ 423.9㎡ (128.23평) ]
대지권 [ 105.51㎡ (31.92평) ]

시세를 반영한 감정가 1,432,860,000에서
3회 유찰되어 감정가 대비 34%
최저가 491,471,000부터
입찰에 참여할 수 있습니다.

입찰보증금은 최저가 10%
49,147,100이며,
인천지방법원 경매11계에서
2026-01-29(10:00)
진행 예정입니다.

소재지 [지번] 인천광역시 서구 오류동 1610-1 인천표면처리센터공장동 제4층 제402호
[도로명 주소] 인천광역시 서구 가람로 14 인천표면처리센터공장동 제4층 제402호
용도 아파트형공장 채권자 더** 감정가 1,432,860,000
건물면적 423.9㎡ (128.23평) 채무자 박** 최저가 (34%) 491,471,000
대지권 105.51㎡ (31.92평) 소유자 박** 보증금 (10%) 49,147,100
매각대상 경매종류 임의경매 사건접수일 2024-10-30
최초경매일 2026-01-29 배당종기일 2025-02-18 경매개시일 2024-11-12
주의사항 ☞ 여기 눌러 무료상담 받아보기

기일내역

회차 매각기일 최저매각금액 결과
신건 2025-09-29 1,432,860,000 유찰
2차 2025-11-14 1,003,002,000 유찰
3차 2025-12-16 702,101,000 유찰
4차 2026-01-29 491,471,000
정확한 권리 분석, 꼼꼼한 현장 조사, 예상 낙찰가 제안, 대출 연계, 점유자 이전 - 더블옥션

임차인현황

임차인 점유현황 전입/확정/배당
i** 공장임차인 확정 : X / 배당 : X
더블옥션은 법원 등록 및 보증 보험 가입 업체로 안전하고 성공적인 당신의 비즈니스를 지원합니다. - 더블옥션
공동 출입구
건물 전경
건물 전경
우편함
4층 상호안내
공장 내부모습
공장 내부모습
공장  출입구
본건전경
기계기구1(도금 및 후처리장치 등)
기계기구3(정류기, 여과기, 탈수기 등)
기계기구5(호이스트크레인 등)
인근전경
본건전경
기계기구2(도금라인, 호이스트크레인, 로터리 등)
기계기구4(콘트롤판넬 등)
제시외건물㉠(중2층)
위 치 도
호 별 배 치 도
광 역 위 치 도
부동산 경매 전문기업 - 더블옥션

Related Posts