사건번호 2024 타경 85083(1)
본건은 경기도 가평군 조종면 신하리 102-1외 7필지
소재하는 주택경매 물건의 포스팅입니다.
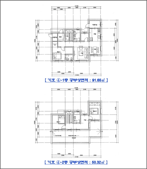
건물면적 [ 759.59㎡ (229.77평) ]
토지면적 [ 전체:3032㎡ (917.18평)
매각지분:2929.1㎡ (886.05평) ]
시세를 반영한 감정가 2,183,453,400에서
1회 유찰되어 감정가 대비 70%
최저가 1,528,417,000부터
입찰에 참여할 수 있습니다.
입찰보증금은 최저가 10%
152,841,700이며,
남양주지원 경매2계에서
2026-01-08(10:30)
진행 예정입니다.
| 소재지 | [지번] 경기도 가평군 조종면 신하리 102-1외 7필지 [도로명 주소] 경기도 가평군 조종면 연인산로150번길 62-6외 7필지 |
||||
|---|---|---|---|---|---|
| 용도 | 주택 | 채권자 | 새** | 감정가 | 2,183,453,400 |
| 건물면적 | 759.59㎡ (229.77평) | 채무자 | 김** | 최저가 | (70%) 1,528,417,000 |
| 토지면적 | 전체:3032㎡ (917.18평) 매각지분:2929.1㎡ (886.05평) |
소유자 | 김** | 보증금 | (10%) 152,841,700 |
| 매각대상 | 건물전부, 토지지분, 공시가격1~2억 | 경매종류 | 임의경매 | 사건접수일 | 2024-10-30 |
| 최초경매일 | 2026-01-08 | 배당종기일 | 2025-01-20 | 경매개시일 | 2024-10-31 |
| 주의사항 | ☞ 여기 눌러 무료상담 받아보기 | ||||
기일내역
| 회차 | 매각기일 | 최저매각금액 | 결과 |
|---|---|---|---|
| 신건 | 2025-12-04 | 2,183,453,400 | 유찰 |
| 2차 | 2026-01-08 | 1,528,417,000 |
임차인현황
| 임차인 | 점유현황 | 전입/확정/배당 |
|---|---|---|
| i** | 주거임차인 목록8.전부 |
전입 : 2023-12-14 / 확정 : X / 배당 : 2025-01-20 |
| i** | 주거임차인 목록10.전부 |
전입 : 2024-08-26 / 확정 : 2024-08-26 / 배당 : 2024-12-24 |
| i** | 주거임차인 목록2.전부 |
전입 : 2024-10-14 / 확정 : 2024-10-14 / 배당 : 2024-12-13 |

















































