사건번호 2025 타경 30002
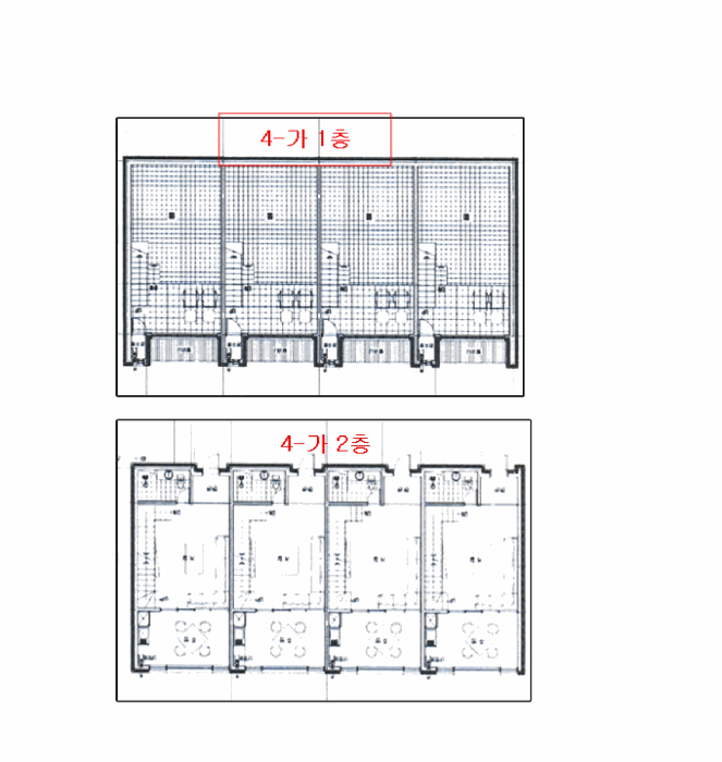
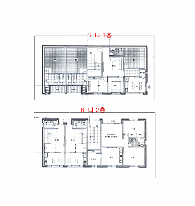
본건은 전북특별자치도 무주군 무풍면 삼거리 259-2 1동외 2필지
소재하는 숙박시설경매 물건의 포스팅입니다.
건물면적 [ 1751.36㎡ (529.78평) ]
토지면적 [ 2016㎡ (609.84평) ]
시세를 반영한 감정가 4,118,639,200에서
2회 유찰되어 감정가 대비 49%
최저가 2,018,133,000부터
입찰에 참여할 수 있습니다.
입찰보증금은 최저가 10%
201,813,300이며,
전주지방법원 경매1계에서
2026-01-05(10:00)
진행 예정입니다.
| 소재지 | [지번] 전북특별자치도 무주군 무풍면 삼거리 259-2 1동외 2필지 [도로명 주소] 전북특별자치도 무주군 무풍면 구천동로 435 1동외 2필지 |
||||
|---|---|---|---|---|---|
| 용도 | 숙박시설 | 채권자 | 신** | 감정가 | 4,118,639,200 |
| 건물면적 | 1751.36㎡ (529.78평) | 채무자 | 나** | 최저가 | (49%) 2,018,133,000 |
| 토지면적 | 2016㎡ (609.84평) | 소유자 | 나** | 보증금 | (10%) 201,813,300 |
| 매각대상 | 유치권 | 경매종류 | 임의경매 | 사건접수일 | 2025-01-02 |
| 최초경매일 | 2026-01-05 | 배당종기일 | 2025-06-30 | 경매개시일 | 2025-03-26 |
| 주의사항 | ☞ 여기 눌러 무료상담 받아보기 | ||||
기일내역
| 회차 | 매각기일 | 최저매각금액 | 결과 |
|---|---|---|---|
| 신건 | 2025-08-18 | 4,118,639,200 | 유찰 |
| 2차 | 2025-09-29 | 2,883,047,000 | 유찰 |
| 2025-11-17 | 2,018,133,000 | 변경 | |
| 3차 | 2026-01-05 | 2,018,133,000 |
임차인현황
| 임차인 | 점유현황 | 전입/확정/배당 |
|---|---|---|
| i** | 주거임차인 목록5. 건물 |
전입 : X / 확정 : X / 배당 : X |


























































































