사건번호 2024 타경 2902(3)
본건은 충청북도 충주시 중앙탑면 루암리 192-8
소재하는 주택경매 물건의 포스팅입니다.
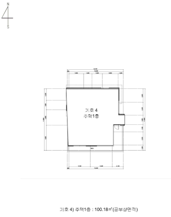
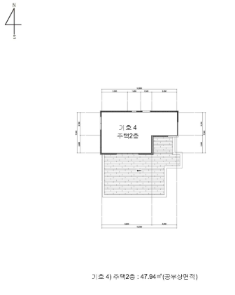
건물면적 [ 148.12㎡ (44.81평) ]
토지면적 [ 668㎡ (202.07평) ]
시세를 반영한 감정가 472,889,440에서
1회 유찰되어 감정가 대비 80%
최저가 378,312,000부터
입찰에 참여할 수 있습니다.
입찰보증금은 최저가 10%
37,831,200이며,
충주지원 경매3계에서
2026-01-05(10:00)
진행 예정입니다.
| 소재지 | [지번] 충청북도 충주시 중앙탑면 루암리 192-8 [도로명 주소] 충청북도 충주시 중앙탑면 루암신촌2길 16-2 |
||||
|---|---|---|---|---|---|
| 용도 | 주택 | 채권자 | 남** | 감정가 | 472,889,440 |
| 건물면적 | 148.12㎡ (44.81평) | 채무자 | 김** | 최저가 | (80%) 378,312,000 |
| 토지면적 | 668㎡ (202.07평) | 소유자 | 김** | 보증금 | (10%) 37,831,200 |
| 매각대상 | 공시가격1~2억 | 경매종류 | 강제경매 | 사건접수일 | 2024-09-13 |
| 최초경매일 | 2026-01-05 | 배당종기일 | (-일) | 경매개시일 | 2024-09-20 |
| 주의사항 | ☞ 여기 눌러 무료상담 받아보기 | ||||
기일내역
| 회차 | 매각기일 | 최저매각금액 | 결과 |
|---|---|---|---|
| 신건 | 2025-11-24 | 472,889,440 | 유찰 |
| 2차 | 2026-01-05 | 378,312,000 |
임차인현황
| 임차인 | 점유현황 | 전입/확정/배당 |
|---|---|---|
| i** | 주거임차인 | 전입 : 2022-07-01 / 확정 : X / 배당 : X |




















