춘천공장경매 춘천시 동산면 군자리 1391 주건축물제가동 №2025 타경 590

차별화된 5단계 맞춤형 경매 서비스 - 더블옥션
법원경매전문 (주)더블옥션은 보증보험 가입 및 법원 매수대리 등록업체로 안전하고 책임있는 컨설팅을 진행합니다. 등록번호(02-17-3)
사건번호 2025 타경 590

본건은 강원특별자치도 춘천시 동산면 군자리 1391 주건축물제가동
소재하는 공장경매 물건의 포스팅입니다.

건물면적 [ 2008.1㎡ (607.45평) ]
토지면적 [ 8265.9㎡ (2500.42평) ]

시세를 반영한 감정가 5,835,676,300에서
1회 유찰되어 감정가 대비 70%
최저가 4,084,973,000부터
입찰에 참여할 수 있습니다.

입찰보증금은 최저가 10%
408,497,300이며,
춘천지방법원 경매1계에서
2026-01-12(10:00)
진행 예정입니다.

소재지 [지번] 강원특별자치도 춘천시 동산면 군자리 1391 주건축물제가동
[도로명 주소] 강원도 춘천시 동산면 종자리로 33-61 주건축물제가동
용도 공장 채권자 ㈜** 감정가 5,835,676,300
건물면적 2008.1㎡ (607.45평) 채무자 ㈜** 최저가 (70%) 4,084,973,000
토지면적 8265.9㎡ (2500.42평) 소유자 ㈜** 보증금 (10%) 408,497,300
매각대상 경매종류 임의경매 사건접수일 2025-03-25
최초경매일 2026-01-12 배당종기일 2025-06-30 경매개시일 2025-03-26
주의사항 ☞ 여기 눌러 무료상담 받아보기

기일내역

회차 매각기일 최저매각금액 결과
신건 2025-12-01 5,835,676,300 유찰
2차 2026-01-12 4,084,973,000
정확한 권리 분석, 꼼꼼한 현장 조사, 예상 낙찰가 제안, 대출 연계, 점유자 이전 - 더블옥션

임차인현황

임차인 점유현황 전입/확정/배당
i** 상가임차인
가동동2층
확정 : X / 배당 : X
더블옥션은 법원 등록 및 보증 보험 가입 업체로 안전하고 성공적인 당신의 비즈니스를 지원합니다. - 더블옥션
기계기구 목록1,2번 전경(측면1)
영구형 앵커 생산라인, 제거형 앵커 생산라인
기계기구 목록1,2번 전경(측면2)
영구형 앵커 생산라인, 제거형 앵커 생산라인
제시부동산 목록1-3번 전경1
제시부동산 목록1-3번 전경2
제시부동산 목록2번
제시부동산 목록3번
기계기구(공작물) 1번 
탭핑머신
기계기구(공작물) 2번 
CO2용접기
기계기구 목록1번 
영구형 앵커 생산라인
기계기구 목록2번 
제거형 앵커 생산라인
사진1
사진2
기계기구 목록1,2번 전경
영구형 앵커 생산라인, 제거형 앵커 생산라인
기호1~3
기호2 내부
기호3
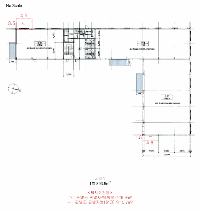
제시외ㄱ
제시외 컨테이너
기계기구3
기계기구3
기계기구4
기계기구4
기계기구1
기계기구1
기계기구2
기호2
기호2 내부
기호3 내부
제시외ㄴ
제시외 컨테이너 및 적치물
기계기구3
기계기구3
기계기구4
기계기구4
기계기구1
기계기구2
기계기구2
내 부 구 조 도
내 부 구 조 도
내 부 구 조 도
내 부 구 조 도
위 치 도
광 역 위 치 도
지 적 도
부동산 경매 전문기업 - 더블옥션

Related Posts