사건번호 2024 타경 35018
본건은 충청북도 충주시 충인동 221 외 6필지
소재하는 의료시설경매 물건의 포스팅입니다.
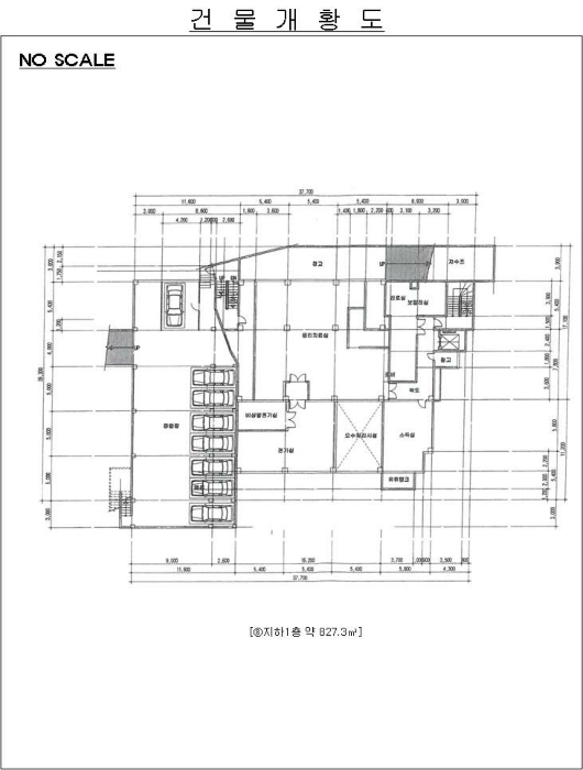
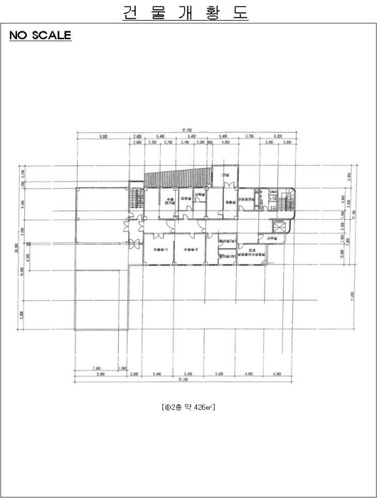
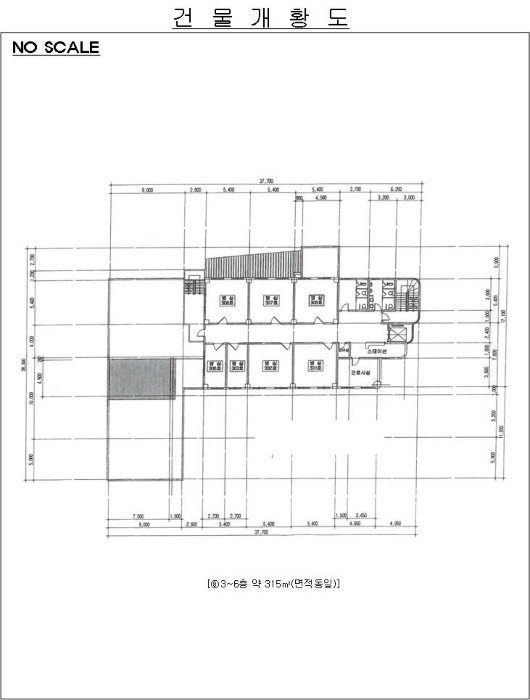
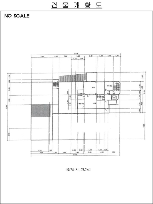
건물면적 [ 3439.94㎡ (1040.58평) ]
토지면적 [ 1392㎡ (421.08평) ]
시세를 반영한 감정가 3,366,512,200에서
3회 유찰되어 감정가 대비 51%
최저가 1,723,654,000부터
입찰에 참여할 수 있습니다.
입찰보증금은 최저가 10%
172,365,400이며,
충주지원 경매3계에서
2026-01-05(10:00)
진행 예정입니다.
| 소재지 | [지번] 충청북도 충주시 충인동 221 외 6필지 [도로명 주소] 충청북도 충주시 충인1길 60 외 6필지 |
||||
|---|---|---|---|---|---|
| 용도 | 의료시설 | 채권자 | 중** | 감정가 | 3,366,512,200 |
| 건물면적 | 3439.94㎡ (1040.58평) | 채무자 | 김** | 최저가 | (51%) 1,723,654,000 |
| 토지면적 | 1392㎡ (421.08평) | 소유자 | 의** | 보증금 | (10%) 172,365,400 |
| 매각대상 | 임금채권 | 경매종류 | 임의경매 | 사건접수일 | 2024-09-30 |
| 최초경매일 | 2026-01-05 | 배당종기일 | 2025-01-02 | 경매개시일 | 2024-10-02 |
| 주의사항 | ☞ 여기 눌러 무료상담 받아보기 | ||||
기일내역
| 회차 | 매각기일 | 최저매각금액 | 결과 |
|---|---|---|---|
| 신건 | 2025-09-08 | 3,366,512,200 | 유찰 |
| 2차 | 2025-10-20 | 2,693,210,000 | 유찰 |
| 3차 | 2025-11-24 | 2,154,568,000 | 유찰 |
| 4차 | 2026-01-05 | 1,723,654,000 |
임차인현황
| 임차인 | 점유현황 | 전입/확정/배당 |
|---|---|---|
| i** | 상가임차인 미상 |
확정 : X / 배당 : X |










































