사건번호 2024 타경 61206
본건은 서울특별시 강동구 천호동 538-7 한빛주택
소재하는 근린주택경매 물건의 포스팅입니다.
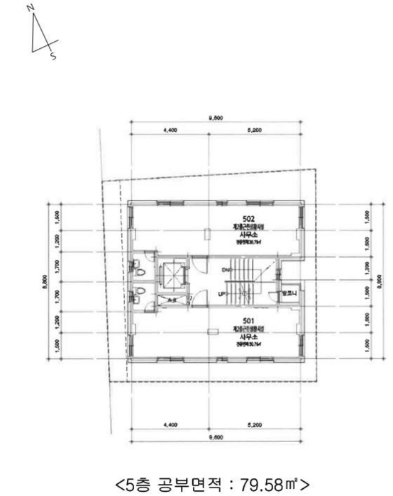
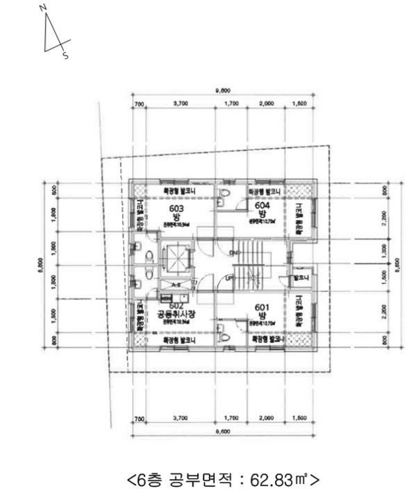
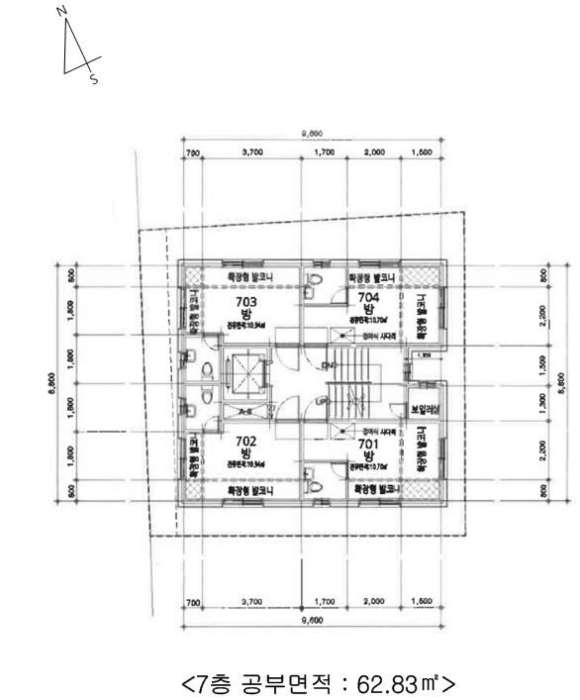
건물면적 [ 535.19㎡ (161.89평) ]
토지면적 [ 142㎡ (42.95평) ]
시세를 반영한 감정가 3,141,712,740에서
1회 유찰되어 감정가 대비 80%
최저가 2,513,370,000부터
입찰에 참여할 수 있습니다.
입찰보증금은 최저가 10%
251,337,000이며,
서울동부지방법원 경매4계에서
2026-02-02(10:00)
진행 예정입니다.
| 소재지 | [지번] 서울특별시 강동구 천호동 538-7 한빛주택 [도로명 주소] 서울특별시 강동구 진황도로25길 30 한빛주택 |
||||
|---|---|---|---|---|---|
| 용도 | 근린주택 | 채권자 | ㈜**외1명 | 감정가 | 3,141,712,740 |
| 건물면적 | 535.19㎡ (161.89평) | 채무자 | ㈜**외1명 | 최저가 | (80%) 2,513,370,000 |
| 토지면적 | 142㎡ (42.95평) | 소유자 | ㈜** | 보증금 | (10%) 251,337,000 |
| 매각대상 | 공시가격2~3억 | 경매종류 | 임의경매 | 사건접수일 | 2024-09-12 |
| 최초경매일 | 2026-02-02 | 배당종기일 | 2024-12-04 | 경매개시일 | 2024-09-13 |
| 주의사항 | ☞ 여기 눌러 무료상담 받아보기 | ||||
기일내역
| 회차 | 매각기일 | 최저매각금액 | 결과 |
|---|---|---|---|
| 2025-08-18 | 3,141,712,740 | 변경 | |
| 신건 | 2025-12-15 | 3,141,712,740 | 유찰 |
| 2차 | 2026-02-02 | 2,513,370,000 |
임차인현황
| 임차인 | 점유현황 | 전입/확정/배당 |
|---|---|---|
| i** | 주거임차인 주거용 704호2021.08.20~ |
전입 : 2021-08-20 / 확정 : 2021-07-07 / 배당 : 2024-10-16 |
| i** | 주거임차인 주거용 601호2021.10.08~ |
전입 : 2021-10-08 / 확정 : 2021-07-29 / 배당 : 2024-09-25 |
| i** | 주거임차인 주거용 702호2021.12.24~ |
전입 : 2021-12-07 / 확정 : 2021-12-07 / 배당 : 2024-09-04 |
| i** | 주거임차인 주거용 603호2022.04.13~ |
전입 : 2022-04-13 / 확정 : 2022-03-30 / 배당 : 2024-09-25 |
| i** | 주거임차인 주거용 501호2022.10.01~ |
전입 : 2022-10-04 / 확정 : 2022-10-28 / 배당 : 2024-09-25 |
| i** | 주거임차인 주거용 502호2022.12.30~ |
전입 : 2022-12-28 / 확정 : 2022-12-28 / 배당 : 2024-09-25 |
| i** | 주거임차인 주거용 203호2022.12.29~ |
전입 : 2022-12-29 / 확정 : 2022-12-29 / 배당 : 2024-11-19 |
| i** | 주거임차인 주거용 402호2023.01.09~ |
전입 : 2023-01-09 / 확정 : X / 배당 : 2024-09-26 |
| i** | 주거임차인 주거용 204호2022.12.21~ |
전입 : 2023-01-10 / 확정 : 2023-05-15 / 배당 : 2024-09-26 |
| i** | 주거임차인 주거용 403호2023.01.10~ |
전입 : 2023-01-13 / 확정 : 2023-01-13 / 배당 : 2024-09-25 |
| i** | 주거임차인 주거용 304호2023.01.16~ |
전입 : 2023-01-17 / 확정 : 2023-05-15 / 배당 : 2024-10-04 |
| i** | 주거임차인 주거용 202호2022.12.26~ |
전입 : 2023-01-20 / 확정 : 2023-04-11 / 배당 : 2024-12-03 |
| i** | 주거임차인 주거용 302호2023.01.25~ |
전입 : 2023-01-30 / 확정 : 2023-02-07 / 배당 : 2024-10-31 |
| i** | 주거임차인 주거용 401호2023.01.31~ |
전입 : 2023-03-06 / 확정 : X / 배당 : 2024-09-27 |
| i** | 주거임차인 주거용 303호2023.09.15~ |
전입 : 2023-09-19 / 확정 : 2023-08-29 / 배당 : 2024-09-26 |
| i** | 주거임차인 주거용 404호2023.09.22~ |
전입 : 2023-09-27 / 확정 : 2023-09-27 / 배당 : 2024-10-08 |
| i** | 주거임차인 주거용 604호2023.09.23~ |
전입 : 2023-10-04 / 확정 : 2024-10-04 / 배당 : 2024-10-04 |
| i** | 주거임차인 주거용 701호2023.11.11~ |
전입 : 2023-11-10 / 확정 : 2024-09-25 / 배당 : 2024-09-25 |
| i** | 주거임차인 주거용 801호2024.02.16~ |
전입 : 2024-02-16 / 확정 : 2024-02-16 / 배당 : 2024-10-11 |
| i** | 주거임차인 주거용 201호2024.02.07~ |
전입 : 2024-02-22 / 확정 : 2024-02-22 / 배당 : 2024-12-02 |
| i** | 주거임차인 주거용 602호2024.07.30~ |
전입 : 2024-07-31 / 확정 : 2024-07-31 / 배당 : 2024-11-01 |















































