달성공장경매 달성군 논공읍 상리 799-21 №2025 타경 31324

차별화된 5단계 맞춤형 경매 서비스 - 더블옥션
법원경매전문 (주)더블옥션은 보증보험 가입 및 법원 매수대리 등록업체로 안전하고 책임있는 컨설팅을 진행합니다. 등록번호(02-17-3)
사건번호 2025 타경 31324

본건은 대구광역시 달성군 논공읍 상리 799-21
소재하는 공장경매 물건의 포스팅입니다.

건물면적 [ 698.45㎡ (211.28평) ]
토지면적 [ 1000㎡ (302.5평) ]

시세를 반영한 감정가 1,732,026,140에서
2회 유찰되어 감정가 대비 49%
최저가 848,693,000부터
입찰에 참여할 수 있습니다.

입찰보증금은 최저가 10%
84,869,300이며,
대구서부지원 경매3계에서
2025-12-16(10:00)
진행 예정입니다.

소재지 [지번] 대구광역시 달성군 논공읍 상리 799-21
[도로명 주소] 대구광역시 달성군 논공읍 비슬로262길 35-18
용도 공장 채권자 유** 감정가 1,732,026,140
건물면적 698.45㎡ (211.28평) 채무자 김** 최저가 (49%) 848,693,000
토지면적 1000㎡ (302.5평) 소유자 김** 보증금 (10%) 84,869,300
매각대상 임금채권 경매종류 임의경매 사건접수일 2025-05-20
최초경매일 2025-12-16 배당종기일 2025-08-20 경매개시일 2025-05-21
주의사항 ☞ 여기 눌러 무료상담 받아보기

기일내역

회차 매각기일 최저매각금액 결과
신건 2025-10-14 1,732,026,140 유찰
2차 2025-11-11 1,212,418,000 유찰
3차 2025-12-16 848,693,000
정확한 권리 분석, 꼼꼼한 현장 조사, 예상 낙찰가 제안, 대출 연계, 점유자 이전 - 더블옥션

임차인현황

임차인 점유현황 전입/확정/배당
조사된 임차인 내역 없음
더블옥션은 법원 등록 및 보증 보험 가입 업체로 안전하고 성공적인 당신의 비즈니스를 지원합니다. - 더블옥션
전경


이하 내부(공장 및 광업재단 저당법 제6조 목록)



수전설비
제시외구조물(가스저장시설)
본건 전경
일련번호 10) 기계기구
일련번호 1) 기계기구
본건 제시외 건물 기호 ㄱ)
본건 가) 건물(내부)
일련번호 4) 기계기구
일련번호 11) 기계기구
일련번호 3) 기계기구
일련번호 3) 기계기구
본건 가) 건물
본건 나) 건물
본건 전경
일련번호 2) 기계기구
본건 나) 건물(내부)
일련번호 4) 기계기구
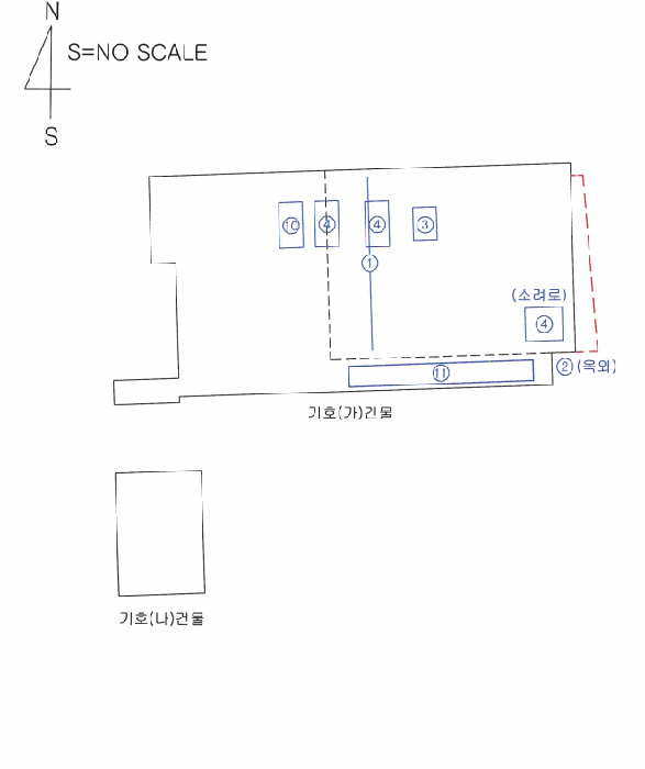
기계기구 배치도
상 세 위 치 도
광 역 위 치 도
상 세 위 치 도
지적 및 건물개황도
지적 및 건물개황도
부동산 경매 전문기업 - 더블옥션

Related Posts