사건번호 2023 타경 3168
본건은 경기도 고양시 일산서구 가좌동 220-1
소재하는 주유소(위험물)경매 물건의 포스팅입니다.
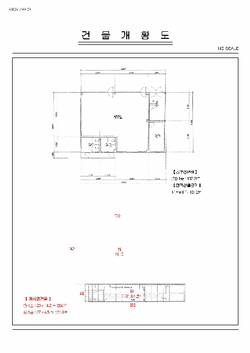
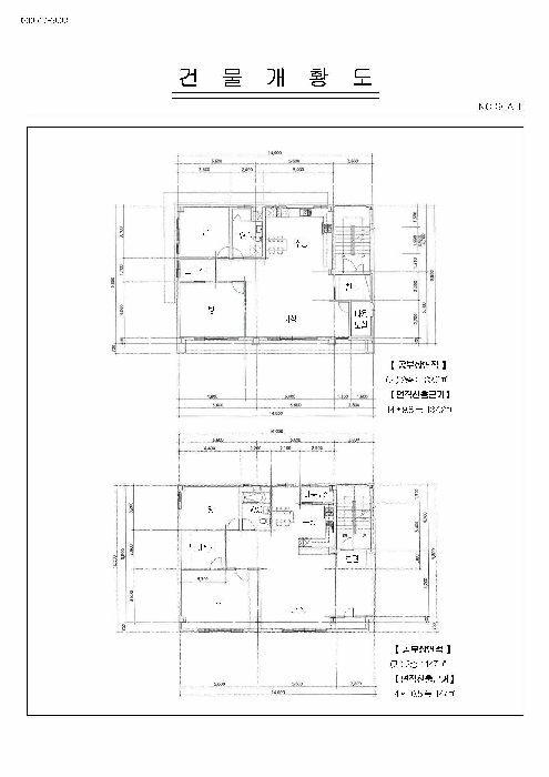
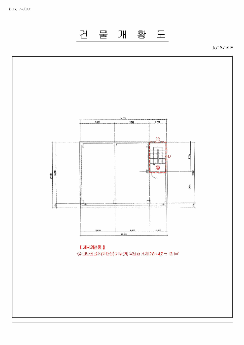
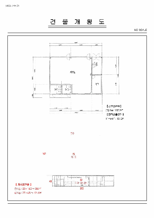
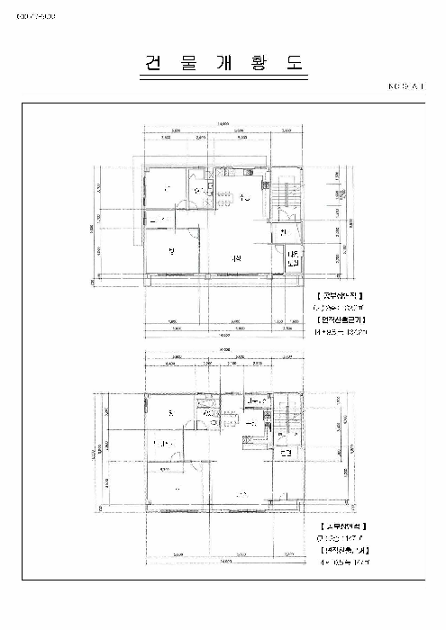
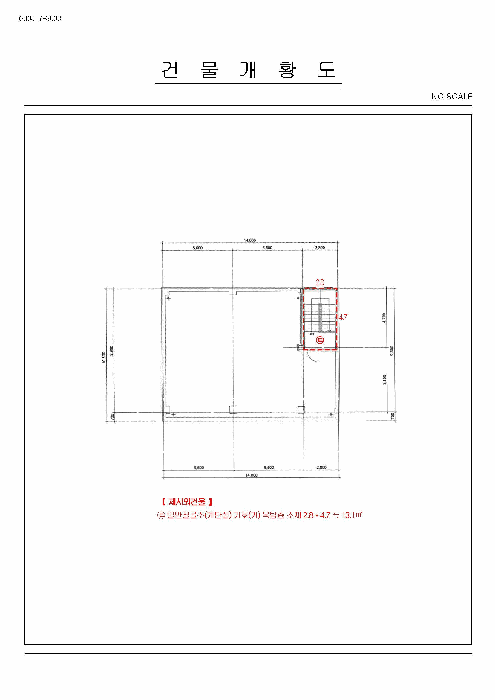
건물면적 [ 835.1㎡ (252.62평) ]
토지면적 [ 1524㎡ (461.01평) ]
시세를 반영한 감정가 6,133,845,500에서
신건으로 감정가 대비 100%
최저가 6,133,846,000부터
입찰에 참여할 수 있습니다.
입찰보증금은 최저가 10%
613,384,600이며,
고양지원 경매8계에서
2025-10-28(10:00)
진행 예정입니다.
| 소재지 | [지번] 경기도 고양시 일산서구 가좌동 220-1 [도로명 주소] 경기 고양시 일산서구 송산로 406 |
||||
|---|---|---|---|---|---|
| 용도 | 주유소(위험물) | 채권자 | 주**외1명 | 감정가 | 6,133,845,500 |
| 건물면적 | 835.1㎡ (252.62평) | 채무자 | 파** | 최저가 | (100%) 6,133,846,000 |
| 토지면적 | 1524㎡ (461.01평) | 소유자 | 신**외2명 | 보증금 | (10%) 613,384,600 |
| 매각대상 | 경매종류 | 임의경매 | 사건접수일 | 2023-05-11 | |
| 최초경매일 | 2025-10-28 | 배당종기일 | (-일) | 경매개시일 | 2023-05-12 |
| 주의사항 | ☞ 여기 눌러 무료상담 받아보기 | ||||
기일내역
| 회차 | 매각기일 | 최저매각금액 | 결과 |
|---|---|---|---|
| 신건 | 2025-10-28 | 6,133,846,000 |
임차인현황
| 임차인 | 점유현황 | 전입/확정/배당 |
|---|---|---|
| i** | 상가임차인 점포 1층 1호2019.05.13.~ |
전입 : / 확정 : X / 배당 : X |
| i** | 상가임차인 점포 가좌주유소2022.09.30.~ |
전입 : / 확정 : X / 배당 : X |
| i** | 상가임차인 점포 다동 1층 사무실 및 점포 전체2023.04.12.~ |
전입 : / 확정 : X / 배당 : X |




















































