사건번호 2024 타경 94577
본건은 경기도 화성시 팔탄면 서근리 224-8 제에이동호
소재하는 공장경매 물건의 포스팅입니다.
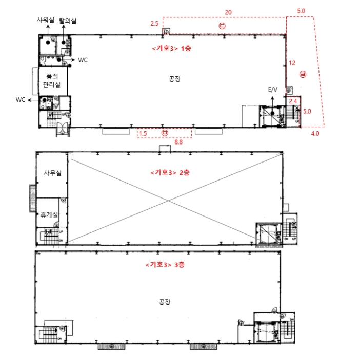
건물면적 [ 3146.94㎡ (951.95평) ]
토지면적 [ 3435㎡ (1039.08평) ]
시세를 반영한 감정가 4,094,508,720에서
신건으로 감정가 대비 100%
최저가 4,094,508,720부터
입찰에 참여할 수 있습니다.
입찰보증금은 최저가 10%
409,450,872이며,
수원지방법원 경매16계에서
2025-10-22(10:00)
진행 예정입니다.
| 소재지 | [지번] 경기도 화성시 팔탄면 서근리 224-8 제에이동호 [도로명 주소] 경기도 화성시 팔탄면 버들로1362번길 15-7 제에이동호 |
||||
|---|---|---|---|---|---|
| 용도 | 공장 | 채권자 | 중** | 감정가 | 4,094,508,720 |
| 건물면적 | 3146.94㎡ (951.95평) | 채무자 | ㈜** | 최저가 | (100%) 4,094,508,720 |
| 토지면적 | 3435㎡ (1039.08평) | 소유자 | ㈜** | 보증금 | (10%) 409,450,872 |
| 매각대상 | 임금채권 | 경매종류 | 임의경매 | 사건접수일 | 2024-10-22 |
| 최초경매일 | 2025-10-22 | 배당종기일 | 2025-01-22 | 경매개시일 | 2024-10-23 |
| 주의사항 | ☞ 여기 눌러 무료상담 받아보기 | ||||
기일내역
| 회차 | 매각기일 | 최저매각금액 | 결과 |
|---|---|---|---|
| 신건 | 2025-10-22 | 4,094,508,720 |
임차인현황
| 임차인 | 점유현황 | 전입/확정/배당 |
|---|---|---|
| i** | 공장임차인 공장 1층 90.0000㎡2015.04.14.~2020.04.13 |
전입 : / 확정 : X / 배당 : X |
| i** | 공장임차인 공장 3층 120.0000㎡2024.05.10.~2025.05.09. |
전입 : / 확정 : X / 배당 : X |


































