사건번호 2025 타경 30210
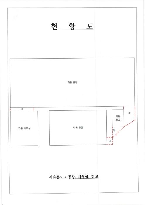
본건은 광주광역시 광산구 진곡동 에이26-8 가동
소재하는 공장경매 물건의 포스팅입니다.
건물면적 [ 2185.79㎡ (661.2평) ]
토지면적 [ 2360.7㎡ (714.11평) ]
시세를 반영한 감정가 3,903,662,300에서
신건으로 감정가 대비 100%
최저가 3,903,662,300부터
입찰에 참여할 수 있습니다.
입찰보증금은 최저가 10%
390,366,230이며,
광주지방법원 경매7계에서
2025-10-14(10:00)
진행 예정입니다.
| 소재지 | [지번] 광주광역시 광산구 진곡동 에이26-8 가동 [도로명 주소] 광주광역시 광산구 진곡산단2번로 39 |
||||
|---|---|---|---|---|---|
| 용도 | 공장 | 채권자 | 에** | 감정가 | 3,903,662,300 |
| 건물면적 | 2185.79㎡ (661.2평) | 채무자 | 장** | 최저가 | (100%) 3,903,662,300 |
| 토지면적 | 2360.7㎡ (714.11평) | 소유자 | 장** | 보증금 | (10%) 390,366,230 |
| 매각대상 | 경매종류 | 임의경매 | 사건접수일 | 2025-01-06 | |
| 최초경매일 | 2025-10-14 | 배당종기일 | 2025-05-15 | 경매개시일 | 2025-02-14 |
| 주의사항 | ☞ 여기 눌러 무료상담 받아보기 | ||||
기일내역
| 회차 | 매각기일 | 최저매각금액 | 결과 |
|---|---|---|---|
| 신건 | 2025-10-14 | 3,903,662,300 |
임차인현황
| 임차인 | 점유현황 | 전입/확정/배당 |
|---|---|---|
| i** | 주거임차인 기타2022.02.03.~2024.01.31. |
전입 : 2022-01-19 / 확정 : X / 배당 : X |






























































