사건번호 2025 타경 10447
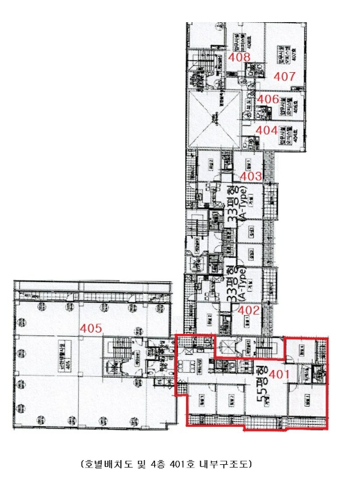
본건은 서울특별시 동대문구 장안동 384-1 공감대6차 제4층 제401호
소재하는 아파트경매 물건의 포스팅입니다.
건물면적 [ 137.75㎡ (41.67평) ]
대지권 [ 37.07㎡ (11.21평) ]
시세를 반영한 감정가 714,000,000에서
1회 유찰되어 감정가 대비 80%
최저가 571,200,000부터
입찰에 참여할 수 있습니다.
입찰보증금은 최저가 10%
57,120,000이며,
서울북부지방법원 경매2계에서
2025-10-21(10:00)
진행 예정입니다.
| 소재지 | [지번] 서울특별시 동대문구 장안동 384-1 공감대6차 제4층 제401호 [도로명 주소] 서울특별시 동대문구 답십리로68길 31 공감대6차 제4층 제401호 |
||||
|---|---|---|---|---|---|
| 용도 | 아파트 | 채권자 | 케** | 감정가 | 714,000,000 |
| 건물면적 | 137.75㎡ (41.67평) | 채무자 | 정** | 최저가 | (80%) 571,200,000 |
| 대지권 | 37.07㎡ (11.21평) | 소유자 | 정** | 보증금 | (10%) 57,120,000 |
| 매각대상 | 경매종류 | 임의경매 | 사건접수일 | 2025-01-08 | |
| 최초경매일 | 2025-10-21 | 배당종기일 | 2025-03-26 | 경매개시일 | 2025-01-13 |
| 주의사항 | ☞ 여기 눌러 무료상담 받아보기 | ||||
기일내역
| 회차 | 매각기일 | 최저매각금액 | 결과 |
|---|---|---|---|
| 신건 | 2025-09-09 | 714,000,000 | 유찰 |
| 2차 | 2025-10-21 | 571,200,000 |
임차인현황
| 임차인 | 점유현황 | 전입/확정/배당 |
|---|---|---|
| i** | 주거임차인 주거용 제401호 전부2024.12.17.~2025.02.현재 |
전입 : 2025-01-22 / 확정 : 2024-12-17 / 배당 : 2025-02-05 |





















